Pytania egzaminacyjne UDT z odpowiedziami na uprawnienia operatora żurawi wieżowych. Uzyskane kwalifikacje są ważne przez okres 5 lat i uprawniają do obsługi żurawi wieżowych wszystkich typów tzn. stacjonarnych sterowanych z kabiny – górno obrotowe, szybkomontujące – dolno obrotowe oraz żurawie wieżowe zamontowane na torowisku – szynowe bez ograniczenia tonażowego.
Jeśli chcesz samodzielnie przygotować się do egzaminu UDT, to posiadamy w sprzedaży autorską platformę szkoleniową, w której lektor omawia wszystkie pytania egzaminacyjne oraz uzasadnia prawidłową odpowiedź. Platforma dostępna jest 24H, a lektora można przesłuchiwać wielokrotnie. Sprawdź nasze kursy udt online!
1. Zgodnie z rozporządzeniem Rady Ministrów w sprawie rodzajów urządzeń technicznych podlegających dozorowi technicznemu przepisom dozoru technicznego podlegają:
- spycharki, zwałowarki
- rusztowania budowlano-montażowe
- żurawie samojezdne, żurawie szybkomontujące
- palownice, wiertnice
2. Zgodnie z rozporządzeniem Rady Ministrów w sprawie rodzajów urządzeń technicznych podlegających dozorowi technicznemu przepisom dozoru technicznego podlegają:
- dźwigi, żurawie, suwnice, wciągarki i wciągniki
- wózki jezdniowe podnośnikowe z mechanicznym napędem podnoszenia, podesty ruchome
- dźwignice linotorowe, przenośniki kabinowe i krzesełkowe
- wszystkie odpowiedzi są poprawne
3. Aby okres ważności zaświadczenia kwalifikacyjnego mógł zostać przedłużony koniecznie jest spełenie warunku:
- złożenie wniosku nie później niż w terminie 3 miesięcy przed dniem upływu okresu ważności tego zaświadczenia
- wykonywanie czynności w zakresie określonym w zaświadczeniu kwalifikacyjnym przez co najmniej 3 lata w okresie ostatnich 5 lat ważności zaświadczenia
- zdanie egzaminu uzupełniającego
- odpowiedź a i b są prawidłowe
4. Badania doraźne eksploatacyjne wykonuje się m.in.:
- po każdym usunięciu usterki przez konserwatora
- po wymianie cięgien nośnych
- raz na rok
- po wypadku na urządzeniu
5. Badania odbiorcze przeprowadza się technicznych: dla urządzeń
- w terminach zgodnych z zapisami rozporządzenia w sprawie warunków technicznych dozoru technicznego
- przed wydaniem pierwszej decyzji zezwalającej na eksploatację
- po naprawie urządzenia technicznego
- po każdej zmianie eksploatującego
6. Badania okresowe przeprowadza się dla urządzeń technicznych objętych dozorem:
- ograniczonym
- pełnym
- uproszczonym
- wszystkie odpowiedzi są poprawne
7. Badania okresowe urządzenia technicznego są wykonywane przez:
- konserwatora posiadającego odpowiednie zaświadczenie kwalifikacyjne
- inspektora organu właściwej jednostki dozoru technicznego
- pracownika serwisu producenta
- operatora
8. Badania UDT dla żurawia wieżowego górnoobrotowego wykonywane są:
- za każdym razem po demontażu i ponownym montażu na danym obiekcie
- co 2 lata
- co 1 rok
- odpowiedzi a i c są prawidłowe
9. Badania UDT dla żurawia wieżowego szybkomontującego wykonywane są:
- co 2 lata
- co 1 rok
- po montażu na danym obiekcie
- wszystkie odpowiedzi są nieprawidłowe
10. Badania urządzeń podlegających dozorowi technicznemu przeprowadzają Inspektorzy:
- wyłącznie UDT
- UDT , TDT, WDT
- PIP
- wszystkie odpowiedzi są nieprawidłowe
11. Bezpośrednio odpowiedzialnym za bezpieczną eksploatację urządzenia technicznego jest:
- obsługujący urządzenie
- producent urządzenia
- zakładowy inspektor BHP
- inspektor UDT
12. BIOZ to jest:
- skrócona nazwa systemu kontroli obciążenia w niektórych żurawiach wieżowych
- oznaczenie strefy kolizyjnej pracy żurawi
- plan bezpieczeństwa i ochrony zdrowia, z którym powinien zapoznać się w trakcie szkolenia stanowiskowego przed przystąpieniem do pracy każdy operator żurawia
- wszystkie odpowiedzi są niepoprawne
13. Co to jest plan BIOZ?
- plan prac budowlanych
- procedura obsługo żurawia
- bezpieczeństwo i ochrona zdrowia
- wszystkie odpowiedzi są poprawne
14. Czy i w jaki sposób operator żurawia potwierdza zapoznanie się z Instrukcją bezpiecznej pracy żurawia w warunkach kolizyjnej lokalizacji?
- tak, słownie
- nie musi nic potwierdzać, ponieważ ta instrukcja jest dla sygnalisty
- nie musi nic potwierdzać, ponieważ ma uprawnienia do obsługi
- tak, pisemnie
15. Czy obsługujący może manewrować ładunkiem jeżeli go nie widzi?
- tak, jeżeli wynika to tylko z warunków atmosferycznych
- taka sytuacja nie jest dozwolona
- jest to możliwe pod warunkiem spełnienia szczegółowych warunków eksploatacji uzgodnionych z organem dozoru technicznego
- jest to dozwolone jeżeli obsługujący ma kontakt z wyznaczonym pracownikiem budowy, który przekazuje mu ustalone przed rozpoczęciem pracy sygnały komunikacyjne
16. Czy obsługujący żuraw może przenosić ładunki nad włączoną linią energetyczną ?
- obsługujący przenosi ładunek nad linią energetyczną zachowując szczególną ostrożność
- obsługujący może przenosić ładunek nad linią energetyczną na polecenie Kierownika budowy
- obsługujący może przenosić ładunek nad linią energetyczną na polecenie Kierownika budowy oraz za zgodą Inspektora BHP
- żadna z odpowiedzi nie jest prawidłowa
17. Czy po wymianie liny nośnej należy wykonać badanie doraźne eksploatacyjne?
- tak
- nie
- decyduje o tym konserwator
- decyduje o tym inspektor
18. Czy po zmianie długości wysięgnika (wstawienie nowych elementów) należy wykonać badanie UDT przed dopuszczeniem urządzenia do pracy?
- tak
- nie
- nie wolno zmieniać długości wysięgnika raz zmontowanego żurawia
- decyduje o tym inspektor
19. Czy po zmianie miejsca pracy żurawia trzeba wykonać badanie UDT?
- żurawia wieżowego - nie, żurawia szybkomontującego – nie
- żurawia wieżowego - tak, żurawia szybkomontującego - tak
- żurawia wieżowego - tak, żurawia szybkomontującego - nie
- żurawia wieżowego - nie, żurawia szybkomontującego - tak
20. Czy po zmianie wersji montażowej żurawia np. zmianie długości wysięgnika wymagane jest badanie doraźne eksploatacyjne UDT?
- tak, zawsze
- nie, nigdy
- tak może, jeżeli zmieniamy ustawienie balastów
- może, być przeprowadzone na wniosek eksploatującego
21. Czy po zmianie wysokości podnoszenia żurawia (klatkowaniu wieży) należy wykonać badanie UDT przed dopuszczeniem urządzenia do pracy?
- tak
- nie
- nie wolno zmieniać wysokości podnoszenie raz zmontowanego żurawia
- decyduje o tym inspektor
22. Czy zaświadczenia kwalifikacyjne do obsługi żurawi stacjonarnych uprawniają do obsługi żurawi wieżowych?
- tak
- nie
- nie ma takiej kategorii jak żurawie stacjonarne
- odpowiedzi b i c są prawidłowe
23. Czy zaświadczenia kwalifikacyjne do obsługi żurawi wieżowych uprawniają do obsługi żurawi szybkomontujących?
- nie
- odpowiedzi c i d są prawidłowe
- tylko jeśli w uprawnieniu dopisano symbol "Ższ"
- tak
24. Czy zaświadczenia kwalifikacyjne do obsługi żurawi wieżowych uprawniają do obsługi żurawi szynowych?
- nie
- odpowiedzi c i d są prawidłowe
- tylko jeśli w uprawnieniu dopisano symbol "Ższ„
- tak
25. Czy zaświadczenie kwalifikacyjne wydane przez Transportowy Dozór Techniczny jest honorowane przez Urząd Dozoru Technicznego?
- nie
- tak
- wyłącznie dla środków transportu takich jak np. wózki widłowe
- decyduje o tym inspektor
26. Czy żurawiem można przenosić osoby?
- tak, ale tylko na pisemne polecenie kierownika budowy
- tak, ale tylko w przypadku gdy osprzęt przeznaczony do podnoszenia posiada oznaczenie CE
- jedynie pod warunkiem, że łączna masa podnoszonych osób i używanego kosza jest trzy razy mniejsza od udźwigu żurawia na danym wysięgu
- żadna z odpowiedzi nie jest prawidłowa
27. Decyzja wydana przez UDT:
- nie podlega odwołaniu
- może zostać zmieniona przez inspektora PIP
- podlega możliwości odwołania się przez eksploatującego
- każda odpowiedź jest niepoprawna
28. Decyzja zezwalająca na eksploatację żurawia wieżowego wydawana jest na okres:
- 30 dni
- 1 roku
- 2 lat dla urządzeń fabrycznie nowych
- termin jest określony przez producenta w instrukcji eksploatacji
29. Decyzję zezwalającą na eksploatację urządzenia technicznego wydaje:
- konserwator po wykonaniu przeglądu z wynikiem pozytywnym
- organ właściwej jednostki dozoru technicznego
- organ administracji publicznej z upoważnienia organu właściwej jednostki dozoru technicznego
- żadna z odpowiedzi nie jest poprawna
30. Decyzję zezwalającą na eksploatację urządzenia technicznego wydaje:
- konserwator po wykonaniu przeglądu z wynikiem pozytywnym
- organ właściwej jednostki dozoru technicznego lub eksploatujący urządzenie techniczne z upoważnienia organu właściwej jednostki dozoru technicznego
- organ właściwej jednostki dozoru technicznego lub organ administracji publicznej z upoważnienia organu właściwej jednostki dozoru technicznego
- organ właściwej jednostki dozoru technicznego
31. Do egzaminu sprawdzającego kwalifikacje może przystąpić osoba, która:
- złożyła wniosek o sprawdzenie kwalifikacji
- ukończyła 18 lat
- nie ma przeciwwskazań zdrowotnych do obsługi urządzeń technicznych
- wszystkie odpowiedzi są poprawne
32. Do połączeń nierozłącznych zalicza się:
- połączenia klinowe
- połączenia wielowypustowe
- połączenia sworzniowe
- połączenia spawane
33. Do połączeń rozłącznych zalicza się:
- połączenia lutowane
- połączenia nitowe
- połączenia gwintowe
- połączenia zgrzewane
34. Dodatkowy balast (przeciwwaga):
- zwiększa moment ustalający
- zwiększa moment wywracający
- zmniejsza moment ustalający
- nie ma wpływu na moment ustalający
35. Dokonujący przeróbek urządzenia technicznego bez uzgodnienia z organem właściwej jednostki dozoru technicznego:
- podlega karze grzywny lub ograniczenia wolności
- podlega ukaraniu mandatem karnym
- nie podlega karze
- wszystkie odpowiedzi są niepoprawne
36. Dozorem technicznym nazywamy:
- określone ustawą działania zmierzające do zapewnienia bezpiecznego funkcjonowania urządzeń technicznych i urządzeń do odzyskiwania par paliwa oraz działania zmierzające do zapewnienia bezpieczeństwa publicznego w tych obszarach
- instytucje kontrolujące stan techniczny urządzeń
- Urząd Dozoru Technicznego
- UDT, WDT, TDT
37. Dozorowi technicznemu nie podlegają:
- wyciągi towarowe
- żurawie stacjonarne
- podesty ruchome przejezdne wolnobieżne
- koparki
38. Dozorowi technicznemu podlegają urządzenia techniczne w toku:
- naprawy i modernizacji
- wytwarzania
- eksploatacji
- wszystkie odpowiedzi są prawidłowe
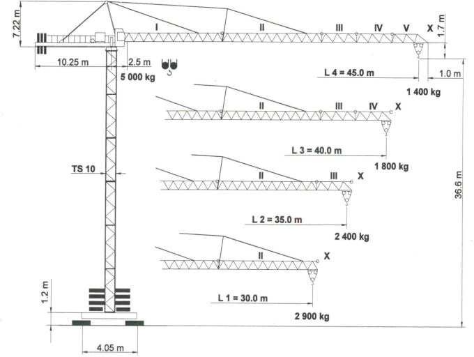
39. Dozoru technicznego nie wykonuje:
- inspektor UDT
- obsługujący żuraw
- konserwator żurawia
- wszystkie odpowiedzi są nieprawidłowe
40. Dozór techniczny nad urządzeniami technicznymi wykonuje:
- Urząd Dozoru Technicznego oraz specjalistyczne jednostki dozoru technicznego
- Urząd Dozoru Technicznego oraz upoważnione przez UDT organizacje
- Urząd Dozoru Technicznego i zagraniczne jednostki dozoru technicznego
- wszystkie odpowiedzi są poprawne
41. Dziennik konserwacji może być prowadzony:
- tylko w formie papierowej
- w formie papierowej lub elektronicznej
- tylko w formie elektronicznej
- dziennik konserwacji nie musi być prowadzony
42. Dziennik konserwacji powinien być prowadzony:
- tylko w formie papierowej
- w formie elektronicznej lub papierowej
- tylko w formie elektronicznej
- przez obsługującego
43. Dziennik konserwacji urządzenia technicznego prowadzi:
- inspektor UDT w księdze rewizyjnej urządzenia
- uprawniony operator
- wyznaczony pracownik eksploatującego
- konserwator urządzenia technicznego
44. Eksploatujący żuraw opracowuje i uzgadnia z organem właściwej jednostki dozoru technicznego, szczegółowe warunki eksploatacji, opisujące czynności organizacyjno-techniczne podejmowane w celu zminimalizowania ryzyka związanego z eksploatacją żurawia, tylko w przypadku:
- eksploatacji UTB w warunkach kolizyjnych
- podnoszenia i przenoszenia osób przez UTB, które są zaprojektowane i wytworzone z przeznaczeniem do podnoszenia i przenoszenia ładunków
- podnoszenia i przenoszenia ładunku przez dwa lub więcej żurawi
- braku możliwości obserwacji przez obsługującego całej drogi, jaką pokonuje ładunek
45. Formami dozoru technicznego są:
- dozór pełny, dozór uproszczony, dozór ograniczony
- badanie odbiorcze, badanie okresowe i badanie doraźne
- badanie odbiorcze, badanie okresowe i badanie doraźne
- wszystkie odpowiedzi są poprawne
46. Gdzie jest określona minimalna i maksymalna dopuszczalna temperatura pracy dla konkretnego żurawia wieżowego?
- w instrukcji obsługi żurawia
- w instrukcji prac montażowych
- w instrukcji obsługi zawiesi
- żadna odpowiedź nie jest prawidłowa
47. Gdzie określone są wymagania dotyczące dopuszczalnego zakresu temperatur, przy których można pracować żuraw?
- w Ustawie o dozorze technicznym
- w rozporządzeniu Ministra Przedsiębiorczości i Technologii
- w instrukcji eksploatacji opracowanej przez wytwórcę żurawia
- w protokole z badania technicznego żurawia
48. Gdzie są podane terminy przeglądów konserwacyjnych żurawi?
- w dzienniku konserwacji
- w przepisach dozoru technicznego w sprawie eksploatacji UTB
- w ustawie o dozorze technicznym
- żadna z powyższych odpowiedzi nie jest prawidłowa
49. Główny wyłącznik żurawia:
- powinien być opisany i znajdować się na poziomie roboczym
- powinien mieć możliwość zamknięcia w stanie wyłączonym ale nie może być dostępny dla każdego pracownika budowy
- odpowiedzi a i b są prawidłowe
- powinien znajdować się na wieży żurawia i być zabezpieczony przed dostępem osób postronnych
50. Grupa natężenia pracy żurawia (GNP):
- nie dotyczy żurawi szybkomontujących
- jest miarą intensywności eksploatacji żurawia określana przez klasę wykorzystania i klasę obciążenia
- jest określana jako stosunek czasu pracy do czasu postoju żurawia
- jest określana procentowo jako stosunek ilości cykli z obciążeniem do ilości cykli bez obciążenia
51. Grupa Natężenia Pracy dźwignicy to:
- zestawienie czasu pracy urządzenia i klasy wykorzystania dźwignicy
- zestawienie klasy obciążenia i klasy wykorzystania dźwignicy
- zestawienie czasu pracy dźwignicy i klasy obciążenia
- Zestawienie liczby cykli pracy oraz czasu pracy dźwignicy
52. Ile wynosi minimalna bezpieczna odległość od linii wysokiego napięcia dla linii o napięciu znamionowym nie przekraczającym 15 kV?
- 3 metry
- 5 metrów
- 10 metrów
- 15 metrów
53. Ile wynosi minimalna bezpieczna odległość od linii wysokiego napięcia dla linii o napięciu znamionowym nie przekraczającym 1kV?
- 3 metry
- 5 metrów
- 10 metrów
- 15 metrów
54. Ile wynosi minimalna bezpieczna odległość od linii wysokiego napięcia dla linii o napięciu znamionowym nie przekraczającym 30 kV?
- 3 metry
- 5 metrów
- 10 metrów
- 15 metrów
55. Ile wynosi minimalna bezpieczna odległość od linii wysokiego napięcia dla linii o napięciu znamionowym przekraczającym 110 kV?
- 5 metrów
- 10 metrów
- 15 metrów
- 30 metrów
56. Ile wynosi minimalna bezpieczna odległość od linii wysokiego napięcia dla linii o napięciu znamionowym przekraczającym 30 kV, ale nie przekraczającym 110 kV?
- 5 metrów
- 10 metrów
- 15 metrów
- 30 metrów
57. Informacja dotycząca udźwigu urządzenia może być zawarta:
- w instrukcji eksploatacji
- na tabliczce znamionowej
- na urządzeniu technicznym
- wszystkie odpowiedzi są prawidłowe
58. Instalacja odgromowa na żurawiach wieżowych:
- może jej nie być
- jest wymagana dla wszystkich żurawi
- jest wymagana dla żurawi o wysokości ponad 25 m
- jest wymagana dla żurawi o wysokości ponad 50 m
59. Instrukcja eksploatacji może nie zawierać:
- informacji o terminach i zakresie przeglądów konserwacyjnych UTB
- podstawowych parametrów i przeznaczenia UTB
- terminów badań technicznych wykonywanych przez jednostkę inspekcyjną
- informacji o sposobie obsługi urządzenia
60. Instrukcja eksploatacji to:
- zbiór informacji niezbędnych do bezpiecznej eksploatacji urządzenia udostępniany przez producenta
- zbiór zaleceń wydawanych przez Urząd Dozoru Technicznego
- instrukcja, którą musi stworzyć użytkownik urządzenia
- wszystkie odpowiedzi są poprawne
61. Instrukcja stanowiskowa:
- jest zawsze dostarczana wraz z instrukcją obsługi przez producenta urządzenia
- stanowi niepisany zbiór zwyczajów przyjętych w zakładzie pracy
- jest wydawana przez pracodawcę i zawiera szczegółowe wskazówki dotyczące bhp na stanowisku pracy
- nie dotyczy operatorów urządzeń mobilnych
62. Jak często wykonujemy próbę hamulca mechanizmu podnoszenia?
- minimum 1x dziennie
- 1x na miesiąc
- 1x na tydzień
- przed badaniem UDT
63. Jaka jest dopuszczalna prędkość podnoszenia ludzi w koszu:
- 0,7 m/s
- 0,6 m/s
- 0,5 m/s
- 1 m/s
64. Jaki jest jedyny obowiązek obsługującego zawarty w przepisach o dozorze technicznym?
- obsługa urządzenia zgodnie z przepisami
- obsługa urządzenia zgodnie z instrukcją eksploatacji
- trzeźwość na stanowisku pracy
- posiadanie zezwolenia lekarskiego
65. Informacje dotyczące zasad bezpiecznej obsługi urządzenia są zawarte w:
- instrukcji eksploatacji urządzenia
- ustawie o dozorze technicznym
- dzienniku konserwacji
- protokole z badania wykonanego przez inspektora UDT
66. Jakie czynności należy wykonać po zakończeniu pracy żurawiem ?
- zluzować hamulec mechanizmu obrotu
- podnieść hak możliwie jak najwyżej
- ustawić wodzak blisko wieży
- wszystkie odpowiedzi są prawidłowe
67. Jakie pomiary elektryczne wykonuje się na żurawiu wieżowym?
- rezystancji izolacji
- skuteczności ochrony przeciwporażeniowej
- rezystancji uziemień roboczych
- wszystkie odpowiedzi są prawidłowe
68. Jednostką dozoru technicznego jest:
- Urząd Dozoru Technicznego
- Wojskowy Dozór Techniczny
- Transportowy dozór Techniczny
- wszystkie odpowiedzi są prawidłowe
69. Kandydat na obsługującego urządzenie techniczne musi:
- mieć ukończone 18 lat
- posiadać przynajmniej wykształcenie zawodowe
- posiadać przynajmniej 1 rok stażu pracy
- wszystkie odpowiedzi są prawidłowe
70. Kiedy można odmówić pracy żurawiem?
- kiedy masa ładunku nie licząc zawiesia jest równa udźwigowi żurawia na danym wysięgu
- aktualna prędkość wiatru przekracza wartość określoną w instrukcji żurawia o 2 m/s
- ogranicznik udźwigu sygnalizuje przeciążenie mimo iż masa podnoszonego ładunku wynosi tylko 50% udźwigu wynikającego z charakterystyki urządzenia
- wszystkie odpowiedzi są prawidłowe
71. Kogo komendy w czasie wykonywania czynności przy urządzeniu przez Jednostkę Dozoru Technicznego powinien realizować operator ?
- konserwatora
- kierownika budowy
- hakowego
- inspektora UDT
72. Komisja egzaminacyjna powiadamia osobę zainteresowaną o wyniku egzaminu:
- w ciągu 7 dni po egzaminie w formie pisemnej
- bezpośrednio po egzaminie
- w ciągu 14 dni po egzaminie w formie elektronicznej
- listem poleconym lub pocztą elektroniczną po upływie 30 dni roboczych od daty egzaminu
73. Księga rewizyjna urządzenia musi zawierać:
- zbiór protokołów z badań wykonywanych przez jednostkę inspekcyjną
- dokument, w którym odnotowywane są przeglądy konserwacyjne
- treść aktualnych aktów prawnych
- wykaz uprawnionych operatorów
74. Kto dopuszcza do eksploatacji urządzenie techniczne bez ważnej decyzji zezwalającej na eksploatację:
- podlega karze grzywny lub ograniczenia wolności
- nie podlega karze, jeżeli nie dojdzie do wypadku
- podlega wyłącznie karze grzywny
- podlega karze więzienia
75. Kto może przeprowadzać kontrole okresowe zawiesi?
- kierownik budowy
- brygadzista
- hakowy
- osoba kompetentna
76. Kto może wykonać przegląd konserwacyjny żurawia?
- dowolna osoba wyznaczona przez właściciela żurawia
- obsługujący żuraw z właściwą kategorią zaświadczenia kwalifikacyjnego UDT
- konserwator z właściwą kategorią zaświadczenia kwalifikacyjnego UDT
- żadna z powyższych odpowiedzi nie jest prawidłowa
77. Kto określa maksymalną prędkość wiatru powyżej, której należy przerwać pracę żurawia wieżowego?
- kierownik budowy
- wytwórca żurawia
- operator żurawia
- konserwator żurawia
78. Kto opracowuje plan BIOZ:
- kierownik budowy
- UDT
- operator żurawia
- wszystkie odpowiedzi są poprawne
79. Kto wydaje zaświadczenie kwalifikacyjne do obsługi żurawi?
- urząd gminy
- właściciel żurawia
- organ dozoru technicznego
- wszystkie powyższe odpowiedzi są poprawne
80. Które z wymienionych czynności nie należą do zakresu obowiązków obsługującego UTB:
- wykonywanie niewielkich napraw urządzenia w ramach posiadanego wykształcenia i umiejętności
- przestrzeganie instrukcji eksploatacji w zakresie obsługi UTB
- zapoznanie się z planem pracy i wielkością przenoszonych ładunków
- wszystkie odpowiedzi są poprawne
81. Masa 60 kartonów po 20 kg każdy wynosi:
- 800 kg
- 1000 kg
- 1100 kg
- 1200 kg
82. Masa ładunku składającego się z 40 opakowań po 25 kg każdy wynosi:
- 800 kg
- 1000 kg
- 1100 kg
- 900 kg
83. Masa netto 1000 l wody wynosi ok:
- 800 kg
- 900 kg
- 1000 kg
- 1100 kg
84. Masę podnoszonego ładunku można określić na podstawie:
- zawieszki zbiorczej znajdującej się na transportowanym ładunku
- przeliczając uwzględniając ciężar właściwy i objętość
- dokumentacji przewozowej i magazynowej
- wszystkie odpowiedzi są prawidłowe
85. Metr sześcienny stali w przybliżeniu waży
- 1t
- 5t
- 3t
- 8t
86. Moment wywracający żurawia to iloczyn:
- wysięgu i wysokości podnoszenia
- wysięgu i ciężaru przeciwwagi
- wysięgu i najkrótszego czasu podnoszenia
- żadna odpowiedź nie jest poprawna
87. Na jaki okres ważności zostaje wydane zaświadczenie kwalifikacyjne do obsługi żurawi wieżowych i szybkomontujących:
- 5 lat
- 10 lat
- bezterminowo
- ustala to komisja po zdanym egzaminie
88. Na moment ustalający składają się:
- wysięg oraz wysokość żurawia
- ciężar żurawia i przeciwwagi
- wysięg oraz ciężar przeciwwagi
- wysięg oraz balast centralny
89. Na moment wywracający wpływu nie mają:
- parcie wiatru
- siły dynamiczne
- ciężar ładunku
- żadna z powyższych odpowiedzi nie jest prawidłowa
90. Naklejka naklejana przez Inspektora UDT po badaniu technicznym:
- jest dokumentem administracyjnym podającym termin ważności badania technicznego
- jest informacją podającą termin wykonania następnego badania technicznego
- koniecznie musi być naklejona na urządzeniu i widoczna dla operatora
- bez czytelnej naklejki operator nie może podjąć pracy żurawiem
91. Naprawę i modernizację urządzenia technicznego wykonuje:
- operator w ramach posiadanych umiejętności
- konserwator
- zakład uprawniony
- eksploatujący
92. Niebezpieczne uszkodzenie urządzenia technicznego to:
- każda usterka UTB
- nieprzewidziane uszkodzenie, w wyniku którego urządzenie nadaje się do częściowej eksploatacji
- nieprzewidziane uszkodzenie, w wyniku którego nadaje się do eksploatacji tylko przy obniżonych parametrach
- nieprzewidziane uszkodzenie, w wyniku którego urządzenie nie nadaje się do eksploatacji lub jego dalsza eksploatacja stanowi zagrożenie
93. Nieszczęśliwy wypadek to:
- nagłe zdarzenie, które spowodowało obrażenia ciała lub śmierć
- nagłe zdarzenie, które spowodowało przerwę w pracy
- nagłe zdarzenie, które skutkuje wyłączeniem urządzenia technicznego z eksploatacji
- każda usterka UTB spowodowana przyczyną losową
94. Obowiązki obsługującego określone są:
- w instrukcji eksploatacji urządzenia
- w dzienniku konserwacji
- w ustawie o dozorze technicznym
- wszystkie odpowiedzi są poprawne
95. Obowiązkiem obsługującego urządzenie techniczne jest:
- przestrzeganie instrukcji eksploatacji w zakresie obsługi urządzenia
- przestrzeganie instrukcji eksploatacji w zakresie konserwacji urządzenia
- wykonywanie napraw urządzenia
- wszystkie odpowiedzi są poprawne
96. Obowiązkiem obsługującego urządzenie techniczne jest:
- odmówić obsługi urządzenia, jeżeli wygasła decyzja zezwalająca na eksploatację tego
- zawsze stosować się do poleceń przełożonego nakazujących eksploatację urządzenia
- stosować się do zapisów zawartych w instrukcji eksploatacji
- odpowiedź a i c jest prawidłowa
97. Obsługującemu nie wolno:
- podnosić ładunków, których masy nie potrafi określić
- kontrolować stanu technicznego urządzenia
- stosować się do zapisów zawartych w instrukcji eksploatacji
- dokonywać oględzin zewnętrznych urządzenia
98. Obsługującemu, który nie przestrzega norm i przepisów o dozorze technicznym grozi:
- cofnięcie uprawnienia kwalifikacyjnego wynikającego z zaświadczenia kwalifikacyjnego
- kara grzywny
- upomnienie w formie pisemnej
- zawieszenie uprawnienia kwalifikacyjnego wynikającego z zaświadczenia kwalifikacyjnego
99. Obsługujący który jest świadkiem wypadku ma obowiązek:
- udzielić pomocy ofierze (lub ofiarom) wypadku
- zabezpieczyć miejsce zdarzenia
- powiadomić przełożonego
- przełożonego d ) wszystkie
100. Obsługujący powinien wykonywać oględziny stanu technicznego żurawia:
- nie rzadziej niż co 30 dni
- zawsze przed rozpoczęciem pracy
- nie rzadziej niż raz w tygodniu
- wraz z uprawnionym konserwatorem, podczas konserwacji żurawia
101. Obsługujący urządzenie techniczne ma obowiązek przerwać pracę gdy:
- jego stan fizyczny i psychiczny w dniu pracy jest nieodpowiedni
- stwierdzi, że dalsza praca urządzeniem stwarza zagrożenie
- urządzenie jest niesprawne
- wszystkie odpowiedzi są prawidłowe
102. Obsługujący urządzenie techniczne może podjąć pracę gdy:
- posiada aktualne badania lekarskie
- przed rozpoczęciem pracy dokonał sprawdzenia UTB zgodnie z DTR wytwórcy
- posiada nieaktualne zaświadczenie kwalifikacyjne
- wszystkie odpowiedzi są prawidłowe
103. Obsługujący urządzenie techniczne może podjąć pracę gdy:
- urządzenie posiada ważną decyzję zezwalającą na eksploatację jeżeli wymagają tego odpowiednie przepisy
- posiada zaświadczenie kwalifikacyjne odpowiedniej kategorii
- urządzenie posiada aktualny pozytywny wynik przeglądu konserwacyjnego
- wszystkie powyższe warunki muszą być spełnione jednocześnie
104. Obsługujący urządzenie techniczne może podjąć pracę gdy:
- urządzenie posiada aktualny wpis w dzienniku konserwacji potwierdzający sprawność urządzenia
- przeszedł odpowiednie szkolenie stanowiskowe
- urządzenie posiada ważną decyzję zezwalającą na eksploatację
- wszystkie powyższe warunki muszą być spełnione jednocześnie
105. Obsługujący żuraw przerywa pracę gdy:
- urządzenie jest niesprawne
- dalsza praca urządzeniem stwarza zagrożenie
- stan psychofizyczny obsługującego jest zły
- wszystkie odpowiedzi są poprawne
106. Obsługujący żuraw szybkomontujący może podjąć pracę, jeżeli:
- urządzenie posiada ważną decyzję zezwalającą na eksploatację wydaną na podstawie odpowiednich przepisów, ale w innej lokalizacji
- posiada zaświadczenie kwalifikacyjne do obsługi żurawi wieżowych i szybkomontujących
- żuraw posiada aktualny pozytywny wynik przeglądu konserwacyjnego
- odpowiedzi a,b i c są prawidłowe
107. Obsługujący żuraw, powinien przestrzegać instrukcji pracy kolizyjnej:
- zawsze
- tylko przy ograniczonej widoczności
- tylko przy silnym wietrze
- odpowiedź b i c jest prawidłowa
108. Odległość od osi obrotu żurawia do pionowej osi haka nośnego nazywamy:
- wysokością podnoszenia
- wysięgnikiem
- wysięgiem
- wysięgnicą
109. Odpowiedzialnym za zapewnienie właściwej obsługi i konserwacji urządzenia technicznego jest:
- eksploatujący urządzenie techniczne
- organ właściwej jednostki dozoru technicznego
- Państwowa Inspekcja Pracy
- inspektor UDT
110. Ogranicznik momentu siły udźwigu to:
- ogranicznik żurawia
- ogranicznik udźwigu maksymalnego
- ogranicznik obciążenia
- ogranicznik stateczności
111. Osoba posiadająca zaświadczenia kwalifikacyjne może obsługiwać:
- tylko urządzenia wymienione w zakresie uprawnienia
- wszystkie urządzenia podlegające dozorowi technicznemu
- inne urządzenia podlegające dozorowi technicznemu za zgoda pracodawcy
- wszystkie UTB o udźwigu do 3,2 t
112. Osobę odpowiedzialną za przekazywanie sygnałów i komunikatów między operatorem żurawia a hakowym nazywamy:
- sygnalistą
- sygnałowym
- sygnatariuszem
- informatorem
113. Osobę, która wykonuje czynności związane z zawieszaniem i odczepianiem ładunków nazywamy
- sygnalistą
- ładunkowym
- operatorem ładunku
- hakowym
114. Po montażu żurawia wieżowego na nowej budowie decyzję zezwalającą na eksploatację urządzenia, po zmianie lokalizacji, każdorazowo wydaje
- kwalifikowany konserwator
- kierownik budowy
- inspektor UDT
- inspektor BHP
115. Po upływie terminu ważności zaświadczenia kwalifikacyjnego do obsługi urządzenia obsługujący :
- może obsługiwać UTB o ile nie zmieniły się jego parametry techniczne
- nie może obsługiwać UTB do czasu uzyskania nowego zaświadczenia
- może obsługiwać UTB po złożeniu wniosku o wydanie nowego zaświadczenia
- odpowiedzi a i c są prawidłowe
116. Po upływie terminu ważności zaświadczenia kwalifikacyjnego do obsługi urządzenia obsługujący:
- może obsługiwać UTB o ile kontynuuje pracę u tego samego pracodawcy
- może obsługiwać UTB o ile złoży wniosek o wydanie kolejnego zaświadczenia
- może obsługiwać UTB dopiero po uzyskaniu nowego zaświadczenia kwalifikacyjnego
- składa wniosek o przedłużenie terminu ważności zaświadczenia kwalifikacyjnego
117. Po wykonanych czynnościach przy urządzeniu technicznym inspektor sporządza:
- instrukcję eksploatacji urządzenia
- decyzję i protokół z wykonanych czynności
- deklarację zgodności CE
- wszystkie odpowiedzi są poprawne
118. Po zakończonym badaniu technicznym z wynikiem pozytywnym inspektor UDT:
- przedłuża ważność świadectwa kwalifikacji operatora
- oznakowuje urządzenie naklejką, która jest zezwoleniem na użytkowanie urządzenia
- informuje użytkownika pisemnie w dzienniku konserwacji, że wyraża zgodę na eksploatację urządzenia
- sporządza protokół z wykonanych czynności i wydaje decyzję administracyjną zezwalającą na eksploatację
119. Po zmianie lokalizacji żurawia wieżowego wymagającej jego demontażu i ponownego montażu w nowym miejscu pracy:
- eksploatujący zgłasza urządzenie w UDT w celu wykonania badania
- stan techniczny i prawidłowość montażu ocenia tylko konserwator potwierdzając to w dzienniku konserwacji
- stan techniczny i prawidłowość montażu ocenia tylko obsługujący potwierdzając to w dzienniku eksploatacji codziennej
- nie są wymagane dodatkowe czynności i sprawdzenia, o ile ważna jest decyzja zezwalająca na eksploatację wydana przez UDT
120. Po zmianie lokalizacji żurawia wieżowego, decyzję zezwalającą na eksploatację może wydać:
- konserwator
- właściciel żurawia
- inspektor dozoru technicznego
- wszystkie powyższe odpowiedzi są poprawne
121. Po zmianie miejąca lokalizacji żurawia wieżowego:
- należy telefonicznie powiadomić organ UDT
- należy zgłosić urządzenie do badania przez organ UDT
- można eksploatować żuraw pod warunkiem posiadania ważnej decyzji zezwalającej na eksploatację
- konserwator wykonuje próby ruchowe i wydaje zgodę na eksploatacje żurawia
122. Po zmianie miejsca pracy żurawia przewoźnego szybkomontującego:
- należy zgłosić urządzenie do badania doraźnego ekploatacyjnego
- obsługujący wykonuje próbę statyczną z obciążeniem 125% udźwigu nominalnego
- nie wymaga się zgłoszenia urządzenia do badania doraźnego eksploatacyjnego
- obsługujący wykonuje próbę dynamiczną z obciążeniem 110% udźwigu nominalnego
123. Po zmianie miejsca pracy żurawia związanej z demontażem i ponownym montażem nie wymaga badania doraźnego eksploatacyjnego UDT:
- żaden żuraw jeśli ma jeszcze ważną decyzję zezwalającą wydanej w poprzedniej lokalizacji
- żuraw wieżowy
- żuraw przewoźny szybkomontujacy
- odpowiedź b i c jest poprawna
124. Podnoszenie i przenoszenie ładunków przez dwa lub więcej UTB jest:
- dozwolone
- zabronione
- dozwolona na podstawie szczegółowych warunków eksploatacji, opisujących czynności organizacyjno- techniczne podejmowane w celu zminimalizowania ryzyka związanego z eksploatacją UTB
- dozwolone za zgodą konserwatora
125. Podnoszenie i przenoszenie ładunku przez jednocześnie dwa lub więcej żurawi:
- jest zawsze dopuszczalne o ile podnoszony ładunek nie przekracza udźwigu wszystkich żurawi
- żadna z odpowiedzi nie jest prawidłowa
- jest dopuszczalne za zgodą konserwatora wpisaną w dzienniku konserwacji
- jest dopuszczalne tylko jeżeli żurawie mają te same prędkości mechanizmu podnoszenia
126. Podnoszenie i przenoszenie osób przez urządzenie techniczne przeznaczone wyłącznie do transportu ładunków wymaga:
- uzgodnienia z organem właściwej jednostki dozoru technicznego
- uzgodnienia z przełożonym
- uzgodnienia ze służbą BHP
- jest możliwe przy zachowaniu szczególnej ostrożności i pod nadzorem inspektora
127. Podnoszenie ładunków za pomocą dwóch lub więcej UTB:
- jest dopuszczalne, pod warunkiem opracowania przez eksploatującego szczegółowych warunków eksploatacji, opisujących czynności organizacyjno-techniczne minimalizujące ryzyko
- jest zawsze dopuszczalne jeżeli masa ładunku nie przekracza sumy udźwigów wykorzystywanych urządzeń
- jest dopuszczalne jeżeli masa ładunku nie przekracza połowy udźwigu każdego z wykorzystanych urządzeń
- nie jest nigdy dopuszczalna
128. Podnoszenie osób urządzeniami, które zostały zaprojektowane i wykonane wyłącznie do podnoszenia ładunków:
- jest dopuszczalne, po zapewnieniu odpowiedniego poziomu bezpieczeństwa
- jest zabronione
- jest dopuszczalne, po uzgodnieniu z organem właściwej jednostki dozoru technicznego szczegółowych warunków eksploatacji
- jest dopuszczalne jednorazowo na pisemne polecenie przełożonego
129. Podnoszenie osób w koszu montażowym zawieszanym na haku do wykonywania prac może odbywać się:
- za zgodą kierownika budowy i służb BHP zgodnie z ich wytycznymi
- zgodnie z instrukcją żurawia i kosza do transportowania osób
- po otrzymaniu uzgodnionej instrukcji pracy w wyżej wymienionych warunkach uzgodnionej przez UDT
- bez żadnych dokumentów jeżeli nie ma przeciwskazań producenta żurawia
130. Podnoszenie pojemnika do transportu betonu wraz z osobą obsługującą ten pojemnik jest:
- dozwolone zgodnie z instrukcją obsługi producenta pojemnika
- dozwolone ale tylko bez betonu
- dozwolone na podstawie uzgodnionej z właściwą jednostką dozoru technicznego instrukcją i po pozytywnym badania technicznym żurawia
- dozwolone przez wszystkie żurawie na placu budowy pod warunkiem wydania pisemnej zgody przez kierownika budowy
131. Pozostawianie po zakończonej pracy zawieszonych na haku zawiesi i innego sprzętu jest:
- zawsze dopuszczalne
- dopuszczalne za zgodą kierownika budowy
- dopuszczalne, jeżeli pod hakiem nie ma pomieszczeń, w których mogą przebywać ludzie
- niedopuszczalne
132. Prawidłowe określenie jednostki udźwigu to:
- tona [t]
- centymetr [cm]
- megabajt [MB]
- megapaskal [Mpa]
133. Prawidłowe określenie jednostki udźwigu to:
- kg
- Pa
- mth
- mm
134. Przebywanie osób pod ładunkiem przenoszonym
- zawsze niedozwolone
- dozwolone dla osób kontrolującej spód ładunku
- dozwolone jeżeli współczynnik bezpieczeństwa cięgien wynosi nie mniej niż 5
- dozwolone jeżeli współczynnik bezpieczeństwa cięgien wynosi nie mniej niż 7
135. Przeciążanie UTB w trakcie pracy:
- jest zabronione
- jest dopuszczalne
- jest dopuszczalne ale tylko do 125% udźwigu nominalnego
- jest dopuszczalne ale tylko do 110% udźwigu nominalnego
136. Przedłużenie ważności zaświadczenie kwalifikacyjnego następuje:
- na pisemny wniosek obsługującego
- automatycznie po upływie terminu ważności zaświadczenia
- na pisemne zgłoszenie pracodawcy obsługującego
- po wcześniejszym zgłoszeniu telefonicznym
137. Przemieszczanie ładunku przy użyciu więcej niż jednego żurawia jest możliwe:
- tylko, jeżeli żurawie mają tą samą wysokość podnoszenia i udźwig
- tylko pod nadzorem inspektora UDT
- tylko za zgodą i pod nadzorem kierownika budowy
- na podstawie opracowanej w tym zakresie instrukcji
138. Przemieszczanie osób w koszu za pomocą żurawia powinno być podejmowane tylko w wyjątkowych przypadkach:
- kiedy koszt wynajęcia urządzeń przeznaczonych do tego celu jest zbyt wysoki
- kiedy występują trudności w zorganizowaniu urządzeń przeznaczonych do podnoszenia osób
- kiedy termin wynajęcia urządzeń przeznaczonych do podnoszenia osób jest zbyt odległy
- kiedy nie jest możliwe osiągnięcie dostępu do miejsca pracy przy użyciu urządzeń przeznaczonych do podnoszenia osób
139. Przenoszenia ładunków nad osobami jest:
- dozwolone pod warunkiem uzyskania pisemnego zezwolenia od osoby kierującej transportem
- dozwolone, po zapewnieniu współczynników bezpieczeństwa dla cięgien i urządzeń chwytnych większych niż 10
- dozwolone pod warunkiem powiadomienia osób i wyposażeniu ich w środki ochrony indywidualnej
- wszystkie odpowiedzi są niepoprawne
140. Przewożenie osób w koszu zawieszonym na haku żurawia:
- jest zabronione
- jest dopuszczalne sporadycznie na polecenie kierownictwa budowy
- wymaga opracowania instrukcji uzgodnionej z organem dozoru technicznego
- żadna z odpowiedzi nie jest prawidłowa
141. Regulację hamulca mechanizmu podnoszenia może wykonać:
- uprawniony przez UDT operator
- uprawniony przez UDT konserwator
- elektryk posiadający uprawnienia SEP
- pracownik wyznaczony przez kierownika budowy
142. Skrót GNP oznacza:
- dopuszczalne maksymalne obciążenie żurawia
- udźwig przy maksymalnym wysięgu żurawia
- grupę natężenia pracy
- zdolność kojarzenia ruchów żurawia
143. Stateczność żurawia:
- jest zachowana gdy moment ustalający jest mniejszy od wywracającego
- jest zachowana wyłącznie wtedy gdy moment wywracający jest równy ustalającemu
- nie dotyczy żurawi kotwionych do obiektu
- jest zachowana gdy moment ustalający jest większy od wywracającego
144. Szkic sytuacyjny umiejscowienia żurawia w miejscu zainstalowania nie musi zawierać:
- rzeczywistych odległości żurawia od otoczenia
- pieczątki, podpisu, daty oraz uprawnień budowlanych osoby, która go sporządziła
- odległości od wykopów, linii elektroenergetycznych lub innych urządzeń z którymi może występować kolizja
- danych identyfikacyjnych żurawia oraz miejsca jego zainstalowania
145. Termin „resurs” oznacza:
- parametry graniczne stosowane do oceny i identyfikacji stanu technicznego, określone na podstawie liczby cykli pracy i stanu obciążenia UTB w założonym okresie eksploatacji z uwzględnieniem rzeczywistych warunków użytkowania
- grupę natężenia pracy
- czasookres wykonywania przeglądów konserwacyjnych
- żadna z odpowiedzi nie jest prawidłowa
146. Terminy badań okresowych i doraźnych kontrolnych UTB określone są:
- w ustawie o dozorze technicznym
- w rozporządzeniu określającym warunki techniczne dozoru technicznego
- w dokumentacji konstrukcyjnej urządzenia
- w dzienniku konserwacji
147. Terminy przeglądów konserwacyjnych urządzenia mogą być określone:
- w instrukcji eksploatacji urządzenia i rozporządzeniu określającym warunki techniczne dozoru technicznego
- w ustawie o dozorze technicznym
- w rozporządzeniu określającym warunki techniczne dozoru technicznego i normach uznaniowych
- w rozporządzeniu określającym warunki techniczne dozoru technicznego i w instrukcji pracy w kolizyjnej lokalizacji
148. Terminy przeglądów konserwacyjnych urządzenia mogą być określone:
- w instrukcji eksploatacji urządzenia
- w ustawie o dozorze technicznym
- w rozporządzeniu określającym warunki techniczne dozoru technicznego
- odpowiedź a i c jest prawidłowa
149. Terminy przeglądów konserwacyjnych urządzeń technicznych:
- są zawarte w instrukcji eksploatacji urządzenia
- określa konserwator urządzenia
- określa w protokole inspektor wykonujący badanie
- wszystkie odpowiedzi są poprawne
150. Terminy przeglądów konserwacyjnych żurawi wieżowych są wykonywane:
- co 30 dni, o ile wytwórca nie określi inaczej
- co 60 dni, o ile wytwórca nie określi inaczej
- co 30 dni, o ile wytwórca nie określi inaczej, za wyjątkiem żurawi szybkomontujących
- co 30 dni
151. Torowiska żurawi wieżowych powinny być codziennie kontrolowane przez:
- osobę z uprawnieniami konstrukcyjno-budowlanymi
- operatora żurawia
- kierownika budowy
- konserwatora żurawia
152. Udźwig UTB to parametr urządzenia bezpośrednio związany z:
- maksymalną wysokością podnoszonego ładunku
- maksymalną objętością podnoszonego ładunku
- maksymalną masą podnoszonego ładunku
- iloczynem masy i objętości podnoszonego ładunku
153. Urządzenia techniczne nieobjęte dozorem technicznym to:
- żurawie o udźwigu do 3,2 t
- wciągniki i wciągarki oraz suwnice
- wózki jezdniowe podnośnikowe oraz podesty ruchome
- zawiesia transportowe
154. Urządzenia techniczne objęte dozorem technicznym to:
- koparki, koparkoładowarki
- palownice, wiertnice
- rusztowania budowlano-montażowe
- żurawie samojezdne, żurawie szybkomontujące
155. Urządzenia techniczne objęte dozorem technicznym to:
- przenośniki kabinowe i krzesełkowe
- układnice magazynowe oraz urządzenia dla osób niepełnosprawnych
- wyciągi towarowe i wyciągi statków
- wszystkie odpowiedzi są poprawne
156. Urządzenie techniczne można eksploatować na podstawie:
- aktualnej naklejki organu właściwej jednostki dozoru technicznego określającej termin kolejnego badania
- aktualnego wpisu konserwatora urządzenia w dzienniku konserwacji
- ważnej decyzji zezwalającej na eksploatację wydanej przez organ właściwej jednostki dozoru technicznego
- pozytywnego protokołu z badania okresowego lub odbiorczego
157. Urządzenie techniczne objęte dozorem technicznym może być eksploatowane na podstawie:
- zezwolenia ustnego lub pisemnego wydanego przez upoważnionego konserwatora
- ważnej decyzji zezwalającej na eksploatację wydanej przez organ właściwej jednostki dozoru technicznego
- oznaczenia CE umieszczonego na urządzeniu
- deklaracji zgodności wystawionej przez wytwórcę
158. Ustawa o dozorze technicznym określa następujące formy dozoru technicznego:
- całkowita, częściowa, ograniczona
- pełna, ograniczona, uproszczona
- pełna, cykliczna, sporadyczna
- UDT, WDT, TDT
159. Uszkodzenie liny nośnej na żurawiu operator powinien zgłosić:
- konserwatorowi urządzenia
- kierownikowi budowy
- właścicielowi żurawia
- wszystkie odpowiedzi są prawidłowe
160. Uzgodnioną naprawę lub modernizację urządzeń technicznych może wykonać:
- naprawiający lub modernizujący, który posiada uprawnienie wydane przez organ właściwej jednostki dozoru technicznego
- eksploatujący urządzenie techniczne posiadający odpowiednie doświadczenie w zakresie napraw lub modernizacji
- konserwator posiadający odpowiednie doświadczenie w zakresie napraw lub modernizacji
- w niewielkim zakresie kompetentny operator
161. Użycie kosza do podnoszenia osób nigdy nie będzie możliwe na:
- żurawiu szynowym
- żurawiu kotwionym do budynku
- żurawiu montowanym z użyciem kotew traconych
- żadna z powyższych odpowiedzi nie jest prawidłowa
162. W jakich warunkach atmosferycznych operator żurawia wieżowego ma obowiązek odstąpić od pracy?
- oblodzenie, intensywny deszcz
- słaba widoczność, intensywny opad śniegu
- gwałtowny wiatr powyżej wartości dopuszczalnej
- wszystkie odpowiedzi są prawidłowe
163. W przypadku awarii urządzenia komunikacyjnego, sygnalista porozumiewa się z operatorem przy użyciu sygnałów ręcznych:
- do czasu przywrócenia łączności
- do końca dnia pracy za zgodą kierownika budowy
- nie dłużej niż do zakończenia rozpoczętej czynności
- żadna z powyższych odpowiedzi nie jest prawidłowa
164. W przypadku cięgien nośnych linowych stosowanych w żurawiach:
- pęknięcia splotek są dopuszczalne
- niedopuszczalne są pęknięcia drutów w splotkach,
- dopuszczalne zużycie określa norma i instrukcja eksploatacji liny,
- zużycie liny określa właściciel żurawia
165. W przypadku dostrzeżenia usterki w urządzeniu obsługujący nie powinien:
- zawiadomić przełożonego lub konserwatora urządzenia o usterce
- w miarę własnych umiejętności dokonywać naprawy usterki
- przerywać pracy urządzeniem
- oznaczyć urządzenia jako uszkodzone
166. W przypadku gdy producent żurawia nie określił terminów przeglądów konserwacyjnych przeglądy należy wykonywać zgodnie z:
- rozporządzeniem Rady Ministrów z dnia 7 grudnia 2012 r. w sprawie rodzajów urządzeń technicznych podlegających dozorowi technicznemu
- rozporządzeniem Ministra Przedsiębiorczości i Technologii z dnia 30 października 2018 r. w sprawie warunków technicznych dozoru technicznego w zakresie eksploatacji, napraw i modernizacji urządzeń transportu bliskiego
- wytycznymi Urzędu Dozoru Technicznego
- z terminem określonym przez inspektora Urzędu Dozoru Technicznego w protokole
167. W przypadku kiedy żuraw posiada aktualny przegląd wykonany przez konserwatora i poświadczony w dzienniku konserwacji ale nie posiada ważnej decyzji zezwalającej na eksploatację wydanej przez UDT:
- żuraw można eksploatować
- żuraw można eksploatować do daty podanej w dzienniku konserwacji
- eksploatacja żurawia jest zabroniona
- żuraw można eksploatować do czasu wykonania badania przez inspektora UDT
168. W przypadku kiedy żuraw posiada ważną decyzję zezwalającą na eksploatację wydaną przez UDT, a konserwator w dzienniku konserwacji stwierdzi nieprawidłowość w funkcjonowaniu żurawia:
- żuraw można eksploatować do daty podanej w decyzji UDT
- eksploatacja żurawia jest dozwolona z ograniczeniem do połowy udźwigu żurawia
- eksploatacja żurawia jest dozwolona za pisemną zgodą Właściciela żurawia
- eksploatacja żurawia jest zabroniona
169. W przypadku kolizyjnej pracy dwóch żurawi jakie są dodatkowe wymogi co do bezpiecznej pracy?
- operatorzy żurawi muszą mieć stały kontakt radiowy
- musi być stworzona instrukcja kolizyjnych warunków pracy dla żurawi
- żurawie te muszą być tej samej wysokości
- poprawne są odpowiedzi a i b
170. W przypadku niebezpiecznego uszkodzenia urządzenia technicznego lub nieszczęśliwego wypadku eksploatujący:
- niezwłocznie powiadamia UDT o zaistniałym zdarzeniu
- powiadamia producenta urządzenia o przyczynach powstałego zdarzenia
- niezwłocznie dokonuje naprawy urządzenia i przekazuje do dalszej eksploatacji
- zgłasza urządzenie do wykonania naprawy
171. W przypadku niebezpiecznego uszkodzenia żurawia lub nieszczęśliwego wypadku podczas pracy eksploatujący:
- niezwłocznie powiadamia UDT o zaistniałym zdarzeniu
- powiadamia producenta o przyczynach powstałego zdarzenia
- niezwłocznie dokonuje naprawy żurawia i wznawia eksploatację
- zgłasza żurawia do naprawy
172. W przypadku nieprzestrzegania przez eksploatującego przepisów o dozorze technicznym eksploatujący:
- otrzymuje pisemne upomnienie
- otrzymuje zalecenia pokontrolne
- podlega grzywnie lub karze ograniczenia wolności
- odpowiedź a i b jest prawidłowa
173. W przypadku przekroczenia resursu żurawia, obsługujący:
- może eksploatować żuraw o ile żuraw ma ważną decyzje zezwalającą na eksploatację
- może eksploatować żuraw o ile żuraw ma aktualny przegląd wykonany przez konserwatora
- może eksploatować żuraw do czasu wykonania przeglądu specjalnego
- żadna z odpowiedzi nie jest prawidłowa
174. W przypadku stwierdzenia zagrożenia dla życia lub zdrowia ludzkiego oraz mienia i środowiska inspektor:
- wydaje decyzję wstrzymującą eksploatację urządzenia technicznego
- wystawia mandat karny
- pisemnie poucza eksploatującego
- wszystkie odpowiedzi są poprawne
175. W przypadku występowania silnego wiatru przekraczającego wartości dopuszczalne podane przez producenta żurawia, operator powinien:
- nie podejmować żadnych działań
- ostrożnie i ze zmniejszoną prędkością ruchów pracować dalej
- bezzwłocznie przerwać pracę
- odpowiedzi a i b są prawidłowe
176. W ramach czynności przed rozpoczęciem pracy obsługujący:
- sprawdza stan techniczny urządzenia poprzez oględziny
- wykonuje próby statyczną i dynamiczną
- wykonuje próby ruchowe urządzenia
- odpowiedź a i c jest prawidłowa
177. W ramach posiadanego zaświadczenia kwalifikacyjnego uprawniającego do obsługi żurawi, obsługującemu wolno:
- prowadzić konserwację żurawia zgodnie z instrukcją konserwacji dostarczoną przez producenta
- dokonywać napraw żurawia zgodnie z instrukcją konserwacji dostarczoną przez producenta
- usuwać drobne usterki, opisane w instrukcji obsługi
- na polecenie konserwatora dokonać regulacji elementów ogranicznika obciążenia żurawia
178. Wniosek o przedłużenie ważności zaświadczenia kwalifikacyjnego do obsługi składa
- obsługujący
- pracodawca
- ośrodek szkoleniowy, w którym odbyło się szkolenie
- żadna z odpowiedni nie jest prawidłowa
179. Wskaźnik wiatromierza umieszczony w kabinie żurawia wieżowego wskazuje aktualną prędkość wiatru mierzoną w:
- N/m2
- Km
- m/s
- wszystkie odpowiedzi są błędne
180. Wskaż zdanie błędnie opisujące wymagania stawiane ogranicznikowi udźwigu:
- stosowanie ogranicznika jest wymagane dla urządzeń o udźwigu mniejszym niż 1000kg lub momencie wywracającym mniejszym niż 40000Nm
- ogranicznik powinien działać w pełnym zakresie charakterystyki pracy żurawia
- ogranicznik powinien być instalowany w takich obwodach, aby użytkowanie żurawia bez załączonego ogranicznika było niemożliwe
- ogranicznik dla żurawi z nieliniową charakterystyką obciążenia powinien być ogranicznikiem momentu
181. Wskaż, który z rysunków przedstawia żuraw
- rys A
- rys B
- rys C
- wszystkie
182. Wymagane przepisami prawa przeglądy konserwacyjne wykonuje:
- osoba posiadająca zaświadczenie kwalifikacyjne do konserwacji
- pracownik autoryzowanego serwisu producenta urządzenia (pod warunkiem posiadania zaświadczeń kwalifikacyjnych do konserwacji)
- zakładowe służby utrzymania ruchu
- odpowiedź a i b jest prawidłowa
183. Wymagania dotyczące komunikatów słownych?
- komunikat powinien mieć formę krótkich tekstów, zwrotów, słów pojedynczych lub grup słów
- komunikaty powinny być możliwie najprostsze, przystosowane do zdolności słyszenia odbiorcy
- osoby będące nadawcami i odbiorcami komunikatu powinny dobrze znać język, w którym jest sformułowany
- wszystkie odpowiedzi są poprawne
184. Wymagania dotyczące sygnałów dźwiękowych?
- powinien być dobrze słyszalny dostosowany do poziomu hałasu ale nie może być nadmiernie głośny lub przykry
- powinien być łatwo rozpoznawalny
- powinien odróżniać się od tła
- wszystkie odpowiedzi są poprawne
185. Wymagania dotyczące sygnałów świetlnych?
- emitowane światło powinno kontrastować z otoczeniem i warunkami jego stosowania, nie powinno powodować olśnienia ale powinno być dobrze widoczne
- powierzchnia świecąca w jednym kolorze lub symbol obrazkowy na określonym tle
- jeżeli urządzenie może wysyłać sygnał świetlny ciągły i przerywany to sygnał przerywany powinien być używany do informowania o większym niebezpieczeństwie
- wszystkie odpowiedzi są poprawne
186. Wysięg to:
- pozioma od osi obrotu żurawia do osi obrotu haka
- pozioma odległość od osi obrotu żurawia do środka ciężkości podnoszonego obciążenia
- długość wysięgnika
- pionowa odległość od poziomu posadowienia żurawia do haka
187. Wysięg żurawia to maksymalna odległość osi haka od:
- krawędzi wywrotu
- środka przeciwwagi
- osi obrotu żurawia
- odpowiedź nie jest poprawna
188. Wysięgiem żurawia nazywamy:
- pionową odległość pomiędzy podstawą żurawia a jego wysięgnikiem
- poziomą odległość pomiędzy osią obrotu żurawia a osią urządzenia chwytającego
- pozioma odległość pomiędzy początkiem a końcem wysięgnika
- odległość od osi urządzenia chwytającego do miejsca odłożenia ładunku mierzona przed podniesienim ładunku
189. Za bezpieczną obsługę i konserwację urządzenia technicznego podlegającego dozorowi technicznemu odpowiada:
- producent urządzenia
- serwisant
- operator i konserwator
- wszystkie odpowiedzi są prawidłowe
190. Za właściwy dobór zawiesi i ich prawidłowe zapięcie na haku żurawia z kabiną odpowiada
- kierownik budowy
- hakowy
- operator żurawia
- pracownik wyznaczony przez kierownika budowy
191. Zadaniem wodzaka zainstalowanego na wysięgniku żurawia jest:
- zabezpieczenie ładunku zawieszonego na haku przed nadmiernym rozkołysaniem
- umożliwienie pochyłu wysięgnika
- możliwość zmiany aktualnego wysięgu żurawia
- prowadzenie linki ogranicznika prędkości
192. Zależność udźwigu od wysięgu żurawia nazywamy:
- momentem obciążenia żurawia
- wysięgiem zredukowanym żurawia
- charakterystyką podnoszenia żurawia
- charakterystyką udźwigu żurawia
193. Zaświadczenia kwalifikacjne do obsługi żurawi wieżowych uprawniają również do obsługi:
- żurawi samojezdnych
- suwnic i wciągników
- żurawi szybkomontujących
- żadna z odpowiedzi nie jest prawidłowa
194. Zaświadczenia kwalifikacyjne do obsługi urządzeń technicznych podlegających dozorowi technicznemu wydaje:
- firma szkoleniowa po pozytywnym wyniku egzaminu sprawdzającego
- inspektor BHP na podstawie zaświadczenia o ukończeniu kursu
- pracodawca na podstawie zdanego egzaminu
- organ właściwej jednostki dozoru technicznego
195. Zaświadczenia kwalifikacyjne do obsługi urządzeń technicznych podlegających dozorowi technicznemu wydaje:
- właściciel urządzenia
- UDT, TDT, WDT
- PIP
- wszystkie odpowiedzi są niepoprawne
196. Zaświadczenia kwalifikacyjne do obsługi żurawi wieżowych i szybkomontujących uprawniają do:
- obsługi żurawi dolnoobrotowych o udźwigu nie większym niż 6 t
- obsługi żurawi wodzakowych o udźwigu nie większym niż 6 t
- do wszystkich rodzajów żurawi wieżowych, za wyjątkiem żurawi szybkomontujących
- do wszystkich rodzajów żurawi wieżowych, szybkomontujących
197. Zaświadczenia kwalifikacyjne uprawniające do obsługi urządzeń technicznych ważne są na terenie:
- Rzeczypospolitej Polskiej
- Unii Europejskiej
- nie mają określonego obszaru ważności
- krajów strefy Schengen
198. Zaświadczenia kwalifikacyjne:
- są ważne bezterminowo
- są terminowe z okresem ważności uzależnionym od ilości uzyskanych punktów na egzaminie
- są terminowe z okresem ważności zgodnym z zapisami rozporządzenia w sprawie trybu sprawdzenia kwalifikacji
- są ważne przez okres 15 lat
199. Zaświadczenie kwalifikacyjne do obsługi może zostać cofnięte przez:
- organ właściwej jednostki dozoru technicznego
- eksploatującego urządzenie techniczne
- inspektora bhp
- Państwową Inspekcję Pracy
200. Zaświadczenie kwalifikacyjne do obsługi urządzeń technicznych są:
- ważne na terenie Unii Europejskiej
- ważne z dowodem tożsamości
- bezterminowe
- wszystkie odpowiedzi są poprawne
201. Zaświadczenie kwalifikacyjne do obsługi żurawi wieżowych i szybkomontujących jest ważne:
- bezterminowo
- 5 lat
- 10 lat
- wszystkie odpowiedzi są błędne
202. Zaświadczenie kwalifikacyjne do obsługi żurawi wieżowych i szybkomontujących uprawnia również do obsługi żurawi:
- stacjonarnych
- przewoźnych i przenośnych
- samojezdnych
- szynowych
203. Zaświadczeń kwalifikacyjnych do obsługi nie wymaga się:
- jeżeli urządzenie jest obsługiwane przez jego właściciela
- jeżeli wszystkie mechanizmy urządzenia mają napęd ręczny
- jeśli urządzenie jest wykorzystywane do celów prywatnych, nie zarobkowych
- od osób po 60 roku życia
204. Zespół czynności mających na celu przywrócenie stanu zdatności użytkowej urządzenia technicznego w myśl przepisów o dozorze technicznym to:
- modernizacja
- naprawa
- konserwacja
- żadna z odpowiedzi nie jest prawidłowa
205. Zgodnie z rozporządzeniem Ministra Przedsiębiorczości i Technologii z dnia 30.10.2018 r. uprawnienia do obsługi żurawi wieżowych i szybkomontujacych pozwalają obsługiwać także:
- żurawie szynowe
- żurawie samojezdne
- żurawie przewoźne i przenośne
- żadna z powyższych odpowiedzi nie jest prawidłowa
206. Zmiana parametrów technicznych lub konstrukcji żurawia traktowana jest jako:
- modernizacja żurawia
- naprawa żurawia
- usuwanie usterek żurawia
- wytworzenie nowego żurawia
207. Zmiana parametrów technicznych lub zmiana konstrukcji urządzenia technicznego traktowana jest jako:
- modernizacja urządzenia technicznego
- naprawa urządzenia technicznego
- usuwanie usterek i innych nieprawidłowości urządzenia technicznego
- wytworzenie nowego urządzenia
208. Żuraw posiadający ważną decyzję zezwalającą na eksploatację, po zmianie lokalizacji:
- musi zostać poddany badaniu doraźnemu eksploatacyjnemu
- musi zostać poddany badaniu okresowemu
- musi zostać poddany badaniu kontrolnemu
- nie musi być poddany badaniu, konserwator dokonuje stosowny wpis do dziennika konserwacji
209. Żuraw wieżowy nie należy zgłaszać do badania po:
- zmianie lokalizacji żurawia
- wymianie liny nośnej
- wymianie ogranicznika momentu
- wszystkie powyższe odpowiedzi są nie poprawne
210. Żuraw wieżowy to żuraw:
- górnoobrotowy
- dolnoobrotowy
- wodzakowy
- wszystkie odpowiedzi są poprawne
211. „Blokada zerowa” to:
- zabezpieczenie mechanizmów żurawia przed ich przypadkowym uruchomieniem przez osoby nieuprawnione
- ustawienie zblocza hakowego w pozycji spoczynkowej po zakończeniu pracy
- możliwość odłożenia ładunku na podłoże w przypadku przeciążenia żurawia
- zabezpieczenie przed samoczynnym uruchomieniem żurawia po postoju spowodowanym wyłączeniem zasilania przy wychylonych dźwigniach sterujących
212. „Blokada zerowa” zabezpiecza przed:
- nieautoryzowanym użyciem przez przypadkowe osoby
- przeciążeniem żurawia
- samoczynnym załączeniem żurawia po zaniku napięcia
- zerwaniem liny
213. „Blokada zerowa”:
- powoduje odcięcie zasilania żurawia w sytuacji awaryjnej
- blokuje ruch dźwigni sterowniczych przy nie załączonym styczniku głównym
- zabezpiecza przed niezamierzonym samoczynnym ruchem mechanizmów
- umożliwia załączenie stycznika głównego w przypadku, gdy sterownik znajduje się poza położeniem neutralnym
214. Aktualną długość wysięgu żurawia operator może określić m.in. za pomocą:
- wskazania urządzeń elektronicznych
- określenie położenia wodzaka przez hakowego
- wzrokowej oceny odległości wodzaka od wieży
- żadna odpowiedź nie jest prawidłowa
215. Anemometr znajdujący się na wyposażeniu żurawia wieżowego odpowiada za:
- pomiar prędkości wiatru
- pomiar masy przemieszczanego ładunku
- pomiar prędkości przemieszczanego wodzaka
- spowolnienie mechanizmu obrotu w żurawiach górnoobrotowych
216. Co oznacza skrót IWR w opisie liny?
- rdzeń z włókna naturalnego
- rdzeń w postaci splotki stalowej
- rdzeń w postaci liny stalowej
- rdzeń z włókna syntetycznego
217. Co to jest wysięg żurawia?
- sumaryczna długość wszystkich członów wysięgnika
- długość wysięgnika mierzona w poziomie
- stały parametr określający pionową odległość do końca wysięgnika
- pozioma odległość między pionową osią obrotu żurawia a punktem zamocowania urządzenia chwytającego
218. Co to są kleszcze wiatrowe, w jakiej sytuacji obsługujący zobowiązany jest ich użyć?
- kleszcze wiatrowe zawiesza się na haku podczas podnoszenia wielkogabarytowych ładunków
- kleszczy wiatrowych używa tylko monter przy montażu żurawia
- kleszczami kotwiczy się żuraw wieżowy do torowiska po którym jeździ. Obsługujący używa ich po zakończonej pracy i podczas wiatru przekraczającego wartości dopuszczone w dokumentacji technicznej
- Kleszczy wiatrowych używa tylko konserwator wchodząc na wysięgnik
219. Czy gabaryty przemieszczanych ładunków na placu budowy mają wpływ na dopuszczalne obciążenie żurawia?
- nie – o obciążeniu żurawia stanowi jedynie masa podnoszonego ładunku
- tak – w przypadku, gdy swoją powierzchnią powodują wzrost sił poziomych związanych z prędkością wiatru i działających na konstrukcję żurawia
- nie, – ponieważ siły poziome nie stanowią zagrożenia dla pracy żurawia
- nie mają wpływu, przy założeniu, że będą zabezpieczone przed obrotem
220. Czy hak żurawia musi mieć zabezpieczenie przed spadnięciem zawiesia?
- nie jeśli przeszkadza w pracy a hakowy kontroluje ładunek
- tak jeśli posiada gniazdo montażowe na zabezpieczenie
- tylko hak jednorożny
- tylko hak dwurożny
221. Czy podczas obrotu wokół osi pionowej wysięgnika żurawia posadowionego na podporach współczynnik stateczności ulega zmianie?
- nie, ponieważ stateczność zależy od masy podnoszonego ładunku
- zmienia się tylko w przypadku, gdy podpory rozmieszczone są niesymetrycznie
- zawsze się zmienia
- nie, ponieważ współczynnik stateczności jest wartością stałą
222. Czy reklamy zamontowane do wysięgnika lub wieży żurawia mają wpływ na jego stateczność?
- nie
- mają tylko dla żurawi zamontowanych na torowisku;
- mają tylko dla żurawi powyżej 50m wysokości
- mają ze względu na dodatkowe obciążenie wiatrem konstrukcji żurawia
223. Diagram udźwigu żurawia to:
- piktogram określający datę dopuszczenia żurawia do eksploatacji
- protokół z badania żurawia sporządzony przez inspektora UDT
- tester służący do sprawdzenia działania urządzeń zabezpieczających
- opracowany przez producenta żurawia wykres za pomocą którego przedstawiono zależność wartości udźwigu żurawia od wartości wysięgu
224. Do czego służy elektryczny pierścień ślizgowy (złącze obrotowe) w żurawiu?
- zapobiega ślizganiu się wieńca obrotowego
- umożliwia swobodny obrót żurawia gwarantując zasilanie urządzenia
- zapobiega odkręcaniu się śrub wieńca obrotowego
- umożliwia zwiększenie wysokości wieży żurawia bez uszkodzenia źródła zasilania
225. Do czynników zewnętrznych mających wpływ na stateczność żurawia zaliczamy:
- temperaturę oraz masę przenoszonego obciążenia
- wielkość zabalastowania żurawia, wymiary ładunku oraz prędkości ruchów roboczych
- obciążenie wiatrem
- wszystkie odpowiedzi są niepoprawne
226. Do konstrukcji ustroju nośnego żurawia nie zaliczamy
- wysięgnika
- wieży
- podstawy
- wysięgu
227. Dopuszczalna ilość pękniętych drutów w linie nośnej:
- jest określana przez producenta liny w instrukcji eksploatacji
- jest określana przez konserwator w dzienniku konserwacji
- jest określona przez aktualne przepisy dotyczące warunków technicznych
- jest stała i wynosi 30 drutów na odległości 6 średnic
228. Dopuszczalną ilość pękniętych drutów w linach układu podnoszenia określa:
- inspektor UDT
- konserwator
- producent
- dyrektywa maszynowa
229. Droga hamowania mechanizmu podnoszenia/opuszczania zblocza hakowego w żurawiach wieżowych nie zależy od:
- konstrukcji układu hamowania
- kierunku pracy mechanizmem podnoszenia /opuszczania
- gabarytu przemieszczanego ładunku
- prędkości, przy której nastąpi zadziałanie układu hamulcowego
230. Elektroniczny system antykolizyjny zabezpiecza żuraw wieżowy przed:
- uderzeniem ciężarem zawieszonym na haku o ziemię
- uderzeniem konstrukcją wysięgnika o stała przeszkodę w zasięgu pracy żurawia
- uderzeniem zblocza o mechanizm wodzenia
- Uderzeniem statku powietrznego w konstrukcję żurawia
231. Graniczne parametry zużycia haka określa:
- konserwator
- eksploatujący
- operator
- producent żurawia
232. Jaka jest różnica pomiędzy wysięgiem a wysięgnikiem?
- wysięg to parametr techniczny, a wysięgnik to element konstrukcji
- wysięg i wysięgnik określają to samo
- wysięg to element bezpieczeństwa, a wysięgnik to element konstrukcji
- wysięgnik jest blachownicowy, a wysięg kratownicowy
233. Jaki styk drutów w splotce liny nośnej powoduje lepsze rozłożenie obciążeń?
- naprzemienny
- punktowy
- liniowy
- styk drutów w splotce liny nie ma znaczenia dla rozłożenia obciążeń
234. Jaką funkcje pełni blokada zerowa w żurawiu wieżowym?
- zabezpiecza przed minusową temperaturą
- zabezpiecza przed dostępem osób w pobliżu żurawia
- zabezpiecza przed powrotem napięcia i niezamierzonym ruchem żurawia
- wszystkie odpowiedzi są nieprawidłowe
235. Jakie elementy żurawia wpływają na jego moment ustalający?
- jedynie układ wysięgnikowy żurawia
- elementy żurawia znajdujące się wewnątrz krawędzi wywrotu
- wyłącznie wieża oraz podstawa żurawia
- elementy żurawia znajdujące się poza krawędzią wywrotu
236. Jakie liny należy stosować przy podnoszeniu ładunków za pomocą jednej liny oraz w układach linowych dwupasmowych, jak również wielopasmowych o dużej długości?
- stalowe, z rdzeniem stalowym
- prawozwite
- nieodkrętne
- lewozwite
237. Jakie wyposażenie powinien posiadać pilot zdalnego sterowania do obsługi żurawia szybkomontującego?
- tylko dźwignie z oznaczeniem kierunków ruchu i przycisk włącz/wyłącz
- tylko dźwignie z oznaczeniem kierunków ruchu, przycisk włącz/wyłącz i wyłącznik stop
- dźwignie z oznaczeniem kierunków ruchu, przycisk włącz/wyłącz i wyłącznik stop
- dźwignie z oznaczeniem kierunków ruchu, przycisk włącz/wyłącz i wyłącznik STOP, oraz wyłącznik główny żurawia
238. Jeżeli oprócz stałego pulpitu sterowniczego żuraw szybkomontujący jest wyposażony w sterowanie zdalne (pilot radiowy) wówczas:
- pilot zdalnego sterowania musi zapewniać możliwość przeprowadzenia awaryjnego opuszczania wysięgnika żurawia
- ze względu na dokładniejsze śledzenie ładunku przez operatora podczas sterowania pilotem radiowym, prędkość podnoszenia oraz opuszczania haka jest zwiększona o 10 %
- równoczesne sterowanie ze stałego pulpitu oraz z pulpitu zdalnego powinno być uniemożliwione
- sterowanie pilotem radiowym zawsze powinno umożliwiać odhamowanie mechanizmu obrotu w celu pozostawienia żurawia w pozycji wolnowiatrowej
239. Karta haka jest to:
- dokument potwierdzający zgodność z wzorcem
- dokument wypełniany przez Inspektora UDT
- dokument kontroli zużycia haka
- dokument wypełniany przez producenta
240. Kleszcze szynowe w mechanizmach jazdy żurawi wieżowych powinny:
- zabezpieczać przez niezamierzonym przemieszczaniem żurawia
- być stosowane jedynie w żurawiach wieżowych o wysokości podnoszenia powyżej 50 m
- zabezpieczać żuraw przed skutkami pracy poza jego zasięgiem
- być używane jedynie przy osiągnięciu prędkości wiatru powyżej 12 m/s
241. Kolumna obrotowa żurawia:
- służy do zmiany wysięgu
- ogranicza pole pracy żurawia
- służy do podnoszenia ładunków
- umożliwia obracanie wysięgnika względem osi pionowej
242. Kontrola obciążenia w żurawiu wieżowym wodzakowym jest realizowana poprzez:
- ogranicznik momentu
- ogranicznik siły wiatru
- ogranicznik siły w linie
- odpowiedź a i c są prawidłowe
243. Kontrola obciążenia w żurawiu wieżowym z wysięgnikiem wychylnym jest realizowana poprzez:
- ogranicznik momentu
- ogranicznik siły wiatru
- ogranicznik siły w linie
- odpowiedź a i c są prawidłowe
244. Kotwy tracone wykorzystywane są:
- w żurawiach szybkomontujących
- przy stacjonarnym montażu żurawia
- w żurawiach szynowych
- przy montażu żurawia przy silnym wietrze
245. Kotwy tracone znajdują się:
- w płycie fundamentowej
- w balaście centralnym
- na przeciwwadze
- na końcu wysięgnika
246. Kryteria zużycia lin to między innymi:
- zmniejszenie średnicy zewnętrznej
- korozja
- ilość pękniętych drutów
- wszystkie odpowiedzi są prawidłowe
247. Kryteria zużycia lin żurawia to między innymi:
- wytarcie rdzenia liny
- korozja drutów
- nadmierne rozciągnięcie i w konsekwencji wydłużenie liny
- korozja rdzenia
248. Kryteria zużycia lin żurawia to między innymi:
- korozja rdzenia
- wytarcie rdzenia liny
- ilość pękniętych drutów
- zbyt mała sprężystość drutów
249. Kryteria zużycia lin żurawia to między innymi:
- wytarcie rdzenia liny
- zbyt mała sprężystość splotek
- nadmierne rozciągnięcie i w konsekwencji wydłużenie liny
- deformacja liny
250. Która z poniższych niesprawności wymaga natychmiastowej wymiany liny:
- jakiekolwiek oznaki korozji
- niewystarczające smarowanie
- jakiekolwiek wyraźne zmniejszenie średnicy
- dwa zerwane druty na odległości 6 średnic liny
251. Które z poniższych określeń najlepiej opisuje prawidłowe zakończenie liny na bębnie wciągarki
- co najmniej trzy zwoje gdy zblocze znajduje się w najniższym położeniu
- co najmniej jeden zwój gdy zbocze znajduje się w najwyższym położeniu
- co najmniej cztery zwoje gdy zblocze znajduje się w najniższym położeniu
- co najmniej sześć zwojów gdy zbocze znajduje się w najwyższym położeniu
252. Który z mechanizmów musi być wyposażony w hamulec automatyczny:
- mechanizm jazdy wodzaka
- mechanizm podnoszenia haka
- mechanizm obrotu
- wszystkie odpowiedzi są poprawne
253. Który z mechanizmów nie musi być wyposażony w hamulec
- mechanizm jazdy wodzaka
- mechanizm podnoszenia haka
- mechanizm obrotu
- wymienione odpowiedzi są nieprawidłowe
254. Który z parametrów poprawia stateczność żurawia?
- zwiększenie wysięgu
- zmniejszenie wysięgu
- zmniejszenie wysokości podnoszenia
- zwiększenie wysokości podnoszenia
255. Lina nieodkrętna to:
- lina przeciwzwita z jedną warstwą splotek
- lina współzwita z jedną warstwą splotek
- lina przeciwzwita z dwoma warstwami splotek
- Lina współzwita z dwoma warstwami splotek
256. Liny stalowe mają zastosowanie między innymi w mechanizmach:
- obrotu i wychylania wysięgnika
- jazdy żurawia oraz przelinowania
- wodzenia i podnoszenia
- jazdy żurawia i podnoszenia
257. Łącznik bezpieczeństwa STOP wyłącza:
- działanie mechanizmów jazdy
- działanie mechanizmów podnoszenia
- działanie mechanizmu zmiany wysięgu
- wszystkie odpowiedzi są prawidłowe
258. Łącznik główny zasilania żurawia powinien:
- być koloru czerwonego
- mieć możliwość trwałego zablokowania (np. za pomocą kłódki) w pozycji załączonej
- mieć możliwość trwałego zablokowania (np. za pomocą kłódki) w pozycji wyłączonej
- być w miejscu niedostępnym dla operatora
259. Łącznik krańcowy mechanizmu zmiany wysięgu instalowany z żurawiach wieżowych z wychylnym wysięgnikiem zabezpiecza przed:
- przeciążeniem żurawia z chwilą uzyskania maksymalnego wysięgu
- ryzykiem tzw. "przerzucenia" wysięgnika po przekroczeniu przez ramię górnego skrajnego położenia
- niekontrolowanym ruchem wysięgnika poza skraje dopuszczalne położenia
- wszystkie odpowiedzi są poprawne
260. Łącznik krańcowy odwinięcia liny z bębna wciągarki ma za zadanie:
- pozostawić odpowiednią ilość liny na bębnie
- zablokować wszystkie ruchy żurawia
- wyłączyć obrót żurawia
- wyłączyć podnoszenie haka w górnym położeniu
261. Łącznik krańcowy to:
- element bezpieczeństwa zabezpieczający żurawia przed przeciążeniem
- element bezpieczeństwa zabezpieczający mechanizm przed przekroczeniem położenia krańcowego
- łącznik STOP
- odpowiedź a i c jest prawidłowa
262. Łącznik zatrzymania bezzwłocznego STOP powinien:
- rozłączyć zasilanie żurawia
- być koloru czerwonego i wystawać ponad swą obudowę
- znajdować się przy zbloczu żurawia
- wszystkie odpowiedzi są prawidłowe
263. Łączniki bezpieczeństwa występujące w obwodach sterowania żurawia
- krańcowy opuszczania i podnoszenia zblocza
- odboje
- zderzaki
- dźwignia odblokowania hamulca obrotu żurawia
264. Łączniki krańcowe mechanizmu zmiany wysięgu instalowane w żurawiach wieżowych wodzakowych zabezpieczają przed:
- odkręceniem się liny z bębna linowego mechanizmu wodzaka
- najazdem wózka wodzaka na konstrukcję żurawia
- przeciążeniem żurawia
- wszystkie odpowiedzi są poprawne
265. Łącznikiem krańcowym nazywamy
- układ kontroli obciążenia
- łącznik stop
- połączenie najwyższej części wieży żurawia z wysięgnikiem umożliwiające dojście operatora do kabiny
- żadna z odpowiedzi nie jest z poprawna
266. Maksymalny udźwig żurawia wieżowego jest
- stały dla danego typu żurawia
- zmienia się w zależności od konfiguracji olinowania żurawia
- zmienia się w zależności od wysokości żurawia
- zmienia się w zależności od placu budowy
267. Mechanicznym elementem bezpieczeństwa stosowanym w żurawiach wieżowych nie jest:
- osłona elementów ruchomych
- podpora (łapa oporowa) mechanizmu jazdy żurawia
- sprzęgło wciągarki mechanizmu podnoszenia
- zapadka zamykająca gardziel haka
268. Mechanizm wodzenia stosuje się w
- żurawiach samojezdnych
- żurawiach przenośnych
- żurawiach mających wysięgnik wodzakowy
- żurawiach wyposażonych w wysięgnik wychylny
269. Mechanizmem zmiany wysięgu nie stosowanym w budowie żurawi wieżowych jest mechanizm:
- wychylny
- wodzakowy
- członowy z zatrzaskami
- wypadowy
270. Na podstawie poniższego rysunku wskaż różnice pomiędzy wersją montażową F i R wieży żurawia
- wersja F jest montowana na kotwie traconej
- wersja R jest montowana na podstawach z balastem centralnym
- wersja R jest montowana na kotwie traconej
- nie ma żadnych różnic
271. Na poniższym rysunku cyfrą 3 oznaczono:
- wysięgnik
- przeciwwagę
- wodzak
- wysięgnik przeciwwagi
272. Na prędkość podnoszenia haka ma wpływ:
- długość wysięgnika i masa przeciwciężaru
- masa obciążenia zawieszonego na haku i średnica liny nośnej
- ilość pasm liny w zbloczu
- średnica bębna linowego zamontowanego w wciągarce
273. Na prędkość podnoszenia haka ma wpływ:
- ilość pasm liny nośnej
- napięcie sieci zasilającej
- długość wysięgnika i masa balastu przeciwwysięgnika
- warunki atmosferyczne
274. Na przedstawionym poniżej rysunku wskaż prawidłową instalacje zawleczek zabezpieczających:
- instalacja B i C
- instalacja C i D
- instalacja B, C i D
- wszystkie instalacje są dopuszczalne
275. Nakrętki śrub łączących poszczególne sekcje wysięgnika muszą być:
- wkręcone od strony górnej
- wkręcone od dołu
- zamocowane zgodnie z wytycznymi instrukcji eksploatacji
- o klasie min 8.8
276. Nastawniki są elementami żurawia:
- umieszczanymi w szafach sterowych, służącymi do zmiany nastaw parametrów żurawia
- służą do sterowania bezpośredniego mechanizmami żurawia
- służą do sterowania pośredniego mechanizmami żurawia
- wszystkie odpowiedzi są nieprawidłowe
277. O ile wytwórca nie określi inaczej dopuszczalne rozwarcie gardzieli haka wynosi:
- 2%
- 5%
- 10%
- 15%
278. O ile wytwórca nie określi inaczej dopuszczalne wytarcie gardzieli haka żurawia wynosi:
- 5%
- 3%
- 10%
- wszystkie odpowiedzi są niepoprawne
279. O ilości punktów kotwienia do budynku żurawia wieżowego określa:
- wysokość stawianego budynku, kotwienie co 30 metrów
- instrukcja producenta żurawia dla danej wersji montażowej
- prognozowana prędkość wiatru w miejscu eksploatacji
- instrukcja prac transportowych
280. Od czego między innymi zależy udźwig żurawia wieżowego zamontowanego na kotwie traconej?
- masy balastu na przeciwwysięgniku
- masy balastu na przeciwwysięgniku i kolejności jego ułożenia
- masy balastu centralnego i kolejności jego ułożenia
- odpowiedzi b i c są poprawne
281. Ogranicznik obciążenia zabezpiecza przed:
- rozkołysaniem ładunku
- osiągnięciem przez zblocze hakowe skrajnego górnego położenia
- utratą stateczności przez żuraw
- poluzowaniem liny nośnej
282. Ogranicznik obciążenia żurawia wieżowego
- może zostać celowo i trwale zmostkowany w trakcie eksploatacji przez konserwatora w sytuacji kiedy nie działa w sposób poprawny przewidziany przez producenta żurawia
- jest urządzeniem zabezpieczającym żuraw przed skutkami działania nadmiernej prędkości wiatru
- blokuje tylko te ruchy robocze, które zwiększają moment ustalający żurawia
- żadna z podanych odpowiedzi nie jest prawidłowa
283. Podstawowe zabezpieczenia typu mechanicznego stosowane w budowie żurawi wieżowych
- zawleczki, sworznie, odboje, zderzaki, łącznik krańcowy
- odboje, zawleczki, ogranicznik udźwigu, sworznie, zderzaki
- zawleczki, sworznie, zderzaki, zabezpieczenie gardzieli haka
- zawleczki, sworznie, łącznik stop, zderzaki, zabezpieczenie gardzieli haka
284. Poniższy rysunek przedstawia:
- wersje montażowe żurawia
- tylko wersję maksymalną żurawia
- żuraw na podstawie szynowej
- żuraw z wysięgnikiem wychylnym
285. Posadowienie żurawia musi być wykonane:
- na wylewce betonowej
- na podłożu z utwardzonego tłucznia budowlanego
- zgodnie z wymaganiami zawartymi w instrukcji eksploatacji
- na płytach betonowych
286. Pozycja wolnowiatrowa żurawia wieżowego
- włącza się automatycznie po uruchomieniu żurawia
- może być uruchomiona wyłącznie przez konserwującego żurawia
- może być uruchamiana wyłącznie podczas silnego wiatru
- powinna zostać ustawiona po zakończeniu pracy zgodnie z instrukcją eksploatacji żurawia
287. Prawidłowe oznaczenia poniższego rysunku to:
- 2 - odciąg wysięgu; 4 - odciąg przeciwwysięgnika; 19 - balast; 17 - hak
- - wysięg; 11 - wieża; 14 - zblocze hakowe; 19 - balast; 20 - przeciwwaga
- 1 - wysięgnik; 11 - zastrzał wieży; 14 - wodzak; 19 - przeciwwaga; 20 - balast
- 9 - wieża; 12 - mechanizm obrotu; 18 - mechanizm wodzenia; 20 - wciągarka
288. Prawidłowy sposób sztukowania lin nośnych to:
- sztukowanie za pomocą splatania na odcinku równym co najmniej 30 średnicom liny
- sztukowanie z zastosowaniem technologii spawania, po uprzednim uzgodnieniu z UDT
- sztukowanie z zastosowaniem zgrzewania technologią splotka do splotki
- żadna z powyższych odpowiedzi nie jest prawidłowa
289. Przeciążenie żurawia to:
- przekroczenie dopuszczalnego udźwigu dla danego wysięgu
- zmniejszenie wysięgu poza dopuszczalny
- przekroczenie dopuszczalnego kąta obrotu żurawia
- przekroczenia dopuszczalnej wysokości podnoszenia
290. Przed rozpoczęciem pracy zakres sprawdzenia układu hamulcowego żurawia obejmuje:
- dokonanie oględzin zewnętrznych układu hamulcowego
- wykonanie próby dynamicznej hamulca
- wykonanie próby statycznej hamulca
- wszystkie odpowiedzi są poprawne
291. Przedstawione na rysunku jest:
- zblocze trzykrążkowe, w którym zarówno osie krążków jak i oś haka zabezpieczone są przed obrotem
- zblocze, w którym poprzez demontaż środkowego krążka uzyskuje się olinowanie dwupasmowe
- zblocze, w którym poprzez przepięcie środkowego krążka do wodzaka uzyskuje się olinowanie dwupasmowe
- zblocze, w którym demontaż lub przepięcie do wodzaka środkowego krążka powoduje dwukrotne zwiększenie udźwigu
292. Przedstawiony rysunek dotyczy:
- sposobu podhaczania unoszonego ładunków
- sposób montażu balastu wysięgnika
- wartość wskazań ogranicznika obciążenia
- sposób montażu balastu centralnego
293. Przedstawiony rysunek określa:
- ilość wstawek wieży żurawia
- aktualną załączoną prędkość mechanizmu podnoszenia
- ilość pasm lin zblocza hakowego
- wartość przełożenia mechanizmu jazdy wodzaka
294. Przedstawiony rysunek występujący w żurawiach z elektronicznym wyświetlaczem dotyczy:
- stan sieci elektrycznej
- prędkość obrotową silnika
- wskazania ogranicznika obciążenia
- wielkość podnoszonego ciężaru
295. Przykładowy przedstawiony w instrukcji obsługi rysunek dotyczący żurawia wieżowego informuje o:
- sposobie ułożenia balastu centralnego żurawia dla wysięgu 30 m
- sposobie ułożenia balastu centralnego żurawia dla dwóch wysokości wieży A i B
- konfiguracji i rozmieszczeniu balastów przeciwwysięgnika
- kalibracja ogranicznika udźwigu powinna zostać przeprowadzona ze wskazanym balastem podczas podnoszenia go na wysięgu 30 m
296. Równomierne zmniejszenie średnicy zewnętrznej liny nośnej może być spowodowane:
- wytarciem powierzchni zewnętrznej
- odkształceniem liny
- zbyt mała sprężystością splotek
- zbyt mała sprężystością rdzenia
297. Rysunek przedstawia posadowienie żurawia
- na torowisku
- na ramie krzyżowej
- na kotwie traconej
- rysunek nie przedstawia posadowienie żurawia
298. Rysunek przedstawia posadowienie żurawia
- na torowisku
- na ramie krzyżowej
- na kotwie traconej
- rysunek nie przedstawia posadowienie żurawia
299. Rysunek przedstawia posadowienie żurawia
- na torowisku
- na ramie krzyżowej
- na kotwie traconej
- rysunek nie przedstawia posadowienie żurawia
300. Samopowrotność dźwigni sterujących w żurawiu, powoduje:
- samoczynny powrót dźwigni sterujących do ostatniego zasterowanego położenia
- samoczynny powrót dźwigni sterujących do położenia zerowego
- samoczynny powrót dźwigni sterujących do położenia najmniejszej prędkości
- żadna z odpowiedzi nie jest prawidłowa
301. Sposób posadowienia żurawia wynika z:
- przepisów Prawa Budowlanego
- wewnętrznych przepisów kierownika budowy
- osoby posiadającej uprawnienia do montażu żurawi
- wytycznych montażu zawartych w instrukcji eksploatacji żurawia
302. Sprawdzenie ograniczników ruchów roboczych polega na:
- weryfikacji ich współdziałania z elementami współpracującymi (krzywki, zderzaki, dźwignie), ich stanów zamknięcia i otwarcia
- sprawdzeniu ich działania z prędkością odpowiednią dla danego mechanizmu bez obciążenia
- prawdzeniu czy ich załączenie spowoduje wyłączenie odpowiednich ruchów
- wszystkie odpowiedzi są prawidłowe
303. Sprawne dźwignie sterujące żurawia wieżowego z czuwakami:
- chronią przed niezamierzonym ruchem żurawia
- wymagają potwierdzenia zasterowania ruchu
- ruch żurawia wykonywany jest po wychyleniu dźwigni bez żadnej kombinacji przycisków
- odpowiedzi a i b są prawidłowe
304. Stabilizator zblocza hakowego to:
- odpowiednio dobrana masa równoważąca
- dodatkowa lina zabezpieczająca przed obracaniem się zblocza przy wysięgniku wychylnym
- sztywne prowadzenie ładunku
- element stabilizujący montowany w mechanizmach jazdy żurawia
305. Stan techniczny haka określa się na podstawie:
- daty produkcji
- ilości karbów
- oględzin i pomiarów
- ilości przepracowanych cykli
306. Stateczność żurawia wieżowego zapewniona jest dzięki:
- zabalastowaniu dolnym
- zabalastowaniu wysięgnika
- podłożu, w który osadzona jest kotwa tracona
- wszystkie odpowiedzi są poprawne
307. Sterowanie żurawi wieżowych może być realizowane:
- bezprzewodowo
- z platformy sterowniczej
- z kabiny operatora
- wszystkie odpowiedzi są poprawne
308. Sterowniki są elementami żurawia:
- służą do sterowania pośredniego mechanizmami żurawia
- kontrolują prawidłowe działanie ogranicznika obciążenia
- służą do sterowania bezpośredniego mechanizmami żurawia
- występują wyłącznie w żurawiach sterowanych bezprzewodowo
309. Tabliczki z określeniem udźwigu żurawia wzdłuż wysięgnika montuje się:
- co 5 m
- co 10 m
- w miejscach określonych diagramem udźwigu lub dokumentacją techniczną żurawia
- w miejscach łączenia poszczególnych sekcji wysięgnika
310. Termin „splotka” oznacza:
- sposób zakończenia wolnego końca liny
- konstrukcyjną część liny stalowej
- wielożyłowy przewód elektryczny
- sposób łączenie wolnej końcówki liny poprzez jej splot
311. Tzw. łapy oporowe możemy spotkać w żurawiach:
- kotwionych do budynku
- szynowych
- montowanych z użyciem kotew traconych
- żadna z powyższych odpowiedzi nie jest prawidłowa
312. Udźwig żurawia wieżowego dolnoobrotowego
- maleje wraz ze wzrostem wysięgu
- jest stały w całym polu pracy
- zwiększa się wraz ze wzrostem wysięgu
- maleje wraz ze wzrostem wysokości podnoszenia
313. Udźwig żurawia wieżowego jest
- stały w całym zakresie pracy żurawia
- maleje wraz ze wzrostem promienia wysięgu
- zależy od prędkości wiatru
- wszystkie odpowiedzi są prawidłowe
314. Udźwig żurawia zmienia się w zależności od:
- długości wysięgu
- rodzaju olinowania
- kąta pochylenia wysięgnika
- wszystkie odpowiedzi są prawidłowe
315. Urządzenia sterujące ruchami żurawia
- muszą wymagać podrzymania a w przypadku ich zwolnienia muszą samoistnie powracać do położenia neutralnego
- nie wymagają podtrzymania o ile żuraw sterowany jest z poziomu roboczego
- muszą wymagać podrzymania a w przypadku przypadku ich zwolnienia muszą pozostawać w ustalonej przez operatora pozycji
- nie wymagają podtrzymania a w przypadku ich zwolnienia nie jest wymagane powracały do położenia neutralnego
316. Urządzenie do klatkowania może być zamontowane:
- Urządzenie do klatkowania może być zamontowane:
- w kabinie operatora
- na przeciwwysięgniku
- na elemencie wieży
317. Urządzeniem bezpieczeństwa zabezpieczającym żurawia przed przeciążeniem jest:
- łącznik krańcowy
- łącznik STOP
- ogranicznik obciążenia
- wszystkie odpowiedzi są prawidłowe
318. W budowie których mechanizmów żurawi wieżowych instalowane/stosowane są wyłączniki końcowe?
- mechanizmu podnoszenia
- mechanizmu zmiany wysięgu/wodzenia
- odpowiedzi A i B są prawidłowe
- Żadna z odpowiedzi nie jest prawidłowa
319. W celu regeneracji haka dopuszczalne jest:
- spawanie pęknięć
- napawanie drobnych ubytków
- podgrzewanie i prostowanie
- zeszlifowanie zadziorów
320. W których mechanizmach występują łączniki krańcowe w żurawiu wieżowym?
- podnoszenia
- zmiany wysięgu
- jazdy
- wszystkie powyższe odpowiedzi są prawidłowe
321. W oparciu o przedstawiony obraz wskaż właściwą odpowiedź:
- hamulec otwarty
- kierunek wodzenia
- kierunek obrotu
- kierunek jazdy
322. W oparciu o przedstawiony obraz wskaż właściwą odpowiedź:
- kierunek obrotu
- kierunek wodzenia
- kierunek jazdy
- hamulec zamknięty
323. W oparciu o przedstawiony rysunek wskaż, w którym sposobie przelinowania prędkość podnoszenia jest największa:
- Rys 1
- Rys 2
- Rys 3
- Rys 4
324. W oparciu o przedstawiony rysunek wskaż, w którym sposobie przelinowania wartość udźwigu jest największa:
- Rys 1
- Rys 2
- Rys 3
- Rys 4
325. W przypadku podnoszenia ludzi w koszu współczynnik bezpieczeństwa dla zawiesi powinien wynosić:
- dla zawiesi linowych - 10, dla zawiesi łańcuchowych – 8
- dla zawiesi linowych - 6, dla zawiesi łańcuchowych - 10
- dla zawiesi linowych - 8, dla zawiesi łańcuchowych - 10
- dla zawiesi linowych - 10, dla zawiesi łańcuchowych - 6
326. W skład mechanizmu obrotu żurawia wieżowego wchodzi:
- siłownik elektryczny wraz z wyłącznikami krańcowymi
- silnik elektryczny, przekładnia zębatą
- wieniec zębaty wraz z kołem zębatym
- odpowiedź b i c jest prawidłowa
327. W skład ogranicznika obciążenia w żurawiu szynowym wchodzi:
- ogranicznik siły i ogranicznik momentu siły udźwigu
- ogranicznik siły i wiatromierz
- ogranicznik momentu siły udźwigu i masa przeciwwagi
- ogranicznik siły i masa balastu
328. W żurawiach wieżowych wysięg minimalny:
- zawsze wynosi 0m
- zależy od budowy wysięgnika żurawia
- zawsze wynosi 10% wysięgu maksymalnego
- zależy od budowy wieży żurawia
329. Wielkość balastu centralnego żurawia górnoobrotowego wodzakowego zależy od:
- ilości pasm liny zblocza
- długości wysięgnika żurawia
- prędkości pracy mechanizmu obrotu żurawia
- wielkości bazy krzyżowej posadowienia żurawia
330. Wielkość balastu przeciwwysięgnika żurawia górnoobrotowego wodzakowego zależy od:
- wysokości wieży żurawia
- długości wysięgnika żurawia
- lokalnej strefy wiatrowej
- rodzaju posadowienia żurawia
331. Wieniec jest częścią mechanizmu:
- jazdy
- obrotu
- podnoszenia
- zmiany wysięgu
332. Wieże żurawi wieżowych:
- budowane są jako jeden element, którego długość uzależniona jest od wysokości podnoszenia
- składają się z połączonych ze sobą sekcji, a ich montaż wykonywany jest w oparciu o instrukcje eksploatacji
- są kratownicową konstrukcją spawaną, a łączenie poszczególnych sekcji odbywa się poprzez spawanie
- są kratownicową konstrukcją spawaną, a łączenie poszczególnych sekcji odbywa się poprzez nitowanie
333. Wodzak jest częścią:
- mechanizmu zmiany wysięgu
- mechanizmu jazdy
- mechanizmu podnoszenia
- nie występuje w żurawiach
334. Wodzakiem nazywamy:
- element żurawia realizujący zmianę wysięgu
- element żurawia realizujący ruch wysięgnika w żurawiach wychylnych
- element wciągarki żurawia odpowiedzialny za właściwe ułożenie liny podczas nawijania na bęben
- element odpowiedzialny za kontrolę kąta obrotu w żurawiach dolnoobrotowych
335. Wskaż co przedstawia rysunek:
- balast
- krzyżak
- przeciwwaga
- odpowiedź A i C jest prawidłowa
336. Wskaż opis prawidłowego sposobu mocowania lin do bębna linowego:
- dociśniecie liny za pomocą co najmniej 2 nakładek przykręconych do płaszcza bębna
- w gnieździe bębnowym za pomocą klina samozaciskowego
- w gnieździe bębnowym za pomocą wkładki z noskiem, dociskanej co najmniej dwoma wkrętami
- wszystkie powyższe odpowiedzi są prawidłowe
337. Wychylenie dźwigni w kierunku A powoduję:
- załączenie mechanizmu jazdy wodzaka
- załączenie mechanizmu jazdy żurawia
- załączenie mechanizmu obrotu żurawia
- załączenie mechanizmu opuszczania haka żurawia
338. Wychylenie dźwigni w kierunku B powoduję:
- załączenie mechanizmu jazdy wodzaka
- załączenie mechanizmu podnoszenia haka żurawia
- załączenie mechanizmu zmiany wysięgu w kierunku góra
- załączenie mechanizmu jazdy żurawia
339. Wychylenie dźwigni w kierunku B powoduję:
- załączenie mechanizmu jazdy wodzaka
- załączenie mechanizmu opuszczania haka żurawia
- załączenie mechanizmu zmiany wysięgu w kierunku góra
- załączenie mechanizmu jazdy żurawia
340. Wykres udźwigów żurawia przedstawia zależność:
- masy podnoszonego ładunku i prędkości wiatru
- masy podnoszonego ładunku i wysięgu
- wysokości podnoszenia ładunku i wysięgu
- wysięgu i prędkości wiatru
341. Wyłączniki krańcowe w mechanizmie podnoszenia/opuszczania haka żurawia szybkomontującego ograniczają:
- prędkość ruchów podnoszenia i opuszczania haka
- ruchy mechanizmu podnoszenia i opuszczania haka
- żadna odpowiedź nie jest prawidłowa
- odpowiedź a i b jest prawidłowa
342. Wymień zabezpieczenia elektryczne występujące w żurawiu wieżowym
- wyłącznik krańcowy podnoszenia i opuszczania haka
- wyłączniki jazdy żurawia
- wyłączniki krańcowe jazdy wodzaka
- wszystkie odpowiedzi są prawidłowe
343. Wysięg żurawia wieżowego to:
- wyrażona w metrach bezwzględna długość wysięgnika
- odległość pozioma mierzona od skrajnego punktu wieży żurawia do końca wysięgnika
- odległość pozioma mierzona w metrach, na którą operatorowi wolno transportować wszystkie ładunki
- odległość pozioma mierzona od osi obrotu żurawia do skrajnego położenia haka w chwili zadziałania wyłącznika krańcowego mechanizmu zmiany wysięgu
344. Wysokość podnoszenia żurawia wieżowego to:
- wyrażona w metrach wysokość bezwzględna jego wieży
- odległość pionowa mierzona w metrach, na którą operatorowi wolno transportować wszystkie ładunki
- odległość pionowa mierzona od poziomu ustawienia żurawia do urządzenia chwytającego znajdującego się w skrajnym górnym położeniu
- odległość pionowa mierzona od najniższego obsługiwalnego przez żuraw poziomu do dolnej krawędzi wysięgnika żurawia
345. Wyzwolenie (zadziałanie) ogranicznika udźwigu w żurawiu:
- wyłącza wszystkie ruchy żurawia
- wyłącza wszystkie ruchy zwiększające moment wywracający żurawia
- wyłącza stycznik główny żurawia
- wyłącza ruch w kierunku dół w żurawiu
346. Z przedstawionego poniżej diagramu udźwigu żurawia wynika, że:
- możliwe jest olinowanie 2, 3 i 4-pasmowe
- największy udźwig na końcu wysięgnika uzyskuje się przy wysięgniku o długości 35m
- rodzaj olinowania nie ma wpływu na udźwig
- balast centralny wynosi 16t
347. Z przedstawionego poniżej rysunku żurawia wynika, że:
- wysięg minimalny wynosi 19,5m
- udźwig nominalny wynosi 3,5t
- długość przeciwwysięgnika liczona od osi obrotu wynosi 15,1m
- d )długość wysięgnika liczona od osi obrotu wynosi 60m
348. Z przedstawionego poniżej rysunku żurawia wynika, że:
- wysięg minimalny wynosi 2,3m
- udźwig nominalny wynosi 3,5t
- wysokość kabiny operatora wynosi 4,3m
- długość wysięgnika liczona od osi obrotu wynosi 60m
349. Zabezpieczenia stosowane w hakach żurawi wieżowych to:
- ogranicznik udźwigu, ogranicznik krańcowy wysokości podnoszenia, zabezpieczenie nakrętki haka
- zamki bezpieczeństwa, ogranicznik krańcowy mechanizmu podnoszenia
- zapadka haka, zabezpieczenie nakrętki haka przed odkręceniem
- wszystkie odpowiedzi są prawidłowe
350. Zabezpieczeniami typu elektrycznego stosowanymi w żurawiach wieżowych są:
- falowniki, reduktory, łapy oporowe, bezpieczniki
- łączniki końcowe, kleszcze przeciwwiatrowe, sprzęgła, łożyska
- łączniki krańcowe, ograniczniki obciążenia, łączniki „stop„
- styczniki, przekaźniki, sterowniki, nastawniki
351. Zabezpieczeniami typu mechanicznego stosowanymi w żurawiach wieżowych są:
- barierki ochronne, wiatromierze, reduktory, łączniki krańcowe
- kleszcze przeciwwiatrowe, łapy oporowe, sprzęgła, łożyska
- zderzaki, odboje, osłony, zabezpieczenia gardzieli haka
- krawężniki, zgarniacze szynowe, łączniki końcowe, ograniczniki obciążenia
352. Zabezpieczenie przed skutkami zerwania liny znajduje się w mechanizmie:
- obrotu
- podnoszenia
- jazdy
- wodzenia
353. Zadaniem ogranicznika obciążenia jest:
- zabezpieczenie żurawia przed przeciążeniem konstrukcji
- zabezpieczenie żurawia przed utratą stateczności
- zabezpieczenie żurawia przed niebezpiecznymi ruchami
- wszystkie odpowiedzi są poprawne
354. Zblocze hakowe to:
- element trawersy lub sztywnego zawiesia ładunku
- mechaniczna blokada zabezpieczająca przed wysunięciem się zawiesi z haka
- mechaniczne urządzenie zabezpieczające przed obrotem haka podczas podnoszenia ładunków
- żadna z odpowiedzi nie jest poprawna
355. Zgodność liczby oraz rodzaju (typu) bloków balastu centralnego w podstawie wieży żurawia zależy od ?
- wersji montażowej żurawia zgodnej z jego instrukcją eksploatacji
- ulega zmianie wraz ze zmianą wagi transportowanego ładunku
- w żaden sposób nie wpływa na poprawną eksploatację żurawia
- wynika z kalkulacji prowadzonych przez operatora
356. Zmiana wysięgu w żurawiu wieżowym/szynowym realizowana jest poprzez:
- mechanizm wychylania wysięgnika lub mechanizm jazdy wodzaka
- mechanizm jazdy żurawia oraz mechanizm obrotu
- mechanizm podnoszenia zblocza oraz mechanizm jazdy wózka
- wszystkie odpowiedzi są niepoprawne
357. Zmianę wysięgu żurawi wieżowych realizowana jest przez:
- jazdę wózka wodzaka
- zmianę kąta wysięgnika
- jazdę żurawia
- odpowiedź a i b jest prawidłowa
358. Zmniejszenie średnicy zewnętrznej liny nośnej może być spowodowane:
- zbyt mała sprężystością splotek
- zbyt mała sprężystością rdzenia
- pęknięciem zewnętrznych drutów
- uszkodzeniem rdzenia liny
359. Zwiększenie wysięgu może być realizowane przez:
- mechanizm podnoszenia i opuszczania wysięgnika
- mechanizm obrotu
- mechanizm jazdy wodzaka
- odpowiedzi a i c są prawidłowe
360. Żuraw wieżowy powinien być wyposażony w łączniki krańcowe:
- mechanizmu podnoszenia haka
- mechanizmu zmiany wysięgu
- mechanizmu wiatromierza
- odpowiedź a i b jest prawidłowa
361. Żuraw wieżowy zainstalowany z tzw. kotwą traconą to:
- żuraw, którego wieża została posadowiona na przewidzianej do tego konstrukcji stalowej częściowo zabetonowanej w fundamencie
- żuraw wieżowy, którego wieża z uwagi na dużą wysokość zawsze kotwiona jest do powstającego budynku dodatkowymi kotwami
- żuraw z wieżą wykonaną z kratownicy, poruszający się po torowisku kotwionym do podłoża
- żuraw stacjonarny, dla którego nie przewiduje się demontażu i ponownego montażu na nowym miejscu pracy
362. Czynności zabronione, których nie wolno wykonywać przy eksploatacji żurawi to m.in.:
- podnoszenie ładunku o nieznanej masie
- transport ładunku nad ludźmi
- praca żurawiem bez aktualnej decyzji zezwalającej na eksploatację
- wszystkie odpowiedzi są prawidłowe
363. Która z wymienionych instrukcji musi zostać uzgodniona z jednostką dozoru technicznego?
- Instrukcja kolizyjnej pracy
- Instrukcja podnoszenia ludzi w koszu
- Instrukcja pracy żurawia w pobliżu napowietrznych linii elektroenergetycznych
- Instrukcja pracy żurawia w pobliżu wykopów
364. Badania doraźne kontrolne przeprowadza się:
- po zmianie miejsca pracy żurawia
- po wymianie liny mechanizmu podnoszenia
- po wykonaniu modernizacji żurawia
- wszystkie odpowiedzi są niepoprawne
365. Badanie doraźne eksploatacyjne wykonywane jest:
- po zmianie lokalizacji żurawia
- po wymianie szyby w kabinie
- po wymianie stycznika w szafie sterowej
- wszystkie odpowiedzi są prawidłowe
366. Bezpieczną odległość podczas pracy żurawiem (w poziomie) od linii wysokiego napięcia na placu budowy wyznacza się ustalając:
- odległość pomiędzy przewodem neutralnym tej linii, a osią obrotu haka żurawia
- odległość pomiędzy najbliższym skrajnym przewodem linii będącym pod napięciem, a końcem wysięgnika
- odległość pomiędzy najbliższym skrajnym przewodem linii będącym pod napięciem, a najbliższym elementem żurawia lub przenoszonego ładunku
- odległość pomiędzy przewodem neutralnym tej linii, a najbliższym elementem żurawia lub przenoszonego ładunku
367. Bezpieczne odległości pracy żurawi od linii elektroenergetycznych podawane w przepisach krajowych to odległości:
- pionowe
- poziome
- skośne
- wypadkowe
368. Blokada krzyżowa zabezpiecza przed:
- uruchomieniem dwóch mechanizmów jednocześnie
- niezamierzonym uruchomieniem mechanizmu roboczego po zaniku napięcia
- skutkami wyładowań atmosferycznych
- zanikiem napięcia
369. Blokada zerowa układu sterowania to:
- ustawienie wszystkich mechanizmów poza strefą krańcową
- brak możliwości sterowania mechanizmem podnoszenia ustawionego na łączniku krańcowym
- brak możliwości sterowania mechanizmem zmiany wysięgu ustawionego na łączniku krańcowym
- żadna z odpowiedzi nie jest poprawna
370. Blokada zerowa zabezpiecza przed:
- uruchomieniem dwóch mechanizmów jednocześnie
- niezamierzonym uruchomieniem mechanizmu roboczego po załączeniu napięcia
- skutkami wyładowań atmosferycznych
- zanikiem napięcia
371. Chwytnik pneumatyczny umożliwia podnoszenie ładunku dzięki:
- nadciśnieniu panującemu w elementach chwytnych chwytnika
- zmianie biegunowości pola magnetycznego chwytnika
- strumieniowi magnetycznemu działającemu na podnoszony element
- podciśnieniu panującemu w elementach chwytnych chwytnika
372. Co oznacza gest wykonany przez sygnalistę na rysunku?
- Start. Uwaga! Początek kierowania
- Zatrzymać. Przerwa – koniec ruchu
- Koniec. Zatrzymanie działania
- Stop! Zatrzymanie w nagłym przypadku
373. Co oznacza gest wykonany przez sygnalistę na rysunku?
- Start. Uwaga! Początek kierowania
- Zatrzymać. Przerwa – koniec ruchu
- Koniec. Zatrzymanie działania
- Stop! Zatrzymanie w nagłym przypadku
374. Co oznacza gest wykonany przez sygnalistę na rysunku?
- Start. Uwaga! Początek kierowania
- Zatrzymać. Przerwa – koniec ruchu
- Koniec. Zatrzymanie działania
- Stop! Zatrzymanie w nagłym przypadku
375. Co oznacza gest wykonany przez sygnalistę na rysunku?
- odległość pozioma
- odległość prawidłowa
- Start. Uwaga! Początek kierowania
- Zatrzymać. Przerwa – koniec ruchu
376. Co oznacza gest wykonany przez sygnalistę na rysunku?
- ruch w prawo od sygnalisty
- ruch w lewo od sygnalisty
- ruch do przodu
- ruch do tyłu
377. Co oznacza gest wykonany przez sygnalistę na rysunku?
- ruch do przodu
- ruch w prawo od sygnalisty
- ruch w lewo od sygnalisty
- ruch do tyłu
378. Co oznacza gest wykonany przez sygnalistę na rysunku?
- ruch do przodu
- ruch w prawo od sygnalisty
- ruch w lewo od sygnalisty
- ruch do tyłu
379. Co oznacza gest wykonany przez sygnalistę na rysunku?
- ruch do przodu
- ruch do tyłu
- ruch w prawo od sygnalisty
- ruch w lewo od sygnalisty
380. Co oznacza gest wykonany przez sygnalistę na rysunku?
- odległość pozioma
- odległość prawidłowa
- Start. Uwaga! Początek kierowania
- Zatrzymać. Przerwa – koniec ruchu
381. Co oznacza gest wykonany przez sygnalistę na rysunku?
- Start. Uwaga! Początek kierowania
- Zatrzymać. Przerwa – koniec ruchu
- Koniec. Zatrzymanie działania
- Stop! Zatrzymanie w nagłym przypadku
382. Co oznacza sygnał wykonywany przez hakowego lub sygnalistę ?
- ruch w prawo od sygnalisty
- ruch w lewo od sygnalisty
- UWAŻAJ - z lewej strony znajduje się przeszkoda
- UWAŻAJ - z prawej strony znajduje się przeszkoda
383. Co oznacza sygnał wykonywany przez hakowego lub sygnalistę ?
- uwaga na konstrukcje znajdujące się wyżej
- uruchom mechanizm podnoszenia w kierunku góra
- uwaga na podmuchy wiatru
- uwaga na sąsiedni żuraw
384. Co oznacza sygnał wykonywany przez hakowego lub sygnalistę ?
- uruchom mechanizm podnoszenia w kierunku góra
- KONIEC - zatrzymanie działania
- uruchom mechanizm podnoszenia w kierunku dół
- uwaga na sąsiedni żuraw
385. Co oznacza sygnał wykonywany przez hakowego lub sygnalistę ?
- uruchom mechanizm podnoszenia w kierunku góra
- uwaga na podmuchy wiatru
- ZATRZYMAJ - koniec ruchu
- uwaga na sąsiedni żuraw
386. Co oznacza sygnał wykonywany przez hakowego lub sygnalistę ?
- STOP - zatrzymanie w nagłym wypadku
- uruchom mechanizm podnoszenia w kierunku góra
- uwaga na podmuchy wiatru
- uwaga na sąsiedni żuraw
387. Co składa się na ocenę stanu technicznego haka
- sprawdzenie wytarcia i rozwarcia gardzieli haka
- sprawdzenie zgodności z warunkami zawartymi w instrukcji eksploatacji
- odpowiedzi a, b i d są prawidłowe
- sprawdzenie swobodnego obrotu haka w zbloczu i stanu zabezpieczenia nakrętki
388. Czy kleszcze przeciwwiatrowe są elementem współpracującym, z:
- mechanizmem obrotu żurawia
- mechanizmem jazdy wodzaka
- mechanizmem pochylania wysięgnika
- torowiskiem jazdy żurawia szynowego
389. Czy można wyciągać zawiesie spod ładunku przy pomocy żurawia?
- można, z zachowaniem ostrożności
- nie wolno
- decyduje o tym hakowy
- decyduje o tym sygnalista
390. Czy na podczepianym ładunku mogą znajdować się przedmioty luźno na nim położone?
- nie, jest to zabronione
- mogą, po położeniu ich na środku ładunku
- mogą, gdy ładunek jest ułożony poziomo
- mogą, gdy nie następuje "kołysanie" ładunku
391. Czy operator może sprawdzić ogranicznik obciążenia w żurawiu wieżowym?
- nie, bo wiąże się to z przeciążaniem urządzenia
- tak, ale tylko w obecności inspektora BHP
- tak, zgodnie z instrukcją eksploatacji
- tak, ale tylko w obecności przełożonego
392. Czy operatorowi żurawia wieżowego wolno podnosić ładunek przymarznięty do podłoża?
- tak na wyraźne polecenie wyznaczonego hakowego
- tak, jeśli wyznaczony hakowy wspomaga podnoszenie poprzez np. podważanie ładunku dźwignią (drewnianą kantówką)
- nie
- tak, jeżeli pomaga podnieść ładunek wyznaczony operator wózka widłowego
393. Czy po zakończeniu pracy można zostawić zawiesie na haku żurawia?
- tak
- tak, po otrzymaniu zgody od kierownika budowy
- tak, po zachowaniu odpowiedniej odległości od elementów kolizyjnych
- nie
394. Czy w świetle obowiązujących przepisów jest możliwe podnoszenie ładunku przez dwa lub więcej żurawi wieżowych?:
- nie
- tak, sposób podjęcia ładunku ustalają między sobą operatorzy żurawi i przystępują do wykonania zadania
- tak, eksploatujący opracowuje szczegółowe warunki eksploatacji, opisując czynności organizacyjno- techniczne podejmowane w celu zminimalizowania ryzyka związanego z taką operacją
- eksploatujący uzgadnia szczegółowe warunki eksploatacji z organem właściwej jednostki dozoru technicznego i zapoznaje ze szczegółami operatorów żurawi biorących udział w operacji
395. Czy zgodnie z przepisami po zakończonej pracy można pozostawić na haku zawiesia?
- tak ale tylko łańcuchowe
- nie można
- tak ale jeśli hak jest w pozycji najwyższej i najbliżej wieży
- tak, nie jest to niebezpieczne
396. Czy żuraw, którego wysięgnik wystaje poza obrys ogrodzenia placu budowy może pracować?
- tak, jeśli na ogrodzeniu umieszczono tablice ostrzegawcze
- tak, jeśli na ogrodzeniu umieszczono czerwone lampy ostrzegawcze
- tak, jeśli istnieje instrukcja pracy w warunkach kolizyjnych
- Odpowiedzi a, b i c są prawidłowe
397. Czynności zabronione to:
- przeciąganie przez żuraw ładunków spoczywających na podłożu
- pozostawianie po zakończonej pracy zawieszonych na haku żurawia ładunków, zawiesi i innego osprzętu
- obsługiwanie żurawia w warunkach atmosferycznych ograniczających widoczność, o zmroku lub w nocy bez dostatecznego oświetlenia zasięgu pracy żurawia
- wszystkie odpowiedzi są poprawne
398. Decyzja zezwalająca na eksploatację traci ważność w przypadku:
- wymiany elementów aparatury sterowej
- wymiany haka
- wymiany zawiesia
- wymiany rozdzielnicy budowlanej zasilającej żuraw
399. Do czego służy przycisk awaryjnego zatrzymania „STOP”
- do zatrzymania awaryjnego wszystkich mechanizmów
- do wyłączenia zasilania żurawia
- do wyłączenia zasilania cewki stycznika głównego
- wszystkie powyższe odpowiedzi są poprawne
400. Do stref niebezpiecznych czyli miejsc objętych zakazem pracy żurawiem należą:
- kontenery zaplecza budowy
- kabiny toaletowe
- drogi publiczne
- wszystkie odpowiedzi są poprawne
401. Do uszkodzeń dyskwalifikujących z użytkowania linę nośną należy:
- zapadnięcie się splotki/splotek
- znaczne odkształcenie liny
- pęknięcie splotki
- wszystkie powyższe odpowiedzi są prawidłowe
402. Do zakresu obowiązków operatora nie należy:
- wykonywanie niewielkich napraw żurawia w ramach posiadanego wykształcenia i umiejętności
- przestrzeganie instrukcji eksploatacji w zakresie obsługi UTB
- zapoznanie się z planem pracy i wielkością przenoszonych ładunków
- ocena stanu żurawia przed rozpoczęciem pracy
403. Dopuszczalna maksymalna prędkość wiatru w trakcie pracy określona została przez producenta żurawia na 20 m/s, po przeliczeniu na km/h wynosi ona:
- około 50 km/h
- około 60 km/h
- około 72 km/h
- nie można przeliczyć tych jednostek
404. DOR odnosi się do:
- zawiesia
- haka
- liny
- ładunku
405. Działanie ograniczników ruchów roboczych żurawia należy sprawdzać
- z obciążeniem nominalnym
- bez obciążenia
- przy prędkości nominalej obciążeniem nominalnym
- odpowiedzi a i c są prawidłowe
406. Eksploatacja żurawia w przypadku kolizyjnej lokalizacji jest:
- możliwa po opracowaniu szczegółowych warunków technicznych i organizacyjnych minimalizujących ryzyko wystąpienia zagrożenia
- możliwa po uzgodnieniu opracowanej instrukcji z organem UDT
- niedopuszczalna
- możliwa bez dodatkowych wymagań
407. Gdy niemożliwe jest bezpieczne zejście z górnej części żurawia przy użyciu drabinek, operator żurawia w sytuacji zagrażającej bezpieczeństwu powinien:
- pozostać w kabinie żurawia
- opuścić kabinę korzystając ze specjalnego sprzętu ratowniczego będącego na wyposażeniu żurawia
- wykonać połączenie alarmowe 112
- powiadomić kierownika budowy (przełożonego)
408. Gdzie są opisane obowiązki obsługującego żuraw:
- w stanowiskowej instrukcji pracy
- w instrukcji pracy żurawia w warunkach kolizyjnej lokalizacji
- w instrukcji obsługi żurawia
- wszystkie powyższe odpowiedzi są poprawne
409. Hakowy jest osobą, która:
- powinna posiadać stosowną wiedzę i doświadczenie z zakresu obsługi zawiesi
- powinna odróżniać się ubiorem od pozostałych pracowników znajdujących się na poziomie roboczym
- powinna posiadać stosowne upoważnienie wydane przez pracodawcę do pełnienia funkcji hakowego
- odpowiedzi a, b i c są prawidłowe
410. Hamowanie przeciwprądem mechanizmu obrotu wysięgnika:
- nie jest w żadnym przepadku dozwolone
- dozwolone jest, jeżeli przewiduje to instrukcja eksploatacji żurawia
- dozwolone wyłącznie w sytuacjach zagrożenia
- nie występuje w mechanizmach obrotu żurawi wieżowych
411. Hamulec mechanizmu podnoszenia jest sprawny jeżeli:
- droga hamowania mieści się w przedziale 300-500mm
- ładunek po zatrzymaniu ruchu haka utrzymuje się bez zmiany pozycji, nie opada, ani gwałtownie się nie ślizga
- siła hamowania jest równa iloczynowi udźwigu do wysokości podnoszenia
- odpowiedzi b i c są poprawne
412. Informacja o maksymalnej sile wiatru przy jakiej można pracować żurawiem zawarta jest w:
- ustawie o dozorze technicznym
- rozporządzeniu Ministra Przedsiębiorczości i Technologii z dnia 30 października 2018 roku w sprawie warunków technicznych dozoru technicznego w zakresie eksploatacji, napraw i modernizacji urządzeń transportu bliskiego
- w instrukcji eksploatacji żurawia
- w dzienniku konserwacji
413. Instrukcja pracy żurawia w warunkach kolizyjnych zawiera:
- granice i oznakowanie stref pracy oraz możliwej kolizji
- informacje o strefach pracy wyłącznie przy wolnych ruchach
- sposób koordynacji pracy żurawi
- wszystkie odpowiedzi są prawidłowe
414. Jak należy zawieszać ładunek na haku dwurożnym?
- sposób założenia zawiesia nie ma znaczenia
- tak, aby jeden "róg" był obciążony
- tak, aby oba "rogi" były równomiernie obciążone
- tak, aby rozkład obciążenia na "rogach" wynosił 70/30 %
415. Jaka jest rola mechanicznej blokady dźwigni sterowniczych
- uniemożliwia wychylenie dźwigni sterowniczych bez wcześniejszego odblokowania blokady
- uniemożliwia przypadkowe wychylenie dźwigni sterowniczych
- uniemożliwia niekontrolowane uruchomienie mechanizmu
- wszystkie powyższe odpowiedzi są poprawne
416. Jaka jest zgodnie z prawem maksymalna prędkość wiatru pozwalająca na przemieszczanie żurawiem ładunków wielkowymiarowych?
- 15 m/s
- 15 km/h
- 10 m/s
- 10 km/h
417. Jaki mają wpływ warunki atmosferyczne na pracę żurawia wieżowego
- nie mają żadnego jeżeli żuraw jest odpowiednio zabalastowany
- mogą przyczynić się do utraty stateczności żurawia
- mogą spowodować uruchomienie wiatromierza
- odpowiedzi b i c są prawidłowe
418. Jaki mechanizm realizuje zmianę wysięgu w żurawiu wodzakowym?
- mechanizm wodzenia
- mechanizm podnoszenia
- mechanizm obrotu
- mechanizm jazdy
419. Jakie czynności należy wykonać przed sprawdzeniem łączników krańcowych jazdy żurawia
- zmierzyć w środkowej części toru drogę hamowania żurawia
- ocenić, czy rolka łącznika krańcowego wyjeżdza poza krzywkę na torowisku
- zmierzyć czy długość krzywki jest wystarczająca, aby żuraw zatrzymał się, rolka nie spadła z krzywki, a żuraw uderzył w odbój
- odpowiedzi a, b i c są prawidłowe
420. Jakie działanie powinien podjąć operator, jeżeli w czasie pracy stwierdzi pęknięcie splotki liny, trwałe zagięcie liny:
- powiadomić przełożonego i pracować dalej
- owinąć linę taśmą i pracować do momentu przybycia konserwatora
- pracować dalej z mniejszym obciążeniem haka do końca zmiany
- opuścić łagodnie ładunek w bezpieczne miejsce i przerwać pracę i powiadomić przełożonego
421. Jakie manewry mogą spowodować nadmierny moment skręcający (obrotowy) wieży żurawia:
- zbyt szybkie podnoszenie ładunku o masie równej udźwigowi żurawia
- zbyt szybkie rozpoczynanie i zatrzymywanie ruchu mechanizmu obrotu
- zbyt szybkie opuszczania ładunku o masie równej udźwigowi żurawia
- zbyt szybka zmiana wysięgu mechanizmem wodzenia z ładunkiem
422. Jakie są kryteria oceny prawidłowego działania łącznika krańcowego mechanizmu wodzaka?
- wyłącza mechanizm wodzaka w określonym kierunku
- zmniejsza prędkość i po zmniejszeniu prędkości wyłącza ruch mechanizmu wodzenia
- zadziałanie łącznika krańcowego nie może dopuścić do uderzenia zderzaka w odbój
- wszystkie powyższe odpowiedzi są poprawne
423. Jakie środki zabezpieczające są stosowane w żurawiach, w których zachodzi niebezpieczeństwo przerzucenia wysięgnika do tyłu
- mechaniczny ogranicznik (zderzak)
- eksploatacyjny łącznik końcowy wychyłu do góry
- krańcowy łącznik bezpieczeństwa wychyłu do góry
- wszystkie odpowiedzi są prawidłowe
424. Jeśli ładunek o wadze 20 ton jest podnoszony na czterech pasmach liny to obciążenie każdego pasma wynosi:
- 10 ton
- 20 ton
- 5 ton
- 2,5 tony
425. Jeśli wskaźnik momentu obciążenia żurawia działa nieprawidłowo, operator powinien:
- zaprzestać eksploatacji żurawia i zgłosić ten fakt przełożonemu
- wyłączyć ogranicznik i kontynuować tak, jakby wskaźnik nie był zainstalowany
- podjąć samodzielną próbę naprawy usterki
- zgłosić ten fakt przełożonemu i kontynuować pracę z zachowaniem ostrożności
426. Jeżeli fotel w kabinie operatora jest wyposażony w pasy bezpieczeństwa, to należy je zapinać:
- tylko w czasie wietrznej pogody
- przy podnoszeniu ładunków zbliżonych do obciążeń nominalnych
- zawsze
- przy konieczności ciągłego obracania się o 180 stopni
427. Jeżeli nie ustalono innych sygnałów, to zgodnie z obowiązującymi przepisami, w przypadku np. utraty łączności głosowej przedstawiony na rysunku sygnał ręczny podawany operatorowi żurawia przez sygnalistę dotyczy:
- PODNIEŚĆ DO GÓRY
- START Uwaga! Początek kierowania
- ZATRZYMAĆ Przerwa - koniec ruchu
- KONIEC Zatrzymanie działania
428. Jeżeli nie ustalono innych sygnałów, to zgodnie z obowiązującymi przepisami, w przypadku np. utraty łączności głosowej przedstawiony na rysunku sygnał ręczny podawany operatorowi żurawia przez sygnalistę dotyczy:
- ZATRZYMAĆ Przerwa - koniec ruchu
- ODLEGŁOŚĆ POZIOMA
- START Uwaga! Początek kierowania
- RUCH DO PRZODU
429. Jeżeli nie ustalono innych sygnałów, to zgodnie z obowiązującymi przepisami, w przypadku np. utraty łączności głosowej przedstawiony na rysunku sygnał ręczny podawany operatorowi żurawia przez sygnalistę dotyczy:
- RUCH DO PRZODU
- START Uwaga! Początek kierowania
- ZATRZYMAĆ Przerwa - koniec ruchu
- STOP Zatrzymanie w nagłym przypadku
430. Jeżeli nie ustalono innych sygnałów, to zgodnie z obowiązującymi przepisami, w przypadku np. utraty łączności głosowej przedstawiony na rysunku sygnał ręczny podawany operatorowi żurawia przez sygnalistę dotyczy:
- START Uwaga! Początek kierowania
- OPUŚCIĆ DO DOŁU
- PODNIEŚĆ DO GÓRY
- RUCH DO PRZODU
431. Jeżeli nie ustalono innych sygnałów, to zgodnie z obowiązującymi przepisami, w przypadku np. utraty łączności głosowej przedstawiony na rysunku sygnał ręczny podawany operatorowi żurawia przez sygnalistę dotyczy:
- KONIEC Zatrzymanie działania
- STOP Zatrzymanie w nagłym przypadku
- ZATRZYMAĆ Przerwa - koniec ruchu
- START Uwaga! Początek kierowania
432. Jeżeli nie ustalono innych sygnałów, to zgodnie z obowiązującymi przepisami, w przypadku np. utraty łączności głosowej przedstawiony na rysunku sygnał ręczny podawany operatorowi żurawia przez sygnalistę dotyczy:
- KONIEC Zatrzymanie działania
- STOP Zatrzymanie w nagłym przypadku
- ZATRZYMAĆ Przerwa - koniec ruchu
- RUCH DO TYŁU
433. Jeżeli po zaniku napięcia zasilającego żuraw, na haku pozostanie zawieszony ładunek, to:
- nie można pozostawić go bez nadzoru
- uniemożliwić dostęp do strefy niebezpiecznej
- upewnić się, że ładunek jest zawieszony i utrzymywany bezpiecznie
- wszystkie odpowiedzi są prawidłowe
434. Każdorazowo przed rozpoczęciem pracy operator żurawia powinien:
- wygrodzić pole pracy żurawia
- wezwać konserwatora w celu wykonania przeglądu żurawia
- sprawdzić poprawność działania zabezpieczeń żurawia
- przystąpić do pracy niezwłocznie po zajęciu miejsca w kabinie
435. Kiedy możliwe jest skorzystanie ze zblokowania ogranicznika udźwigu urządzenia (wyłączenie ogranicznika udźwigu)
- kiedy do miejsca składowania ładunku pozostało ok. 20 cm
- kiedy do miejsca składowania ładunku pozostało ok. 50 cm
- na wyraźne polecenie wyznaczonego hakowego
- żadne z powyższych
436. Kiedy należy przeprowadzić test funkcjonalny mechanizmów żurawia bez obciążenia:
- zawsze przed rozpoczęciem eksploatacji
- po podniesieniu po raz pierwszy obciążenia nominalnego celem rozgrzania mechanizmów
- tylko wtedy gdy wymaga tego instrukcja konserwacji
- nigdy, takie test nie jest zalecany dla żurawi wieżowych
437. Kiedy operator może opuścić kabinę żurawia:
- celem komunikacji z hakowym
- po zakończeniu pracy i zabezpieczeniu żurawia przed wpływem wiatru
- kiedy podniesie ładunek na bezpieczną wysokość
- celem usunięcia usterek w szafie sterowniczej
438. Kojarzenie ruchów mechanizmu obrotu i wodzenia
- jest zabronione
- jest możliwe i przyspiesza wykonanie pracy
- powoduje przeciążenie mechanizmów
- jest możliwe jedynie pod nadzorem hakowego
439. Kojarzenie ruchów obrotu i jazdy całego żurawia po torowisku
- jest niedopuszczalne
- jest możliwe i przyspiesza wykonanie pracy
- jest dozwolone przy dobrym stanie torowiska
- jest możliwe jedynie pod nadzorem hakowego
440. Kontrolę wzrokową stanu cięgien nośnych i urządzeń chwytających obsługujący żuraw powinien przeprowadzać:
- raz do roku
- z obciążeniem znamionowym lub w przypadku jego braku z dowolnym dostępnym obciążeniem, nie przekraczającym udźwigu nominalnego
- nie przeprowadza w ogóle, gdyż należy to do obowiązków osoby konserwującej
- przed każdym rozpoczęciem pracy
441. Kryteria prawidłowego działania łączników elektrycznych w żurawiu wieżowym określa:
- producent żurawia
- właściciel żurawia
- konserwator żurawia
- obsługujący żuraw
442. Kto ma prawo pokazać sygnał awaryjnego zatrzymania STOP:
- wyznaczony hakowy
- każdy hakowy
- kierownik budowy
- każda osoba
443. Która z poniższych rysunków wskazuje komendę „STOP”:
- RYS 1
- RYS 2
- RYS 3
- RYS 4
444. Które z poniższych czynności powinien wykonać obsługujący żuraw szynowy:
- weryfikację współdziałania krzywki z łącznikiem krańcowym mechanizmu jazdy
- kontrolę stanu odbojów, kleszczy szynowych, łap oporowych oraz zgarniaczy szynowych
- sprawdzenie prawidłowości działania kablozwijaka
- wszystkie odpowiedzi są prawidłowe
445. Które z wymienionych uszkodzeń/deformacji kwalifikują linę do niezwłocznej wymiany:
- zerwanie splotki lub wyciśnięcie splotki
- zmniejszenie średnicy liny spowodowane zerwaniem rdzenia
- deformacja w kształcie koszyka, węzły, supły lub zaciśnięte pętle
- wszystkie powyższe odpowiedzi są prawidłowe
446. Który objaw jest oznaką zerwania rdzenia liny stalowej?
- wypływający środek smarujący
- miejscowe zmniejszenie średnicy liny
- odciśnięcie kształtu splotek w rowku krążka
- grudki tworzące się po obu stronach uszkodzonego obszaru
447. Linę mechanizmu wciągarki należy wymienić, gdy:
- ulegnie zerwaniu rdzeń liny
- ulegnie zerwaniu jedna splotka
- nastąpi zgniecenie liny
- wszystkie powyższe odpowiedzi są poprawne
448. Luzowanie hamulca mechanizmu obrotu wykonujemy
- zawsze po zakończeniu pracy
- jedynie przy bezwietrznej pogodzie
- w sytuacjach określonych przez producenta
- nigdy
449. Ładunek można odłożyć poza zasięgiem żurawia:
- przy pomocy ciągniecia za ładunek przy pomocy odpowiedniej stalowej liny
- przy pomocy rozbujania ładunku i szybkiego opuszczenia na miejsce rozładunku
- przy pomocy ciągniecia za ładunek przy pomocy odpowiedniej liny z tworzywa sztucznego
- wszystkie odpowiedzi są nieprawidłowe
450. Ładunek zawieszony na haku:
- może być pozostawiony bez nadzoru obsługującego żuraw pod warunkiem zachowania odpowiedniej wysokości nad elementami kolizyjnymi
- może być pozostawiony pod nadzorem jedynie hakowego
- może być pozostawiony bez nadzoru obsługującego żuraw przy bezwietrznej pogodzie
- nie może być pozostawiony bez nadzoru obsługującego żuraw
451. Łącznik krańcowy górny mechanizmu podnoszenia w żurawiu wodzakowym:
- wyłącza ruch haka do góry
- wyłącza jednocześnie ruch haka do góry i wodzaka w kierunku zwiększania wysięgu
- wyłącza jednocześnie ruch haka do góry i wodzaka w kierunku zmniejszania wysięgu
- wyłącza jednocześnie ruch haka do góry i mechanizm obrotu
452. Łącznik krańcowy mechanizmu podnoszenia haka sprawdzamy:
- z obciążeniem nominalnym
- z dowolnym obciążeniem
- bez obciążenia
- nie sprawdzamy gdyż po jego zadziałaniu konieczna jest interwencja konserwatora
453. Łącznik krańcowy mechanizmu podnoszenia:
- oznacza to samo co łącznik bezzwłocznego zatrzymania "STOP„
- powoduje wyłączenie ruchów niebezpiecznych żurawia po zadziałaniu ogranicznika udźwigu
- jest elementem roboczym mechanizmu podnoszenia
- stanowi zabezpieczenie w skrajnym położeniu haka
454. Łącznik krańcowy podnoszenia haka w żurawiu z wysięgnikiem wychylnym:
- wyłącza tylko ruch haka do góry
- wyłącza tylko ruch wysięgnika do dołu
- wyłącza jednocześnie ruch haka do góry i ruch wysięgnika do dołu
- wyłącza jednocześnie ruch haka do góry i wysięgnika do góry
455. Łącznik krańcowy w mechanizmie podnoszenie w kierunku dół należy sprawdzać:
- z obciążeniem równym udźwigowi żurawia
- z obciążeniem dopuszczalnym na końcu wysięgnika
- bez obciążenia do najniższego poziomu obsługiwanego przez żuraw (np. dno wykopu)
- zawsze na maksymalnym wysięgu
456. Łącznik wiatromierza zainstalowany w obwodzie bezpieczeństwa powoduje:
- wyłączenie stycznika głównego po przekroczeniu przez wiatr dopuszczalnej prędkości
- sygnalizację przekroczenia dopuszczalnej prędkości wiatru przez sygnał dźwiękowy
- sygnalizację przekroczenia dopuszczalnej prędkości wiatru przez sygnał świetlny
- Wszystkie powyższe odpowiedzi są poprawne
457. Łącznik zatrzymania bezzwłocznego STOP powinien:
- rozłączyć zasilanie żurawia
- pozostać zablokowany w pozycji załączonej
- znajdować się przy zbloczu żurawia
- znajdować się na wodzaku
458. Mechaniczne zabezpieczenie wodzaka służy do:
- zatrzymania wodzaka w przypadku zaniku napięcia zasilającego żuraw
- zatrzymania wodzaka w przypadku zadziałania ogranicznika obciążenia
- zatrzymanie wodzaka w przypadku zerwania liny mechanizmu zmiany wysięgu
- zatrzymanie wodzaka w przypadku zerwania liny mechanizmu podnoszenia
459. Mechanizm wodzenia w żurawiu wieżowym:
- zapewnia prawidłowe układanie liny nośnej na bębnie mechanizmu podnoszenia
- zapewnia zmianę wartości wysięgu
- umożliwia nawijanie przewodu zasilającego podczas przemieszczania się żurawia
- umożliwia zmianę konfiguracji wysięgnika
460. Mechanizm zmiany wartości wysięgu w żurawiu wieżowym wodzakowym:
- uruchamia się automatycznie po zasterowaniu ruchu mechanizmu podnoszenia
- uruchamia się automatycznie po zasterowaniu ruchu mechanizmu obrotu żurawia
- taki mechanizm występuje wyłącznie w żurawiu wieżowym z wychylnym wysięgnikiem
- uruchamiany jest przez operatora za pomocą odpowiedniej dźwigni sterownika i działa niezależnie od mechanizmu obrotu żurawia
461. Montowanie banerów reklamowych na konstrukcji żurawia jest:
- zawsze niedozwolone
- dozwolone w miejscach i wielkości określonych przez producenta żurawia
- dozwolone wyłącznie za zgodą użytkownika żurawia
- dozwolone wyłącznie po pisemnym uzgodnieniu z UDT
462. Możliwość kojarzenia ruchów roboczych żurawia zależy od:
- stanu technicznego żurawia
- zapisów w instrukcji eksploatacji urządzenia
- zapisów w protokole z badania urządzenia
- umiejętności operatora
463. Na podstawie poniższego rysunku określ całkowitą masę balastu centralnego żurawia:
- 12480kg
- 23520kg
- 32000kg
- 8520kg
464. Na przedstawionym piktogramie komendę „Koniec Zatrzymanie działania” przedstawia osoba:
- A
- B
- C
- D
465. Na przedstawionym piktogramie komendę „Zatrzymać Przerwa – koniec ruchu” przedstawia osoba:
- A
- B
- C
- D
466. Na przedstawionym piktogramie znaczenie sygnału „Odległość pozioma” przedstawia osoba:
- A
- B
- C
- D
467. Na przedstawionym piktogramie znaczenie sygnału „STOP zatrzymanie w nagłym przypadku” przedstawia osoba:
- A
- B
- C
- D
468. Na stateczność żurawia wieżowego nie wpływa:
- masa żurawia
- ciężar podnoszonego ładunku
- parcie wiatru
- typ wciągarki mechanizmy podnoszenia
469. Na terenie pracy żurawia przy ograniczonej widoczności zapewnia się:
- oświetlenie o odpowiednim natężeniu zapewniające właściwą widoczność operatorowi żurawia w każdym punkcie poboru ładunku
- oświetlenie o odpowiednim natężeniu zapewniające właściwą widoczność sygnaliście w punkcie poboru ładunku
- oświetlenie obrysowe zapewniające właściwą widoczność konstrukcji żurawia
- żadna z odpowiedzi nie jest prawidłowa
470. Nadmierne zużycie eksploatacyjne haka żurawia to:
- rozgięcie gardzieli haka powyżej 5% wartości nominalnej,
- wytarcie haka poniżej 10% wartości nominalnej,
- brak zapadki na gardzieli
- wszystkie powyższe odpowiedzi są prawidłowe
471. Następująca usterka może zagrażać bezpieczeństwu pracy żurawia:
- nieczynny sygnał dźwiękowy
- ogranicznik momentu działający przy zbyt dużym obciążeniu
- brak szczebla w drabinie
- wszystkie wymienione w punktach a, b, c
472. Następująca usterka może zagrażać bezpieczeństwu pracy żurawia:
- znaczna liczba pękniętych drutów na linie mechanizmu podnoszenia
- poluzowana nakrętka śruby łączącej elementy wieży
- głośna praca wentylatora silnika mechanizmu obrotu
- prawidłowe są odpowiedzi a i b
473. Niekorzystny wpływ na stateczność żurawia ma parametr:
- zwiększenie wysięgu
- zmniejszenie wysięgu
- zmniejszenie wysokości podnoszenia
- zwiększenie wysokości podnoszenia
474. O ile wytwórca nie określi inaczej dynamiczną próbę hamulca układu mechanizmu podnoszenia haka należy wykonać:
- z obciążeniem nominalnym i na wysięgu minimalnym
- opuszczając ładunek kilkakrotnie zatrzymując ruch przyciskiem STOP
- stopniując prędkość opuszczania od najmniejszej do największej
- wszystkie odpowiedzi są prawidłowe
475. O ile wytwórca nie określi inaczej próbę ogranicznika obciążenia żurawia wodzakowego wykonujemy:
- z ładunkiem o masie 125%
- na wysięgu zgodnym z diagramem udźwigu w obszarze działania ogranicznika
- z obciążeniem zgodnym z diagramem udźwigu dla danego wysięgu
- odpowiedź b i c jest prawidłowa
476. O ile wytwórca nie określi inaczej sprawdzenie poprawności działania wyłączników krańcowych mechanizmu zmiany wysięgu wykonujemy:
- z ładunkiem maksymalnym
- z ładunkiem nominalnym
- z ładunkiem minimalnym wg wskazań diagramu udźwigu
- bez ładunku
477. O ile wytwórca nie określi inaczej statyczną próbę układu hamulca mechanizmu podnoszenia haka należy wykonać:
- unosząc i przytrzymując ładunek o masie 125% w czasie 1 godziny
- unosząc i przytrzymując ładunek o masie 100% na wysięgu minimalnym
- unosząc i przytrzymując ładunek o masie 110% w odległości zgodnej z diagramem udźwigu
- opuszczając ładunek kilkakrotnie zatrzymując układ poprzez zwolnienie nacisku na dźwignię sterującą
478. O ile wytwórca nie określi inaczej wyłącznik krańcowy mechanizmu podnoszenia haka w kierunku góra sprawdzamy:
- z ciężarem nominalnym
- bez ciężaru
- najpierw bez ciężaru, a następnie z ciężarem
- z największym dostępnym ciężarem, nie mniejszym niż 50% udźwigu nominalnego
479. Obowiązki operatora żurawia wieżowego znajdują się w:
- w rozporządzeniu Ministra Przedsiębiorczości i Technologii z dnia 21 maja 2019 r.
- w instrukcji eksploatacji urządzenia
- w instrukcji bhp kierownika budowy
- odpowiedzi A i B jest prawidłowa
480. Obsługiwanie żurawia podczas wyładowań atmosferycznych:
- jest dopuszczalne przy prędkości wiatru w porywach poniżej 15 m/s
- jest dopuszczalne o ile istnieje instrukcja kolizyjnej pracy
- jest dopuszczalne o ile widoczność jest wystarczająca
- jest zabronione
481. Obsługujący, przed przystąpieniem do pracy sprawdza hamulec wciągarki haka:
- bez obciążenia
- zawsze z obciążeniem nominalnym
- nie ma obowiązku sprawdzenia hamulca
- z pierwszym tego dnia podnoszonym ładunkiem
482. Ocenę stanu technicznego lin przeprowadza:
- tylko konserwator podczas przeglądów konserwacyjnych
- operator w ramach czynności przed rozpoczęciem pracy
- tylko inspektor UDT w trakcie wykonywanych czynności
- liny podlegają okresowej wymianie - nie ma potrzeby oceny
483. Odboje w żurawiu wieżowym występują w:
- mechanizmie jazdy
- mechanizmie obrotu
- mechanizmie podnoszenia
- mechanizmie opuszczania
484. Ogranicznik obciążenia w momencie przeciążenia żurawia powoduje:
- wyłącznie ruchu opuszczania haka
- wyłączenie ruchu zmniejszenia wysięgu
- wyłączenie ruchu podnoszenia haka
- wyłączenie wszystkich ruchów roboczych
485. Operator kończąc pracę żurawiem:
- postępuje zgodnie z DTR żurawia oraz instrukcją Bezpiecznej Pracy żurawia
- informuje tylko kieronika budowy
- informuje tylko swojego przełożonego
- nie są określone żadne wymagania
486. Operator ma obowiązek odmówić pracy w przypadku:
- niesprawności hamulca mechanizmu podnoszenia lub wodzenia
- temperatury otoczenia poniżej 0°C
- głośnej pracy wentylatora silnika mechanizmu obrotu
- wszystkie odpowiedzi są poprawne
487. Operator ma obowiązek reagować na sygnał STOP który jest wywołany przez:
- hakowego
- kierownika budowy
- pracownika budowy
- wszystkie odpowiedzi są prawidłowe
488. Operator ma obowiązek zapoznać się z:
- instrukcją pracy w warunkach kolizyjnych
- instrukcją montażu obsługiwanego żurawia
- instrukcją obsługi obsługiwanego żurawia
- odpowiedzi a i c są prawidłowe
489. Operator po zakończonej pracy powinien:
- ustawić zblocze w pozycji górnej przy wieży, zwolnić hamulec obrotu - zgodnie z instrukcją eksploatacji
- ustawić zblocze wraz z zawiesiami w wysokości połowy wieży, zwolnić hamulec obrotu tylko w przypadku spodziewanego załamania pogody
- zablokować hamulec obrotu
- ustawić zblocze wraz z zawiesiami na końcu wysięgnika w żurawiu szybkomontujacym
490. Operator po zauważeniu uszkodzonego przewodu zasilającego żuraw w pierwszej kolejności powinien:
- wyłączyć ręczny łącznik żurawia
- zaizolować uszkodzone miejsce przewodu
- wyłączyć ręczny łącznik zasilania
- odejść od żurawia w celu poinformowania przełożonego
491. Operator podczas obsługi codziennej żurawia stwierdził pęknięcia betonu balastu żurawia. Jak powinien się zachować?
- powinien uznać żuraw za niesprawny i zaprzestać nim pracy
- może kontynuować pracę żurawiem ponieważ beton balastu jest wewnątrz zbrojony więc pęknięcia betonu nie powodują zmniejszenia masy balastu
- powinien poinformować o tym konserwatora urządzenia i odnotować to w dzienniku konserwacji żurawia
- powinien zgłosić ten fakt kierownikowi budowy, a jeśli ten uzna powstałe zmiany za niegroźne, wówczas na jego polecenie obsługujący może kontynuować pracę żurawiem; fakt ten kierownik budowy odnotowuje w dzienniku budowy
492. Operator zauważył deformację liny mechanizmu podnoszenia w kształcie kosza (bardzo duże poluzowanie zewnętrznych splotek). W takiej sytuacji:
- można pracować przy obniżeniu udźwigu do połowy
- można pracować tylko na pisemne polecenie kierownika budowy
- można pracować tylko do końca zmiany
- żadna odpowiedź nie jest prawidłowa
493. Operator żurawia – podczas pracy – wykonuje polecenia:
- hakowego/sygnalisty
- sygnalisty
- kierownika budowy
- swojego przełożonego
494. Operator żurawia powinien zareagować na sygnał „stop” pochodzący od:
- wyłącznie wyznaczonego sygnalisty/hakowego
- wyłącznie kierownika budowy
- wyłącznie inspektora
- każdej sygnalizującej osoby
495. Operator żurawia wieżowego przed skorzystaniem ze specjalnego sprzętu ratowniczego będącego na wyposażeniu żurawia powinien:
- sprawdzić datę dopuszczenia do użytku sprzętu ratowniczego
- zapoznać się z instrukcją obsługi sprzętu ratowniczego
- ocenić stan techniczny sprzętu ratowniczego
- wszystkie odpowiedzi są prawidłowe
496. Operator żurawia wieżowego powinien odmówić wykonania pracy w sytuacji kiedy:
- prędkość wiatru przekracza wartość graniczną wynoszącą 10 m/s
- nie ma odpowiedniej komunikacji z hakowym znajdującym się na poziomie roboczym
- nie zna masy podnoszonego ładunku
- odpowiedzi b i c są prawidłowe
497. Operator żurawia wieżowego pracującego na budowie podczas operacji podnoszenia ładunku współpracuje z:
- zbrojarzem
- murarzem
- hakowym i sygnalistą
- kierownikiem budowy
498. Operator żurawia wieżowego przed rozpoczęciem pracy powinien:
- sprawdzić działanie blokady zerowej z ładunkiem równym udźwigowi nominalnemu
- sprawdzić działanie blokady zerowej bez obciążenia
- sprawdzić działanie łącznika krańcowego mechanizmu podnoszenia w kierunku "góra" z ładunkiem równym udźwigowi nominalnemu
- sprawdzić działanie łącznika krańcowego mechanizmu podnoszenia w kierunku "dół" z ładunkiem równym udźwigowi nominalnemu
499. Operatorowi zabrania się
- kojarzenia ruchów przewidzianych instrukcją eksploatacji
- podnoszenia ładunków o masie równej udźwigowi nominalnemu
- pracy w czasie opadów deszczu
- sprawdzania łączników krańcowych z obciążeniem
500. Osoba bezpośrednio współpracująca z operatorem podczas prac przeładunkowych to:
- hakowy
- kierownik budowy
- sygnalista
- odpowiedź a i c jest prawidłowa
501. Osobą uprawnioną do podania komendy „STOP” podczas pracy żurawiem jest:
- tylko sygnalista
- tylko kierownik projektu
- tylko kierownik budowy
- żadna z odpowiedzi nie jest prawidłowa
502. Pęknięta splotka liny żurawia powoduje, że:
- należy natychmiast przerwać eksploatację żurawia
- można pracować tylko do czasu wymiany liny na nową
- można pracować tylko pod warunkiem, że pozostałe splotki nie zostały uszkodzone
- można pracować pod warunkiem zmniejszenia masy podnoszonych ładunków o połowę
503. Pierwszeństwo pracy w warunkach kolizyjnych dwóch żurawi wieżowych znajdujących się na różnych wysokościach ma:
- żuraw znajdujący się wyżej
- nie jest dopuszczalna taka praca
- żuraw znajdujący się niżej
- decyduje kierownik budowy
504. Po dołożeniu segmentu wysięgnika skutkującej zmianą wysięgu żurawia wieżowego należy:
- zgłosić urządzenie do badania odbiorczego
- zgłosić urządzenie do badania doraźnego eksploatacyjnego
- zgłosić urządzenie do badania doraźnego kontrolnego
- nie ma obowiązku wykonania badania technicznego
505. Po jakiej czynności istnieje konieczność wystąpienia do UDT o ponowne badanie żurawia wieżowego?
- po zmianie miejsca pracy żurawia wieżowego, które wymagało demontażu i ponownego montażu żurawia
- po wymianie liny nośnej wciągarki żurawia wieżowego
- po naprawie łącznika krańcowego jazdy wodzaka żurawia wieżowego
- odpowiedź a i b są prawidłowe
506. Po przekroczeniu resursu mechanizmu zmiany wysięgu:
- należy wykonać przegląd specjalny mechanizmu zmiany wysięgu żurawia
- żuraw może być dalej eksploatowany
- żuraw może być eksploatowany pod nadzorem konserwatora
- żuraw wyłączy samoczynnie mechanizm zmiany wysięgu
507. Po stwierdzeniu których niezgodności operator nie podejmie pracy żurawiem:
- uszkodzony blok betonowy balastu centralnego
- niesprawna sygnalizacja ostrzegawcza ogranicznika udźwigu
- warunki atmosferyczne utrudniające prace żurawiem np. mgła
- wszystkie odpowiedzi są poprawne
508. Po wystąpieniu awarii mechanizmu jazdy wodzaka operator:
- może pracować z zachowaniem szczególnej ostrożności
- powinien opuścić ładunek i wyłączyć żuraw
- powinien natychmiast wyłączyć żuraw niezależnie czy na haku jest ładunek czy nie
- może kontynuować pracę gdyż stan techniczny wodzaka nie ma wpływu na bezpieczeństwo
509. Po zadziałaniu wyłącznika krańcowego podnoszenia haka, zostają wyłączone ruchy:
- opuszczania haka
- podnoszenie haka
- obrotu żurawia
- wszystkie odpowiedzi są prawidłowe
510. Po zakończeniu pracy obowiązkiem operatora jest:
- wcisnąć wyłącznik bezpieczeństwa "STOP„
- podnieść zblocze hakowe na wysokość nie mniejszą niż 5 m ponad najwyższy element kolizyjny
- załączyć pozycję wolnowiatrową (nie dotyczy żurawia z wysięgnikiem w kolizji z przeszkodą)
- zakotwiczyć żuraw
511. Po zakończeniu pracy obowiązkiem operatora jest:
- unieść hak w możliwie jak najwyższe położenie nie najeżdżając na wyłącznik krańcowy mechanizmu podnoszenia
- ustawić hak w pozycji minimalnego wysięgu
- zabezpieczyć kabinę przed dostępem przez osoby nieuprawnione
- wszystkie odpowiedzi są prawidłowe
512. Po zakończeniu pracy operator ma obowiązek
- zluzować hamulec obrotu dla umożliwienia swobodnego ustawienia się żurawia z wiatrem
- załączyć ogrzewanie kabiny
- wyłączyć stycznik główny
- odpowiedzi a i c są prawidłowe
513. Po zakończeniu pracy operator żurawia:
- zostawia zblocze hakowe w dowolnym położeniu
- wiatruje żuraw
- zawsze przyczepia hak do wieży lub ciężkiego elementu celem zabezpieczenia przed obrotem
- nie musi wykonywać żadnych operacji
514. Po zakończeniu pracy żurawia do obowiązków operatora należy:
- wezwanie konserwatora w celu wykonania przeglądu żurawia
- przekazanie informacji o ewentualnych niesprawnościach żurawia
- obciążenie haka ładunkiem ok. 10% udźwigu nominalnego aby nie dochodziło do kołysania zbloczem hakowym
- bezwzględne wyłączene wszystkich odbiorników energii elektrycznej zamontowanych na żurawiu
515. Po zmianie lokalizacji żurawia szybkomontującego:
- zawsze należy zgłosić urządzenie do badania przez organ UDT
- nie trzeba zgłaszać żurawia do badania, można eksploatować żuraw pod warunkiem posiadania ważnej decyzji zezwalającej na eksploatację
- należy telefonicznie powiadomić organ UDT
- odpowiedzi a i c są prawidłowe
516. Po zmianie miejsca pracy żurawia przewoźnego szybkomontującego konieczne jest przeprowadzenie:
- badania doraźnego-eksploatacyjnego
- badania okresowego
- badania odbiorczego
- przeglądu konserwacyjnego
517. Po zmianie wysokości żurawia wieżowego poprzez tzw. „klatkowanie” należy:
- zgłosić urządzenie do badania odbiorczego
- zgłosić urządzenie do badania doraźnego eksploatacyjnego
- zgłosić urządzenie do badania doraźnego kontrolnego
- nie ma obowiązku wykonania badania technicznego
518. Pobieranie ładunków z miejsca poza terenem budowy jest:
- zabronione
- dozwolone
- dozwolone pod warunkiem stosowania się do zapisów instrukcji opisującej taka sytuację
- dozwolone pod warunkiem przenoszenia ładunków o masie 50% udźwigu nominalnego
519. Podczas oceny stanu technicznego konstrukcji żurawia operator sprawdza:
- stan połączeń nierozłącznych
- stan połączeń rozłącznych
- czy na konstrukcji nie występują odkształcenia i inne uszkodzenia mechaniczne
- wszystkie odpowiedzi są prawidłowe
520. Podczas oceny stanu technicznego mechanizmu obrotu żurawia wieżowego operator sprawdza:
- czy wszystkie śruby i nakrętki mocujące posiadają cechę określająca ich gatunek
- czy wszystkie połączenia śrubowe nie wykazują uszkodzeń i odkształceń
- czy moment dokręcenia śrub jest zgodny z instrukcją producenta
- wszystkie odpowiedzi są prawidłowe
521. Podczas oceny stanu technicznego połączeń śrubowych wieży żurawia operator sprawdza:
- wartość momentu dokręconych śrub
- czy zainstalowane śruby i nakrętki są o odpowiedniej klasy wytrzymałości
- kompletność połączeń
- wszystkie odpowiedzi są prawidłowe
522. Podczas oceny stanu technicznego wieży żurawi wieżowych operator:
- sprawdza poprawność montażu wieży na zgodność z dokumentacja pomontażową
- stan połączeń śrubowych poszczególnych sekcji wieży żurawia
- dokonuje pomiaru wysokości wieży
- odpowiedź a i b jest prawidłowa
523. Podczas podnoszenia zblocza operator ustawił dźwignię sterowniczą w pozycję neutralną a mechanizm kontynuuje ruch. W takiej sytuacji:
- należy wcisnąć wyłącznik awaryjny STOP
- należy wstrzymać pracę żurawia, zgłosić ten fakt przełożonemu i zażądać sprawdzenia żurawia przez konserwatora, ponieważ jest to usterka zagrażająca bezpieczeństwu
- żadna odpowiedź nie jest poprawna
- odpowiedzi a i b są poprawne
524. Podczas pracy nagle pojawiły się głośne stuki w mechanizmie podnoszenia. Operator powinien:
- pracować dalej bez zmian jeśli podnoszenie jest możliwe
- wstrzymać pracę, zgłosić usterkę kierownikowi budowy i zażądać sprawdzenia mechanizmu przez konserwatora
- kontynuować pracę, zgłosić usterkę kierownikowi budowy i zażądać sprawdzenia mechanizmu przez konserwatora
- pracować dalej ale ze zmniejszonymi prędkościami, jeśli podnoszenie jest możliwe
525. Podczas pracy po zmierzchu
- oświetlona powinna być cała strefa pracy żurawia
- oświetlone mogą być jedynie miejsca podjęcia i odkładania ładunków
- oświetlone mogą być jedynie drogi komunikacyjne w strefie pracy żurawia
- nie jest wymagane oświelenie jeżeli transport ładunku jest asekurowany przez hakowego przy pomocy liny
526. Podczas pracy w przypadku zaniku napięcia hamulec mechanizmu obrotu żurawia:
- załącza się
- luzuje się
- pozostaje w stanie sprzed zaniku napięcia
- musi się zluzować automatycznie aby żuraw mógł obracać się swobodnie w zależności od kierunku wiatru
527. Podczas pracy w sposób nagły pojawiły się silne drgania w mechanizmie podnoszenia. Operator powinien:
- pracować dalej bez zmian jeśli mechanizmy działają
- kontynuować pracę, zgłosić usterkę kierownikowi budowy i zażądać sprawdzenia mechanizmu przez konserwatora
- wstrzymać pracę, zgłosić usterkę kierownikowi budowy i zażądać sprawdzenia mechanizmu przez konserwatora
- żadna odpowiedź nie jest poprawna
528. Podczas pracy żurawiem zabronione jest:
- podnoszenie ładunków o nieznanej masie
- wszystkie odpowiedzi są prawidłowe
- podnoszenie przymarzniętych i przysypanych ładunków
- podnoszenie ładunków przy ukośnym ułożeniu liny
529. Podczas przemieszczania wodzaka wzdłuż wysięgnika nastąpiło jego nagłe zatrzymanie i widać luzującą się linę. Fakt ten może oznaczać, że:
- przenoszony ciężar jest zbyt duży
- lina mechanizmu wodzenia jest zbyt luźna lub zerwana i zadziałało mechaniczne zabezpieczenie
- hamulec mechanizmu zmiany wysięgu uległ awarii
- halumec mechanizmu podnoszenia uległ awarii
530. Podczas sprawdzania prawidłowości działania łącznika krańcowego mechanizmu jazdy żurawia wieżowego, zderzak:
- powinien uderzyć w odbój umieszczony na końcu torowiska, aby sprawdzić poprawność jego ustawienia
- nie powinien uderzyć w odbój
- może uderzyć w odbój tak, aby nie doszło do całkowitego jego ściśnięcia
- może uderzyć w zderzak jedynie z połową prędkości nominalne
531. Podczas używania sterowania radiowego operator:
- powinien sygnalizować rozpoczęcie ruchu sygnałem dźwiękowym
- powinien znajdować się w niebezpiecznej odległości od ładunku
- może pozostawić ładunek bez nadzoru podczas przemieszczania się z miejsca załadunku do miejsca rozładunku
- wszystkie odpowiedzi są prawidłowe
532. Podczas wiatru o prędkości przekraczającej dopuszczalną przez producenta żurawia obsługujący powinien:
- zaprzestać pracy żurawiem i ustawić go w pozycji wolnowiatrowej
- zaprzestać pracy żurawiem i zablokować hamulce mechanizmu obrotu
- kontynuować pracę pamiętając, aby nie podejmować ładunków o masie większej niż 50% udźwigu nominalnego
- kontynuować pracę informując o powyższym fakcie przełożonego
533. Podczas załadunku/rozładunku samochodu ciężarowego za pomocą żurawia kierowca pojazdu powinien znajdować się:
- w kabinie pojazdu
- na podstawie ładunkowej pojazdu
- poza strefą załadunku/rozładunku
- w kabinie operatora
534. Podnoszenie i przenoszenie ładunków przez dwa lub więcej żurawi jest:
- zabronione
- dozwolone przy udziale dwóch hakowych
- dozwolone pod nadzorem wyznaczonego pracownika służb BHP
- dozwolone po opracowaniu przez eksploatującego szczegółowych warunków eksploatacji
535. Podnoszenie ludzi w koszu za pomocą żurawia wieżowego
- jest zawsze całkowicie zabronione
- jest dozwolone, wystarczy że mamy do dyspozycji całkowicie zamykany kosz
- jest dozwolone po uzgodnieniu, przeprowadzeniu badania UDT i uzyskaniu decyzji na użytkowanie żurawia z koszem do podnoszenia ludzi
- dozwolone bez ograniczeń
536. Podnoszenie ładunków trwale związane z podłożem lub do niego przymarzniętych:
- może spowodować przewrócenie się żurawia w wyniku nagłego uwolnienia podnoszonego ładunku
- jest dozwolone ale tyko to wskazania wartości 100% udźwigu przez ogranicznik obciążenia w kabinie operatora
- jest zawsze dozwolone
- odpowiedzi a i c są prawidłowe
537. Podnoszenie ładunków za pomocą dwóch lub więcej UTB:
- jest dopuszczalne, pod warunkiem opracowania przez eksploatującego szczegółowych warunków eksploatacji, opisujących czynności organizacyjno-techniczne minimalizujące ryzyko
- jest zawsze dopuszczalne jeżeli masa ładunku nie przekracza sumy udźwigów wykorzystywanych urządzeń
- jest dopuszczalne po uzgodnieniu z operatorami dźwignic
- jest zawsze nie dopuszczalne
538. Podnoszenie ładunków związanych z gruntem:
- jest dozwolone po wcześniejszym ustaleniu stopnia zagęszczenia gruntu
- jest dozwolone przy udziale hakowego
- jest dozwolone przy udziale sygnalisty
- jest zabronione
539. Podnoszenie ładunku pomiędzy wznoszonym budynkiem a ogrodzeniem budowy jest dopuszczalne:
- jeśli ogrodzenie ma oznakowanie ostrzegawcze
- jeśli zachowana jest strefa bezpieczeństwa minimum 2 m odległości od ogrodzenia budowy
- jeśli zachowana jest strefa bezpieczeństwa minimum 6 m odległości od ogrodzenia budowy
- żadna odpowiedź nie jest prawidłowa
540. Podnoszenie przymarzniętych ładunków:
- jest dozwolone po wcześniejszym ustaleniu stopnia przemarzania gruntu
- jest dozwolone przy udziale hakowego
- jest dozwolone przy udziale sygnalisty
- jest zabronione
541. Pomiary elektryczne dla żurawi wieżowych wykonywane są:
- zgodnie z rozporządzeniem ministra przedsiębiorczości i technologii z dnia 30 października 2018 r. w sprawie warunków technicznych dozoru technicznego w zakresie eksploatacji, napraw i modernizacji urządzeń transportu bliskiego
- co 5 lat
- tylko wtedy gdy została wymieniona tablica sterowa
- zgodnie z Rozporządzeniem Rady Ministrów z dnia 7 grudnia 2012 r. w sprawie rodzajów urządzeń technicznych podlegających dozorowi technicznemu
542. Poprawnie działający wyłącznik krańcowy mechanizmu podnoszenia haka żurawia wodzakowego w kierunku góra powinien:
- wyłączyć ruchy mechanizmu zmiany wysięgu
- wyłączyć ruch mechanizmu obrotu
- wyłączyć mechanizm podnoszenia w kierunku góra
- odpowiedź a i c jest prawidłowa
543. Poprawnie działający wyłącznik krańcowy mechanizmu podnoszenia haka żurawia z wychylnym wysięgnikiem w kierunku góra powinien:
- wyłączyć mechanizm podnoszenia haka w kierunku góra
- wyłączyć ruch mechanizmu zmiany wysięgu w kierunku zwiększenia wysięgu
- wyłączyć mechanizm podnoszenia wysięgnika
- odpowiedź a i b jest prawidłowa
544. Poprawnie działający wyłącznik krańcowy mechanizmu zmiany wysięgu żurawia wodzakowego powinien:
- wyłączyć mechanizm jazdy wózka przed jego najazdem na konstrukcję żurawia w odległości zgodnej z instrukcją eksploatacji
- wyłączyć mechanizm podnoszenia haka
- wyłączyć mechanizm obrotu żurawia
- wszystkie odpowiedzi są poprawne
545. Poprawnie działający wyłącznik krańcowy mechanizmu zmiany wysięgu żurawia z wychylnym wysięgnikiem w kierunku góra powinien:
- wyłączyć mechanizm podnoszenia haka
- wyłączyć mechanizm opuszczania haka
- wyłączyć mechanizm jazdy wodzaka
- wyłączenie mechanizmu obrotu
546. Powyżej jakiej wysokości powinien być zapewniony dostęp do kabiny żurawia wieżowego za pomocą dźwigu (windy) lub innego urządzenia ułatwiającego dostęp
- 60m
- 70m
- 80m
- 90m
547. Pozostawianie po zakończonej pracy zawieszonych na haku żurawia zawiesi i innego osprzętu:
- jest dopuszczalne
- jest zabronione
- jest dopuszczalne o ile zawiesie lub osprzęt będzie używane podczas pracy następnego dnia
- jest dopuszczalne o ile zawiesie lub osprzęt nie znajdują się w strefie kolizyjnej pracy
548. Pozostawienie ładunku zawieszonego na haku żurawia
- jest dozwolone, bo ładunek nigdy nie spadnie
- jest dozwolone, gdy hakowy wyrazi zgodę i wyznaczy bezpieczną strefę
- jest zabronione
- jest dozwolone pod warunkiem, że masa ładunku nie przekracza 50% udźwigu żurawia
549. Pozycja wolnowiatrowa:
- włącza się automatycznie po uruchomieniu żurawia
- może być uruchomiona wyłącznie przez konserwującego żurawia
- może być uruchamiana wyłącznie podczas silnego wiatru
- pozwala na swobodne ustawienie się żurawia w kierunku wiatru
550. Praca po zmroku możliwa jest w przypadku gdy:
- na budowie występuje oświetlenie umożliwiające pracę i zapewniające pełną widoczność
- praca po zmroku jest zakazana
- gdy do żurawia operator zamontuje dodatkowe oświetlenie
- oświetlone są co najmniej drogi komunikacyjne na budowie
551. Praca w odległości mniejszej niż dopuszczalna od napowietrznej linii energetycznej dozwolona jest po warunkiem:
- uzgodnienia warunków pracy z organami dozoru technicznego
- zachowania szczególnej ostrożności w czasie pracy
- uzyskania zgody właściciela napowietrznej linii energetycznej
- Żadna z powyższych odpowiedzi nie jest prawidłowa
552. Praca w pobliżu napowietrznych linii energetycznych
- może się odbywać bez dodatkowych wymogów formalnych jeżeli charakterystyka prac nie powoduje konieczności zbliżania się do linii (przebiegają one poza ogrodzeniem terenu budowy) a odległość wieży żurawia do najbliższego przewodu linii jest większa niż 30 m
- może się odbywać bez dodatkowych wymogów formalnych jeżeli żuraw wyposażono w system antykolizyjny wykrywający zbliżanie się do linii, odłączający wszystkie ruchy żurawia w kierunku linii
- może odbywać się wyłącznie w oparciu o uzgodnioną z urzędem dozoru technicznego instrukcją i warunkami
- może odbywać się wyłącznie w oparciu o instrukcję sporządzoną przez eksploatującego np. Instrukcję Bezpiecznego Wykonywania Robót (IBWR), stanowiącej załącznik do Planu Bezpieczeństwa i Ochrony Zdrowia (Plan Bioz)
553. Praca z koszem do podnoszenia osób:
- może odbywać się wyłącznie w oparciu o uzgodnioną z urzędem dozoru technicznego instrukcją i warunkami, tylko gdy w instrukcji obsługi żurawia są zapisóy na temat pracy z koszem do podnoszenia osób
- może odbywać się wyłącznie w oparciu o uzgodnioną pomiędzy producentem kosza, przedsiębiorstwem serwisującym żuraw i eksploatującym instrukcją i warunkami
- może odbywać się wyłącznie w oparciu o uzgodnioną z urzędem dozoru technicznego instrukcją i warunkami, nawet jeżeli w instrukcji obsługi żurawia nie ma żadnych zapisów na temat pracy z koszem do podnoszenia osób
- może odbywać się wyłącznie w oparciu o instrukcję sporządzoną przez eksploatującego np. Instrukcję Bezpiecznego Wykonywania Robót (IBWR), stanowiącej załącznik do Planu Bezpieczeństwa i Ochrony Zdrowia (Plan Bioz)
554. Praca z serwisowym obejściem (deblokadą) ogranicznika momentu
- jest dozwolona gdy transportujemy ładunki o znanej masie (np. kręgi betonowe) nieprzekraczającej najmniejszej masy (na końcu wysięgnika) obsługiwanej przez żuraw
- jest zabroniona gdy żuraw jest w trybie pracy (transport ładunków)
- jest dozwolona, ale tylko w celu dotransportowania lub wycofania ładunku w przypadku wykrycia przeciążenia
- jest dozwolona ale tylko na wyraźne polecenie kierownika budowy i wyłącznie w celu dokończenia rozładunku partii dostawy, oraz pod warunkiem pracy na najmniejszych prędkościach ruchów roboczych
555. Praca żurawi w lokalizcji kolizyjnej jest:
- możliwa na podstawie odpowiedniej instrukcji pracy
- zabroniona
- możliwa pod nadzorem wyznaczonego przez służby BHP pracownika
- możliwa jedynie przy bezwietrznej pogodzie
556. Praca żurawia w pobliżu napowietrznej linii elektroenergetycznej o napięciu 110 kV jest:
- dopuszczalna z zachowaniem odlełości nie mniejszej niż 5m
- dopuszczalna z zachowaniem odlełości nie mniejszej niż 10m
- dopuszczalna z zachowaniem odlełości nie mniejszej niż 15m
- dopuszczalna z zachowaniem odlełości nie mniejszej niż 30m
557. Praca żurawia wieżowego jest zabroniona:
- w temperaturach poniżej 0°C
- podczas burzy z występującymi wyładowaniami atmosferycznymi
- przy temperaturach powyżej 30°C
- wszystkie odpowiedzi są poprawne
558. Praca żurawia z koszem do transportu osób:
- jest dozwolona po uzyskaniu pisemnej zgody kierownika budowy
- jest zabroniona w każdym przypadku
- jest dozowolona po uzgodnieniu instrukcji eksploatacji z UDT
- jest dozwolona, chyba że prędkość wiatru przekracza 5m/s
559. Praca żurawiem bez ważnej decyzji zezwalającej na eksploatację jest:
- dopuszczalna za zgodą właściciela
- zabroniona
- dopuszczalna tylko w wyjątkowych sytuacjach
- każdorazowo decyduje operator żurawia
560. Praca żurawiem wieżowym przy zasilaniu z elektrycznego agregatu prądotwórczego:
- jest zabroniona
- jest dozwolona, ale z uwagi za zwiększone zagrożenie porażeniem operator powinien pracować w obuwiu elektroizolacyjnym
- jest dozwolona
- jest dozwolona, ale z uwagi na zmniejszoną moc zasilania udźwig należy zmniejszyć o połowę
561. Prędkość wiatru 18 km/h odpowiada wartości:
- 6 m/s
- 18 m/s
- 5 m/s
- 10 m/s
562. Prędkość wiatru 36 km/h odpowiadawartości:
- 8 m/s
- 10 m/s
- 12 m/s
- 6 m/s
563. Prędkość wiatru 54 km/h odpowiada wartości:
- 5,4 m/s
- 15 m/s
- 10,8 m/s
- 12 m/s
564. Próbę hamulca mechanizmu podnoszenia żurawia wieżowego należy wykonać:
- w dowolnym miejscu wysięgnika zgodnie z diagramem udźwigu
- zgodnie z diagramem udźwigu jak najbliżej wieży żurawia
- z ładunkiem 110% udźwigu
- z maksymalnym ładunkiem jaki znajdziemy w dokumentacji producenta
565. Próbę hamulca układu obrotu wykonujemy:
- bez ładunku z prędkością nominalną
- zgodnie z wytycznymi zawartymi w instrukcji eksploatacji
- na minimalnej wysokości podnoszenia
- wszystkie odpowiedzi są prawidłowe
566. Przeciążanie żurawia w czasie pracy:
- jest zabronione
- jest dopuszczalne
- jest dopuszczalne ale tylko do 125% udźwigu dopuszczalnego
- jest dopuszczalne ale tylko do 110% udźwigu dopuszczalnego
567. Przeciążenie żurawia to:
- przekrocznie dopuszczalnego udźwigu dla danego wysięgu
- przekroczenie dopuszczalnego podmuchu wiatru na żuraw
- podnoszenie ładunku nieprzekraczającego ciężaru nominalnego
- odpowiedz a i b są poprawne
568. Przed rozpoczęciem pracy łączniki krańcowe poszczególnych mechanizmów należy sprawdzić:
- bez obciążenia
- z obciążeniem nominalnym
- sprawdzenie działania łączników krańcowych nie należy do obowiązków operatora żurawia
- z przeciążeniem 110%
569. Przed rozpoczęciem pracy urządzeniem każdorazowo należy przeprowadzić:
- próbę statyczną
- próbę dynamiczną
- czynności związane ze sprawdzeniem układu sterowania
- wpis w dzienniku konserwacji urządzenia
570. Praca żurawia w przypadku braku możliwości obserwacji przez obsługującego całej drogi, jaką pokonuje ładunek jest:
- dopuszczalna po uzgodnieniu z hakowym drogi transportu ładunku
- zabroniona
- dopuszczalna wyłącznie na podstawie instrukcji uzgodnionej we właściwej jednostce dozoru technicznego
- dopuszczalna pod warunkiem opracowania przez eksploatującego szczegółowych warunków eksploatacji, opisujących czynności organizacyjno-techniczne minimalizujące ryzyko
571. Przed rozpoczęciem pracy w warunkach kolizyjnych z innym żurawiem operator ma obowiązek zapoznać się z:
- instrukcją pracy w warunkach kolizyjnych
- instrukcją konserwacji żurawia
- planem BIOZ
- dyrektywą hałasową
572. Przedstawiona tabela opisuje parametry techniczne mechanizmu:
- podnoszenia wysięgnika
- jazdy żurawia
- jazdy wózka wodzaka
- podnoszenia haka
573. Przejazd zbloczem hakowym z ładunkiem poza strefę pracy / teren budowy
- jest możliwy tylko w przypadku prób technicznych na polecenie inspektora udt
- jest zabroniony
- jest możliwy kiedy hak znajduje się w górnym położeniu, a żuraw jest zwiatrowany
- jest możliwy pod nadzorem kierownika budowy
574. Przejazd zbloczem hakowym z ładunkiem poza strefę pracy / teren budowy:
- jest możliwy tylko w przypadku prób technicznych na polecenie inspektora UDT
- jest zabroniony
- jest możliwy kiedy hak znajduje się w górnym położeniu, a żuraw jest zwiatrowany
- jest możliwy pod nadzorem kierownika budowy
575. Przenoszenie ładunków nie jest zabronione nad:
- pomieszczeniami biurowymi
- zbrojownią
- obiektem wznoszonym
- wszystkie odpowiedzi są poprawne
576. Przenoszenie ładunków za pomocą żurawia jest dozwolone:
- nad pomieszczeniami biurowymi na terenie budowy
- nad pracownikami budowy o ile współczynnik bezpieczeństwa liny jest większy niż 8
- poza terenem budowy jeżeli istnieje taka potrzeba
- wszystkie odpowiedzi są niepoprawne
577. Przy próbie podniesienia wiązki stali o masie zbliżonej do udźwigu nominalnego okazało się, że hamulec mechanizmu podnoszenia nie jest w stanie utrzymać tak dużego ładunku. W tej sytuacji operator powinien:
- podnosić tylko ładunki o masie nie większej niż połowa udźwigu
- niezwłocznie wyregulować hamulec
- wstrzymać pracę i zażądać wyregulowania hamulca przez konserwatora
- kontynuować pracę i zażądać wyregulowania hamulca przez konserwatora
578. Przy temperaturach ujemnych, podczas uruchamiania żurawia dla mechanizmu podnoszenia pierwszy ruch wykonujemy:
- hak w kierunku dół
- hak w kierunku góra
- hak w dowolnym kierunku
- odpowiedzi a i c są prawidłowe
579. Przytrzymywanie ładunku przez hakowego podczas jego przenoszenia:
- jest dopuszczalne
- jest niedopuszczalne
- jest dopuszczalne jeżeli ładunek lub zawiesie jest wyposażone w przeznaczone do tego uchwyty
- jest dopuszczalne ale wyłącznie z zastosowaniem środków umożliwiających nadanie ładunkowi właściwego kierunku
580. Rozpoczęcie ruchu podnoszenia
- należy wykonywać z dużą prędkością aby zapewnić sprawne wykonanie pracy
- należy wykonywać z minimalną prędkością aż do oderwania się ładunku od podłoża dla uniknięcia nadmiernych obciążeń konstrukcji
- należy wykonywać z minimalną prędkością aż do osiągnięcia wysokości 2 m dla uniknięcia nadmiernych obciążeń konstrukcji
- nożna wykonywać z dowolną prędkością
581. Skrót DOR oznacza:
- Dedykowany Osprzęt Roboczy
- Dopuszczalny Obrót Ramienia
- Dopuszczalne Obciążenie Robocze
- Dokumentacja Organizacyjna Robót
582. Sprawdzenie blokady zerowej układu sterowania polega na:
- wyłączenie stycznika liniowego, przestawienie dźwigni mechanizmu podnoszenia w kierunku góra na wszystkich biegach i wykonywaniu prób załączenia stycznika
- ustawieniu wszystkich mechanizmów poza strefami krańcowymi, wyłączenie stycznika liniowego, przestawienie dźwigni po kolei wszystkich mechanizmów na wszystkich biegach i wykonywaniu prób załączenia stycznika
- wyłączenie stycznika liniowego, przestawienie dźwigni mechanizmu obrotu w kierunku w prawo i wykonywaniu prób załączenia stycznika
- wyłączenie stycznika liniowego, przestawienie dźwigni mechanizmu jazdy w kierunku w prawo i wykonywaniu prób załączenia stycznika
583. Sprawne dźwignie sterujące:
- po zwolnieniu nacisku powinny wracać do pozycji neutralnych samoczynnie
- mogą nie mieć oznaczeń gdy operator wie do czego służą
- powinny mieć wyczuwalne pozycje położenia
- odpowiedź a i c jest prawidłowa
584. System antykolizyjny, to układ:
- zderzaków żurawi
- ogrodzeń stref niebezpiecznych
- elektroniczny sprawdzający stan żurawia po kolizji
- układ zapobiegający kolizji
585. Transport ładunków o masie przekraczającej dopuszczalny udźwig żurawia jest:
- dopuszczalny tylko w kierunku wieży żurawia
- dopuszczalny tylko do 125% udźwigu
- zabroniony bezpośrednio nad ludźmi
- zabroniony
586. Transport ładunku nad ludźmi jest:
- dozwolony z zachowaniem szczególnej ostrożności
- dozwolony stosując instrukcję obostrzonych warunków pracy
- zabroniony pod nieobecność hakowego lub sygnalisty
- zawsze zabroniony
587. Transportowanie ludzi na ładunku jest:
- zabronione
- jest dozwolone za zgodą kierownika budowy
- dozwolone pod nadzorem wyznaczonego pracownika służb BHP
- dozwolone po opracowaniu przez eksploatującego szczegółowych warunków eksploatacji
588. Udźwig maksymalny żurawia to parametr urządzenia bezpośrednio związany z:
- maksymalnym wysięgiem żurawia
- maksymalną objętością podnoszonego ładunku
- minimalnym wysięgiem żurawia
- iloczynem masy i objętości podnoszonego ładunku
589. Usterka zagrażająca bezpieczeństwu, przy której nie wolno pracować żurawiem to:
- nieskuteczność hamulca mechanizmu podnoszenia
- nieskuteczność hamulca mechanizmu wodzenia
- brak sygnału dźwiękowego
- wszystkie odpowiedzi są prawidłowe
590. W czasie wykonywania robót budowlanych z zastosowaniem żurawia należy zachować minimalna odległość od najdalej wysuniętego punktu urządzenia wraz z ładunkiem:
- 30m od napowietrznej linii energetycznej o napięciu powyżej 110kV
- 5m od przewodu sieci trakcyjnej linii kolejowej pkp o napięciu 3000V prądu stałego
- 3m od przewodu sieci trakcyjnej linii tramwajowej o napięciu 660V prądu stałego
- wszystkie odpowiedzi są poprawne
591. W jaki sposób sworzeń może być zabezpieczany przed wypadnięciem:
- za pomocą zawleczek, nakrętek, kołków lub pierścieni
- nie wymaga zabezpieczenia
- za pomocą połączenia zgrzewanego
- za pomocą połączenia nitowanego
592. W jaki sposób wzrost liczby pasm liny wpływa na charakterystykę pracy żurawia?
- redukuje udźwig żurawia i równocześnie redukuje prędkość przemieszczanego zblocza
- zwiększa udźwig żurawia i równocześnie redukuje prędkość przemieszczanego zblocza
- redukuje udźwig żurawia i równocześnie zwiększa prędkość przemieszczanego zblocza
- zwiększa udźwig żurawia i równocześnie zwiększa prędkość przemieszczanego zblocza
593. W jakich przypadkach wymaga się kotwienia żurawia po zakończeniu pracy:
- zawsze po zakończeniu pracy
- kolizji wysięgnika żurawia z przeszkodą
- obrotu wysięgnika nad linię energetyczną
- odpowiedź b i c jest prawidłowa
594. W któym położeniu należy zostawić zblocze po zakończeniu pracy w czasie zimy?
- na górnym łączniku krańcowym mechanizmu podnoszenia oraz na łączniku krańcowym wysięgnika od siebie
- pół metra od górnego łącznika krańcowego mechanizmu podnoszenia i łącznika krańcowego początku wysięgnika lub tak jak mówi instrukcja eksploatacji
- na dolnym łączniku krańcowym mechanizmu podnoszenia w połowie wysięgnika, hak zaczepiony do nominalnego ładunku na podłożu
- w dowolnym miejscu, pod warunkiem umieszczenia na haku białej flagi ostrzegawczej
595. W oparciu o przedstawioną tabelę wskaż maksymalna prędkość mechanizmu podnoszenia haka:
- 10,6 m/min
- 35,0 m/min
- 70,0 m/min
- 17,5 m/min
596. W oparciu o przedstawioną tabelę wskaż maksymalna prędkość mechanizmu podnoszenia haka:
- 35 m/min
- 16 m/min
- 31 m/min
- 65 m/min
597. W oparciu o przedstawioną tabelę wskaż w jakiej konfiguracji pracy żurawia prędkość mechanizmu podnoszenia haka jest największa:
- zblocze z czterokrotnym opasaniem
- średnica bębna linowego 240 mm
- masa podnoszonego ładunku 1 t
- wszystkie odpowiedzi są niepoprawne
598. W oparciu o przedstawioną tabelę wskaż w jakiej konfiguracji pracy żurawia prędkość mechanizmu podnoszenia haka jest największa:
- zblocze z podwójnym opasaniem
- praca w każdej wersji montażowej wysięgnika
- masa podnoszonego ładunku 1,5 t
- wszystkie odpowiedzi są poprawne
599. W oparciu o przedstawiony diagram określ na jakim wysięgu ogranicznik obciążenia żurawia o długości wysięgnika 50 m. z ładunkiem 5570 kg. wyłączy tzw. ruchy niebezpieczne:
- 15 m
- 17 m
- 23 m
- 27 m
600. W oparciu o przedstawiony diagram określ na jakim wysięgu zadziała ogranicznik obciążenia żurawia o długości wysięgnika 50 m. z ładunkiem 4630 kg wyłączy tzw. ruchy niebezpieczne:
- 32 m
- 27 m
- 20 m
- 11 m
601. W oparciu o przedstawiony rysunek określ jaka jest maksymalna prędkość nieobciążonego mechanizmu podnoszenia przy poczwórnym olinowaniu
- 30 m/min
- 15 m/min
- 3 m/min
- 6 m/min
602. W oparciu o przedstawiony rysunek określ jaka jest maksymalna prędkość nieobciążonego mechanizmu podnoszenia przy podwójnym olinowaniu
- 30 m/min
- 15 m/min
- 20/40 m
- 60 m/min
603. W oparciu o przedstawiony rysunek wskaż, w którym sposobie przelinowania prędkość podnoszenia jest najmniejsza:
- Rys 1
- Rys 2
- Rys 3
- Rys 4
604. W oparciu o przedstawiony rysunek wskaż, w którym sposobie przelinowania wartość udźwigu jest najmniejsza:
- Rys 1
- Rys 2
- Rys 3
- Rys 4
605. W przypadku awarii hamulca mechanizmu podnoszenia i niekontrolowanego opadania ładunku, operator powinien :
- załączyć mechanizm podnoszenia w kierunku góra oraz włączyć sygnalizator dźwiękowy ostrzegający przed niebezpieczeństwem
- wcisnąć wyłącznik STOP
- załączyć mechanizm podnoszenia w kierunku dół oraz włączyć sygnalizator dźwiękowy ostrzegający przed niebezpieczeństwem
- uruchomić blokadę zerową
606. W przypadku braku wytycznych producenta dotyczących przygotowania podłoża pod żuraw szybkomontujący powinno się zwrócić uwagę na:
- możliwość zapadnięcia się stopy żurawia ( podłoże powinno być utwardzone zapewniające jego stateczność)
- uwzględnić możliwość przesuwania się żurawia i zastosować podłoże lub podkłady antypoślizgowe
- żuraw jest przystosowany do pracy w każdym terenie
- odpowiedzi a i b są prawidłowe
607. W przypadku niezapewnienia przez budowę środków bezpieczeństwa wymienionych w instrukcji pracy w warunkach kolizyjnej lokalizacji (np.: lin asekuracyjnych, radiotelefonów) operator żurawia powinien:
- odmówić pracy żurawiem
- pracować dalej gdyż ten dokument go nie dotyczy – jest to sprawa inspektora BHP
- pracować dalej gdy uzna że nie zagraża to bezpieczeństwu
- pracować dalej i powiadomić BHP lub kierownika budowy
608. W przypadku opadania ładunku na skutek nagłej usterki hamulca mechanizmu podnoszenia należy:
- uruchomić mechanizm podnoszenia do góry
- wcisnąć wyłącznik awaryjny STOP
- uruchomić mechanizm podnoszenia w dół
- żadna z odpowiedzi nie jest prawidłowa
609. W przypadku pracy kolizyjnej dwóch żurawi na placu budowy pierwszeństwo pracy ma:
- zawsze żuraw wyższy
- żuraw wskazany w protokole przez inspektora udt
- żuraw wskazany w instrukcji bezpiecznej pracy
- zawsze żuraw niższy
610. W przypadku pracy kolizyjnej dwóch żurawi na placu budowy pierwszeństwo pracy ma:
- zawsze żuraw wyższy
- żuraw wskazany w protokole przez inspektora UDT
- żuraw wskazany w instrukcji bezpiecznej pracy
- zawsze żuraw niższy
611. W przypadku rozbujania ładunku operator powinien:
- nacisnąć wyłącznik STOP
- poprosić hakowego o złapanie ładunku
- zaprzestać pracy urządzeniem
- wykonywać ruchy zmierzające do wygaszenia wahań ładunku
612. W przypadku stwierdzenia nadmiernej ilości pękniętych drutów w linie operator:
- może kontynuować pracę pod warunkiem zmniejszenia ciężaru podnoszonych ładunków
- przerywa pracę żurawia
- powiadamia przełożonego o stwierdzonej niezgodności
- odpowiedź b i c jest prawidłowa
613. W przypadku stwierdzenia ubytków gruntu w wyniku opadów deszczu pod jednym z punktów podparcia podstawy krzyżowej żurawia wieżowego, operator powinien:
- nie podejmować żadnych działań ponieważ żuraw w dalszym ciągu jest podparty na trzech punktach zapewniających mu stateczność i kontynuować pracę
- niezwłocznie przerwać pracę i zgłośnić zaistniałą sytuację eksploatującemu i kierownikowi budowy
- uzupełnić ubytki dostępnym tłuczniem i kontynuować pracę
- kontynuować pracę kierując wysięgnik w przeciwnym kierunku względem podmytego punktu podparcia
614. W przypadku stwierdzenia uszkodzenia fragmentu instalacji odgromowej żurawia, operator zobowiązany jest do:
- wstrzymania pracy żurawia
- powiadomienia pracodawcy o uszkodzeniu ww. elementu
- powiadomienia kierownika budowy o wstrzymaniu pracy żurawia
- wszystkie odpowiedzi są poprawne
615. W przypadku stwierdzenia wycieku z siłownika służącego do rozkładania wieży żurawia szybkomontującego hydraulicznego, obsługujący:
- zaprzestaje pracy ponieważ żuraw jest niesprawny
- zgłasza ten fakt konserwatorowi i kontynuuje pracę żurawiem ale tylko do końca rozpoczętej zmiany
- kontynuuje pracę żurawiem ponieważ wyciek z siłownika służącego do podnoszenia wieży nie wpływa na bezpieczeństwo pracy już rozstawionego żurawia
- kontynuuje pracę zwracając uwagę czy wyciek nie spowoduje zagrożenia
616. W przypadku unieruchomienia (awarii) urządzenia z podniesionym ładunkiem należy:
- bezzwłocznie opuścić kabinę operatora celem poinformowania przełożonego
- podjąć działania zmierzające do zabezpieczenia urządzenia oraz ładunku z uwzględnieniem strefy zagrożenia w obrysie pod ładunkiem
- samodzielnie ustalić przyczynę awarii i dokonać naprawy
- poinformować organ dozoru technicznego
617. W przypadku utraty możliwości komunikacji operatora z hakowym operator powinien:
- bezzwłocznie przerwać pracę
- natychmiast opuścić ładunek
- nie podejmować dalszych czynności do momentu nawiązania komunikacji z hakowym
- odpowiedzi a i c są prawidłowe
618. W przypadku uzgodnionego z właściwą jednostką dozoru technicznego przemieszczania pojemnika na beton z podestem dla operatora, całkowita masa podnoszonego ładunku (z uwzględnieniem osób) nie powinna przekraczać:
- 1/2 udźwigu żurawia przy planowanych warunkach pracy
- 1/3 udźwigu żurawia przy planowanych warunkach pracy
- 2/3 udźwigu żurawia przy planowanych warunkach pracy
- udźwigu nominalnego żurawia
619. W przypadku uzgodnionego z właściwą jednostką dozoru technicznego stosowania koszy do przemieszczania osób, całkowita masa podnoszonego ładunku (z uwzględnieniem osób i wyposażenia) nie powinna przekraczać:
- 1/4 udźwigu żurawia przy planowanych warunkach pracy
- 1/2 udźwigu żurawia przy planowanych warunkach pracy
- 1/3 udźwigu żurawia przy planowanych warunkach pracy
- udźwigu nominalnego żurawia
620. W przypadku uzgodnionego z właściwą jednostką dozoru technicznego stosowania koszy do przemieszczania osób, jaka jest dopuszczalna prędkość wiatru w trakcie eksploatacji kosza:
- 7 m/s (25km/h)
- 10 m/s (36 km/h)
- 12 m/s (43 km/h)
- 15 m/s (54 km/h)
621. W przypadku wystąpienia opadów atmosferycznych uniemożliwiających bezpieczne transportowanie ładunku operator powinien:
- bezzwłocznie przerwać pracę
- zabezpieczyć żuraw zgodnie z instrukcją obsługi
- nie podejmować dalszych czynności do momentu poprawy widoczności
- wszystkie odpowiedzi są prawidłowe
622. W przypadku wystąpienia podmuchów wiatru uniemożliwiających bezpieczne transportowanie ładunku operator powinien:
- bezzwłocznie przerwać pracę
- zabezpieczyć żuraw zgodnie z instrukcją obsługi
- nie podejmować dalszych czynności do czasu poprawy warunków
- wszystkie odpowiedzi są prawidłowe
623. W przypadku wystąpienia ruchu wahadłowego ładunku podczepionego do żurawia wieżowego z wodzakiem należy:
- opuścić ładunek na ziemię
- wykonać ruch mechanizmem zgodny z kierunkiem przemieszczania ładunku w celu zmniejszenia amplitudy wahań
- wykonać ruch mechanizmem podnoszenia w kierunku „góra" w celu zmniejszenia amplitudy wahań
- w każdym przypadku należy poczekać do momentu wygaszenia wahań ładunku
624. W przypadku wystąpienia wyładowań atmosferycznych uniemożliwiających bezpieczne transportowanie ładunku operator powinien:
- wykonywać jedynie pilne prace transportowe
- zabezpieczyć żuraw zgodnie z instrukcją obsługi
- nie podejmować dalszych czynności do momentu poprawy warunków
- odpowiedzi b i c są prawidłowe
625. W przypadku zauważenia pęknięcia konstrukcji stalowej żurawia operator powinien:
- wstrzymać pracę, zawiadomić przełożonego oraz Państwową Inspekcję Pracy
- wstrzymać pracę, zawiadomić przełożonego i zażądać sprawdzenia stanu żurawia przez konserwatora
- pracować dalej z minimalnymi prędkościami ruchów roboczych
- wstrzymać pracę, zawiadomić przełożonego i zażądać zaspawania pęknięcia
626. W przypadku zmiany długości wysięgnika żurawia wieżowego:
- badanie UDT nie jest konieczne
- można eksploatować żuraw dopiero po badaniu UDT i uzyskaniu decyzji zezwalającej na eksploatację
- dotychczasowa decyzja traci ważność
- operator powinien udokumentować w dzienniku konserwacji
627. W przypadku zwiększonego poślizgu hamulca w mechaniźmie podnoszenia operator powinien:
- zaprzestać pracy żurawiem
- skorygować szczelinę między tarczą o okładziną cierną
- pracować z zmniejszonym o 50% udźwigiem
- żadna odpowiedź nie jest prawidłowa
628. W ramach oceny poprawności posadowienia żurawia operator sprawdza:
- twardość podłoża
- rodzaj i typ krzyżaka (na zgodność z protokołem pomontażowym)
- czy nie nastąpiły zmiany w miejscu posadowieniu żurawia spowodowane zmiennymi czynnikami atmosferycznymi
- odpowiedź b i c jest prawidłowa
629. W ramach oceny poprawności zabalastowania operator żurawia sprawdza:
- masę balastów, (na zgodność z protokołem pomontażowym)
- poprawność ułożenia i zabezpieczenia balastu
- stan balastu pod kątem pęknięć i uszkodzeń
- wszystkie odpowiedzi są poprawne
630. W ramach oceny stanu technicznego kasety sterującej żurawia operator powinien sprawdzić:
- czy wszystkie przyciski sterujące ruchami żurawia są koloru białego
- czy wszystkie przyciski sterujące ruchami żurawia po ustaniu na nich nacisku powracają do położenia wyjściowego
- czy wszystkie przyciski sterujące samopowrotne wystają ponad obudowę kasety
- wszystkie odpowiedzi są poprawne
631. W ramach oceny stanu technicznego pulpitu sterującego żurawia operator powinien sprawdzić:
- maksymalną wartość wychylenia dźwigni sterujących
- poprawność oznaczeń elementów pulpitu sterującego
- wartość nastaw przełączników czasowych załączające poszczególne biegi
- wszystkie odpowiedzi są poprawne
632. W sytuacji gdy podnoszony ładunek jest lekko przymarznięty do podłoża, operator żurawia :
- lekko szarpiąc próbuje podnieś ładunek, aż odczepi się od podłoża
- na najwyższej prędkości podnoszenia, podnosi ładunek
- ruchami na boki wysięgnika żurawia powoduje jego oderwanie od podłoża
- odmawia podnoszenia ładunku przymarzniętego do podłoża
633. W sytuacji, gdy ruchy żurawia będą odwrotne w stosunku do oznaczeń dźwigni sterowniczych, operator:
- może kontynuować pracę zapamiętując kierunki sterowania jednak nie dłużej niż do końca zmiany
- powinien odmówić pracy, do czasu gdy konserwator żurawia doprowadzi do zgodności ruchów z oznaczeniami dźwigni
- powinien zamienić kolejność faz zasilających
- dokonać zmian w oznaczeniu pulpitu sterującego
634. W warunkach eksploatacyjnych obciążenie podłoża, na którym jest ustawiony żuraw, zależy od:
- masy własnej żurawia, masy balastu , średnicy liny, długości wysięgnika
- masy własnej żurawia, masy balastu, masy ładunku, sił dynamicznych wywołanych ruchem żurawia i podnoszonego ładunku
- zależy od gęstości gruntu/podłoża
- masy własnej żurawia, obciążenia wiatrem podczas pracy, wielkością zblocza hakowego
635. Wahaniom dużych gabarytowo ładunków należy zapobiegać poprzez:
- stosowanie lin asekuracyjnych przymocowanych do ładunku
- bezpośrednie trzymanie ładunku przez kliku ludzi
- transportowanie ładunku w bezpośrednim kontakcie z elementami otoczenia
- wykorzystanie maszyn pracujących na budowie
636. Wielkości bezpiecznych odległości pracy żurawi od linii elektroenergetycznych podawane w przepisach krajowych zależą od:
- napięcia linii
- natężenia linii
- mocy linii
- rezystancji przewodów linii
637. Wodzak podczas dojazdu do wieży lub do końca wysięgnika:
- może uderzyć w odbój przy niewielkiej prędkości
- powinien się zatrzymać w odległości od odboju zgodnie z instrukcją eksploatacji
- powinien uderzyć w odbój, jeśli nie jest obciążony
- wszystkie odpowiedzi są prawidłowe
638. Wpisy w dzienniku konserwacji żurawia wykonuje:
- inspektor udt po przeprowadzeniu badania okresowego
- konserwator tylko po wykonaniu przeglądu żurawia
- obsługujący po wykonaniu oględzin żurawia
- Konserwator po wykonaniu jakiejkolwiek czynności na żurawiu
639. Wskaż prawidłowy opis poniższego rysunku
- 1 - obrót w prawo, 2 - obrót w lewo, 3 - powoli, 4 - szybko, 5 - tuż nad ziemią, 6 - stop
- 1 - obrót w lewo, 2 - obrót w prawo, 3 - tuż nad ziemią, 4 - szybko, 5 - w prawo, 6 - stop
- 1 - podnosić, 2 - obracać, 3 - w prawo, 4 - szybko, 5 - tuż nad ziemią, 6 - stop
- 1 - do góry, 2 - w dół, 3 - powoli, 4 - odjechać, 5 - stop, 6 - STOP "niebezpieczeństwo"
640. Wyłącznik bezpieczeństwa „STOP” służy do:
- nagłego bezpiecznego zatrzymania pracy żurawia
- normalnego zatrzymania pracy silnika
- zabezpiecza przed uruchomieniem żurawia przez osoby nieuprawnione
- wszystkie odpowiedzi są niepoprawne
641. Wyrywanie elementów z ziemi za pomocą żurawia wieżowego jest:
- dozwolone
- dozwolone tylko za pomocą specjalnych zawiesi chwytnych
- dozwolone za zgodą geologa znającego głębokość kotwienia wyrywanego przedmiotu
- zabronione
642. Z jaką dokumentacją powinien zapoznać się operator pod kątem możliwości eksploatacji żurawia
- ważną decyzją UDT
- instrukcją eksploatacji żurawia
- instrukcją bhp obowiązującą na placu budowy
- wszystkie odpowiedzi są prawidłowe
643. Z przedstawionej poniżej tabeli wynika, że:
- prędkość pracy mechanizmu podnoszenia haka jest stała
- prędkość pracy mechanizmu podnoszenia haka zależy wyłącznie od wagi ładunku zawieszonego na haku
- mechanizm podnoszenia haka jest czterobiegowy
- długość liny mechanizmu podnoszenia wynosi więcej niż 440m
644. Za prawidłowy sposób podhaczenia ładunku odpowiada:
- operator żurawia
- hakowy
- sygnalista
- kierownik budowy
645. Zabezpieczenie gardzieli haka:
- stosuje się z zależności od potrzeb
- jest to podstawowe zabezpieczenie przed samoczynnym wypięciem zawiesia
- jest to podstawowe zabezpieczenie przed nadmiernym rozgięciem haka
- jest to podstawowe zabezpieczenie przed nadmiernym wytarciem części chwytnej haka
646. Zabezpieczeniem nakrętki haka przed odkręceniem może być:
- kołek rozprężny
- spoina pachwinowa
- spoina czołowa
- nakrętka haka nie wymaga zabezpieczenia
647. Zadziałanie łącznika krańcowego mechanizmu podnoszenia w kierunku góra podczas podnoszenia obciążenia oznacza:
- osiągnięcie najwyższej możliwej pozycji zblocza hakowego
- przekroczenie dopuszczalnego udźwigu żurawia
- nie umożliwia zadziałania mechanizmem podnoszenia w kierunku przeciwnym
- odpowiedzi a i c są prawidłowe
648. Zadziałanie ogranicznika momentu w żurawiu wodzakowym powinno spowodować:
- wyłączenie wszystkich ruchów roboczych
- wyłączenie ruchu wodzaka w kierunku zwiększania wysięgu
- wyłączenie ruchu wodzaka w kierunku zmniejszania wysięgu
- wyłączenie ruchu opuszczania haka
649. Zadziałanie wyłącznika krańcowego w kierunku góra w mechanizmie podnoszenia żurawia oznacza:
- koniec liny na bębnie wciągarki
- maksymalną ilość warstw liny na bębnie wciągarki
- osiągnięcie przez zblocze hakowe skrajnego górnego położenia
- brak możliwości opuszczenia ładunku
650. Zakładając, że udźwig żurawia wynosi 8 ton, a próg zadziałania ogranicznika udźwigu stanowi 110% udźwigu nominalnego to przy jakiej masie ładunku nastąpi zadziałanie ogranicznika udźwigu?
- 8 t
- 7,2 t
- 8,8 t
- 8,1 t
651. Zakres obsługi codziennej żurawia przed rozpoczęciem pracy jest określony przez:
- kierownika budowy
- inspektora UDT
- producenta żurawia
- eksploatującego
652. Zapewnienie właściwej obsługi i konserwacji żurawia jest obowiązkiem:
- kierownika budowy, na której pracuje żuraw
- inspektora nadzoru budowy, na której pracuje żuraw
- obsługującego żuraw
- eksploatującego żuraw
653. Zaznacz właściwe znaczenie przedstawionego sygnału pokazywanego przez sygnalistę:
- start – uwaga początek kierowania
- zatrzymać, przerwa – koniec ruchu
- podnieść do góry
- ruch w prawo od sygnalisty
654. Zaznacz właściwe znaczenie przedstawionego sygnału pokazywanego przez sygnalistę:
- stop – zatrzymanie w nagłym przypadku
- podnieść do góry
- zatrzymać, przerwa – koniec ruchu
- start – uwaga początek kierowania
655. Zmiana liczby pasm olinowania zblocza hakowego żurawia wieżowego z 2 pasm na 4 pasma liny spowoduje:
- zwiększenie maksymalnej prędkości podnoszenia
- zmniejszenie maksymalnej prędkości podnoszenia
- nie spowoduje zmiany maksymalnej prędkości podnoszenia
- zmniejszy udźwig nominalny
656. Zmiana liczby pasm olinowania zblocza hakowego żurawia wieżowego z 2 pasm na 4 pasma liny spowoduje:
- zwiększenie maksymalnego udźwigu roboczego
- zmniejszenie maksymalnego udźwigu roboczego
- nie spowoduje zmiany udźwigu roboczego
- zwiększenie maksymalnej prędkości podnoszenia
657. Zmiana układu linowego z 2 na 4 pasma liny powoduje
- wyłącznie zwiększenie udźwigu
- zmniejszenie udźwigu
- nie powoduje zmian parametrów urządzenia
- zwiększenie udźwigu z jednoczesnym zmniejszeniem prędkości podnoszenia/opuszczania zblocza
658. Zmiana wysięgu żurawi wieżowych może być realizowana przez:
- mechanizm obrotu żurawia
- mechanizm zmiany kąta położenia wysięgnika
- mechanizm jazdy żurawia
- mechanizm podnoszenia haka
659. Zmiana wysięgu żurawia wieżowego wypadowego górnoobrotowego odbywa się poprzez:
- wychylanie się wysięgnika
- jazdę wodzaka
- jazdę żurawia
- zmianę olinowania
660. Zmniejszenie dodatkowych sił bezwładności wpływających na stateczność żurawia można uzyskać poprzez:
- ukośne ściąganie podnoszonych ładunków
- wprowadzenie wiszącego na haku ładunków ruch wahadłowy
- stopniowy, łagodny, płynny sposób włączania poszczególnych ruchów roboczych żurawia
- podnoszenie ładunków przy zmniejszonej ilości lin nośnych mechanizmu podnoszenia
661. Żuraw wieżowy szybkomontujący po zmianie lokalizacji wymaga:
- badania UDT
- odpowiedniego wpisu konserwatora w dzienniku konserwacji dopuszczającego do pracy w danej lokalizacji
- pozwolenia bhp i kierownika budowy na pracę
- odpowiedzi A i B są prawidłowe
662. Żurawie wyposażone w więcej niż jedno stanowisko sterowania powinny:
- umożliwić równoczesną pracę tylko z dwóch stanowisk
- posiadać odpowiednie środki, które uniemożliwią równoczesne sterowanie z dwóch stanowisk
- umożliwiać równoczesne sterowanie z kabiny i zdalnie
- umożliwiać równoczesne sterowanie ze wszystkich stanowisk
663. W oparciu o przedstawiony diagram udźwigu wskaż maksymalną masę ładunku jaką można podać na odległość 23 m przy długości wysięgnika 40 m:
- 4,76 t
- 5,57 t
- 5,72 t
- 5,88 t
664. W oparciu o przedstawiony diagram udźwigu wskaż maksymalny wysięg żurawia z ładunkiem o masie 6910 kg przy długości wysięgnika 50 m:
- 19 m
- 23 m
- 27 m
- 15 m
665. Dla czteropasmowego olinowania zblocza hakowego i długości wysięgnika 50m odległość na którą można oddalić od wieży ładunek o masie 16t wynosi:
- 20,0 m
- 21,5 m
- 25,0 m
- 16,0 t można podnieść tylko gdy wodzak jest w pozycji najbliżej wieży
666. Do jakiej wartości wysięgu [m] żuraw w konfiguracji wysięgnika 60 m i z olinowaniem czteropasmowym posiada udźwig nominalny 10t?
- 9,21
- 20
- 3,40
- 23,27
667. Jaki jest udźwig [kg] żurawia na wysięgu 30 m dla dla żurawia o maksymalnej długości wysięgnika 60,05 m?
- 11000
- 3500
- 10400
- 12000
668. Jaki jest udźwig [t] żurawia na wysięgu 30 m dla żurawia o udźwigu maksymalnym 10 t i długości wysięgnika 55 m?
- 4,10
- 9,85
- 7,99
- 24,68
669. Jakie są przewidziane przez producenta konfiguracje długości wysięgnika tego żurawia?
- 28,30 m / 32,80 m / 34,80 m
- 40,64 m / 50,50 m / 60,05 m
- 40 m / 50 m /60 m
- 10400 m / 7000 m / 3500 m
670. Jeżeli wizualizacja stanu ogranicznika obciążenia realizowana jest kontrolkami i sygnałem akustycznym to:
- przeciążenie sygnalizowane jest w zakresie 90 - 95% udźwigu kontrolką żółtą i przerywanym sygnałem akustycznym
- przeciążenie sygnalizowane jest w zakresie powyżej 100% udźwigu kontrolką czerwoną i ciągłym sygnałem akustycznym
- przeciążenie sygnalizowane jest w zakresie powyżej 100% udźwigu kontrolką żółtą i przerywanym sygnałem akustycznym
- przeciążenie sygnalizowane jest w zakresie 90 - 95% udźwigu kontrolką czerwoną i ciągłym sygnałem akustycznym
671. Jeżeli wizualizacja stanu ogranicznika obciążenia realizowana jest kontrolkami i sygnałem akustycznym to:
- ostrzeżenie przeciążenia sygnalizowane jest w zakresie 90 - 95% udźwigu kontrolką żółtą i przerywanym sygnałem akustycznym
- ostrzeżenie przeciążenia sygnalizowane jest w zakresie powyżej 95 - 100% udźwigu kontrolką czerwoną i ciągłym sygnałem akustycznym
- ostrzeżenie przeciążenia sygnalizowane jest w zakresie powyżej 95 - 100% udźwigu kontrolką żółtą i przerywanym sygnałem akustycznym
- ostrzeżenie przeciążenia sygnalizowane jest w zakresie 90 - 95% udźwigu kontrolką czerwoną i ciągłym sygnałem akustycznym
672. Na podstawie poniższego diagramu udźwigu podaj długość wysięgnika i maksymalny ładunek jaki można podnieść na jego końcu żurawiem w wersji z wysięgnikiem zmontowanym z czterech wstawek:
- długość 45,0 m - udźwig 1,4 t
- długość 40,0m - udźwig 1,8 t
- długość 35,0m - udźwig 2,4 t
- długość 30,0m -udźwig 2,9 t
673. Na podstawie poniższego diagramu udźwigu wskaż jaki ciężar może podnieść żuraw w wersji z 65 metrowym wysięgnikiem na wysięgu 52 metrów z podwójnym przelinowaniem:
- 5,32 t
- 5,0 t
- 5,57 t
- 5,65 t
674. Na podstawie przedstawionego diagramu określ udźwig maksymalny żurawia:
- 1900 kg
- 8000 kg
- 12000kg
- 16000 kg
675. Na podstawie przedstawionego diagramu udźwigu określ rzeczywisty udźwig żurawia dla konfiguracji: olinowanie 1 pasmo, wysięgnik 45m, wysięg roboczy 25m:
- 6840 kg
- 8000 kg
- 10880 kg
- 16000 kg
676. Na podstawie przedstawionego diagramu udźwigu określ rzeczywisty udźwig żurawia dla konfiguracji: olinowanie 1 pasmo, wysięgnik 55m, wysięg roboczy 30m:
- 7160 kg
- 8000 kg
- 7300 kg
- 12000 kg
677. Na podstawie przedstawionego diagramu udźwigu określ rzeczywisty udźwig żurawia dla konfiguracji: olinowanie 2 pasma, wysięgnik 45m, wysięg roboczy 25m:
- 6840 kg
- 8000 kg
- 10880 kg
- 16000 kg
678. Na podstawie przedstawionego diagramu udźwigu określ rzeczywisty udźwig żurawia dla konfiguracji: olinowanie 2 pasma, wysięgnik 55m, wysięg roboczy 30m:
- 7160 kg
- 8000 kg
- 7300 kg
- 12000 kg
679. Na podstawie przedstawionej charakterystyki udźwigu:
- maksymalny wysięg żurawia wynosi 45 m
- maksymalny wysięg żurawia wynosi 46,7 m
- maksymalny wysięg żurawia wynosi 40,9 m
- maksymalna wysokość podnoszenia wynosi 10 m
680. Na podstawie przedstawionej charakterystyki udźwigu:
- maksymalny udźwig żurawia wynosi 5600kg
- maksymalny udźwig żurawia wynosi 5400kg
- maksymalny udźwig żurawia wynosi 2800kg
- maksymalny udźwig żurawia wynosi 3000kg
681. Poniższy rysunek przedstawia żuraw:
- dolnoobrotowy, wodzakowy
- górnoobrotowy, z wysięgnikiem wychylnym
- górnoobrotowy wodzakowy
- żuraw wieżowy w fazie montażu
682. Udźwig żurawia z wysięgnikiem o długości 50m na wysięgu 30m wynosi:
- 11,3t
- 12,0t
- 5,3t
- żadna z powyższych odpowiedzi nie jest prawidłowa
683. W oparci o przedstawiony rysunek wskaż prawidłowe parametry techniczne żurawia:
- udźwig - 2125kg; wysięg - 56m; wysokość podnoszenia - 37,2m
- udźwig - 5t; wysokość podnoszenia - 36,7m; wysięg - 40m
- udźwig - 5,6t; wysokość podnoszenia - 37,2m; wysięgnik - 47,9m
- udźwig - 5,6t; wysokość podnoszenia - 56m; wysięg - 7,9m
684. W oparciu o poniższy rysunek określ długość przeciwwysięgnika:
- 13,2 m
- 5,8 m
- 10 m
- 2,5 m
685. W oparciu o poniższy rysunek:
- maksymalny ładunek jaki możemy podnieść to 10 t
- maksymalny wysięg żurawia to 30 m
- maksymalna wysokość podnoszenia to 30 m
- maksymalny wysięg żurawia to 55m
686. W oparciu o przedstawioną tabelę określ ile wynosi maksymalna dopuszczalna masa ładunku podnoszonego żurawiem na wysięgu 30 m, jeżeli żuraw dysponuje wysięgnikiem długości 40 m:
- 1300 kg
- 1650 kg
- 1825 kg
- 1685 kg
687. W oparciu o przedstawioną tabelę określ ile wynosi maksymalna dopuszczalna masa ładunku podnoszonego żurawiem na wysięgu 31 m, jeżeli żuraw dysponuje wysięgnikiem długości 35 m:
- 1800 kg
- 1990 kg
- 2200 kg
- brak możliwości podniesienia ciężaru dla takiej konfiguracji żurawia
688. W oparciu o przedstawioną tabelę określ ile wynosi maksymalna dopuszczalna masa ładunku podnoszonego żurawiem na wysięgu 33 m, jeżeli żuraw dysponuje wysięgnikiem długości 35 m:
- 1600 kg
- 1800 kg
- 1990 kg
- 2200 kg
689. W oparciu o przedstawioną tabelę określ ile wynosi maksymalna dopuszczalna masa ładunku podnoszonego żurawiem na wysięgu 34 m, jeżeli żuraw dysponuje wysięgnikiem długości 37 m:
- 1600 kg
- 1700 kg
- 1800 kg
- brak możliwości podniesienia ciężaru dla takiej konfiguracji żurawia
690. W oparciu o przedstawioną tabelę udźwigów podaj jaki maksymalny ładunek można podnieść żurawiem z wysięgnikiem o długości 47m, przy wysięgu równym 35m
- 1940kg
- 1800kg
- 1970kg
- 2095kg
691. W oparciu o przedstawioną tabelę udźwigów podaj jaki maksymalny ładunek można podnieść żurawiem z wysięgnikiem o długości 52m, przy wysięgu równym 35m
- 1155kg
- 1500kg
- 1750kg
- 1240kg
692. W oparciu o przedstawioną tabelę udźwigów podaj na jakim wysięgu prawidłowo działający ogranicznik udźwigu żurawia o długości wysięgnika 25m z ładunkiem 1667kg wyłączy tzw. ruchy niebezpieczne:
- 15 m
- 17 m
- 19 m
- 16 m
693. W oparciu o przedstawioną tabelę udźwigów podaj na jakim wysięgu prawidłowo działający ogranicznik udźwigu żurawia o długości wysięgnika 45m z ładunkiem 2,49t wyłączy tzw. ruchy niebezpieczne:
- 45m
- 35m
- 32m
- 30m
694. W oparciu o przedstawioną tabelę udźwigów podaj na jakim wysięgu prawidłowo działający ogranicznik udźwigu żurawia o długości wysięgnika 50m z ładunkiem 1960kg wyłączy tzw. ruchy niebezpieczne:
- 45m
- 35m
- 32m
- 30m
695. W oparciu o przedstawioną tabelę wskaż ile wynosi prędkość obrotu żurawia:
- 2 r/min
- 1 r/min
- 0,58 r/min
- 0,26 r/min
696. W oparciu o przedstawioną tabelę, dla żurawia wyposażonego w wysięgnik o długości 35 m, udźwig 2000 kg obowiązuje do wysięgu nie większego niż:
- 31,87 m
- 26,06 m
- 30 m
- 31 m
697. W oparciu o przedstawioną tabelę, dla żurawia wyposażonego w wysięgnik o długości 35 m, udźwig 2500 kg obowiązuje do wysięgu nie większego niż:
- 25 m
- 26 m
- 26,06 m
- 31,87 m
698. W oparciu o przedstawioną tabelę, dla żurawia wyposażonego w wysięgnik o długości 40 m, udźwig 2000 kg obowiązuje do wysięgu nie większego niż:
- 22,48 m
- 25 m
- 27 m
- 27,5 m
699. W oparciu o przedstawioną tabelę, dla żurawia wyposażonego w wysięgnik o długości 40 m, udźwig 2500 kg obowiązuje do wysięgu nie większego niż:
- 22 m
- 22,48 m
- 20,54 m
- 27,5 m
700. W oparciu o przedstawiony diagram określ maksymalny udźwig na 25m wysięgu dla żurawia wieżowego o długości wysięgnika 45m:
- 2 t
- 3,570 t
- 3,75 kg
- 6000 kg
701. W oparciu o przedstawiony diagram określ maksymalny udźwig na końcu wysięgu dla żurawia wieżowego o długości wysięgnika 35,5m:
- 1,25 t
- 1160 kg
- 2500 kg
- 2,5 t
702. W oparciu o przedstawiony diagram określ na jakim wysięgu ogranicznik obciążenia żurawia o długości wysięgnika 45 m. z ładunkiem 4760 kg. wyłączy tzw. ruchy niebezpieczne:
- 15 m
- 25 m
- 23 m
- 27 m
703. W oparciu o przedstawiony diagram określ na jakim wysięgu zadziała ogranicznik obciążenia żurawia o długości wysięgnika 40 m z ładunkiem 3050 kg wyłączy tzw. ruchy niebezpieczne:
- 21 m
- 29 m
- 37 m
- 40 m
704. W oparciu o przedstawiony diagram określ na jakim wysięgu zadziała ogranicznik obciążenia żurawia o długości wysięgnika 40 m z ładunkiem 6510 kg wyłączy tzw. ruchy niebezpieczne:
- 17 m
- 21 m
- 25 m
- 29 m
705. W oparciu o przedstawiony diagram określ na jakim wysięgu zadziała ogranicznik obciążenia żurawia o długości wysięgnika 45 m z ładunkiem 4040 kg wyłączy tzw. ruchy niebezpieczne:
- 21 m
- 27 m
- 31 m
- 43 m
706. W oparciu o przedstawiony diagram określ na jakim wysięgu zadziała ogranicznik obciążenia żurawia o długości wysięgnika 45 m z ładunkiem 6340 kg wyłączy tzw. ruchy niebezpieczne:
- 17 m
- 21 m
- 27 m
- 31 m
707. W oparciu o przedstawiony diagram określ na jakim wysięgu zadziała ogranicznik obciążenia żurawia o długości wysięgnika 50 m z ładunkiem 6910 kg wyłączy tzw. ruchy niebezpieczne:
- 19 m
- 27 m
- 31 m
- 43 m
708. W oparciu o przedstawiony diagram określ na jakim wysięgu zadziała ogranicznik obciążenia żurawia o długości wysięgnika 50 m z ładunkiem 7830 kg wyłączy tzw. ruchy niebezpieczne:
- 17 m
- 21 m
- 29 m
- 35 m
709. W oparciu o przedstawiony diagram określ na jakim wysięgu zadziała ogranicznik obciążenia żurawia o długości wysięgnika 55m z ładunkiem 2670 kg wyłączy tzw. ruchy niebezpieczne:
- 23 m
- 29 m
- 37 m
- 43 m
710. W oparciu o przedstawiony diagram określ na jakim wysięgu zadziała ogranicznik obciążenia żurawia o długości wysięgnika 55m z ładunkiem 3080 kg wyłączy tzw. ruchy niebezpieczne:
- 17 m
- 25 m
- 33 m
- 40 m
711. W oparciu o przedstawiony diagram podaj dla jakiej długości wysięgnika, maksymalny udźwig żurawia jest dostępny na odległości 26 metrów:
- 40 m
- 45 m
- 50 m
- 55 m
712. W oparciu o przedstawiony diagram udźwigu wskaż maksymalną masę ładunku jaka można podać na odległość 22 m (zblocze hakowe z 4-pasmowym olinowaniem):
- 2200 kg
- 1723 kg
- 2106 kg
- 1340 kg
713. W oparciu o przedstawiony diagram udźwigu wskaż maksymalną masę ładunku jaka można podać na odległość 22 m przy długości wysięgnika 37 m (zblocze hakowe z 4-pasmowym olinowaniem):
- 2,2 t
- 2,5 t
- 2,8 t
- 2,3 t
714. W oparciu o przedstawiony diagram udźwigu wskaż maksymalną masę ładunku jaka można podać na odległość 30 m przy długości wysięgnika 55 m:
- 3,93 t
- 5,72 t
- 3,80 t
- 3,33 t
715. W oparciu o przedstawiony diagram udźwigu wskaż maksymalną masę ładunku jaka można podać na odległość 33 m przy długości wysięgnika 55 m:
- 3,93 t
- 2,86 t
- 3,80 t
- 3,33 t
716. W oparciu o przedstawiony diagram udźwigu wskaż maksymalną masę ładunku jaka można podać na odległość 40 m (zblocze hakowe z 4-pasmowym olinowaniem):
- 957 kg
- 852 kg
- 800 kg
- wszystkie odpowiedzi są niepoprawne
717. W oparciu o przedstawiony diagram udźwigu wskaż maksymalną masę ładunku jaka można podać na odległość 40 m przy długości wysięgnika 50 m:
- 3,49 t
- 2,87 t
- 5,20 t
- 5,72 t
718. W oparciu o przedstawiony diagram udźwigu wskaż maksymalną masę ładunku jaka można podać na odległość 40 m przy długości wysięgnika 50 m:
- 3,49 t
- 2,87 t
- 5,20 t,
- 4,56 t
719. W oparciu o przedstawiony diagram udźwigu wskaż maksymalną masę ładunku jaka można podać na odległość 40 m:
- 2 t
- 3 t
- 1 t
- 4 t
720. W oparciu o przedstawiony diagram udźwigu wskaż maksymalną masę ładunku jaką można podać na odległość 25 m przy długości wysięgnika 50 m i olinowaniu 4-pasmowym:
- 3,15 t
- 3,80 t
- 3,00 t
- odległość jest poza zakresem pracy żurawia
721. W oparciu o przedstawiony diagram udźwigu wskaż maksymalną masę ładunku jaką można podać na odległość 30 m przy długości wysięgnika 50 m:
- 3,15 t
- 2,50 t
- 3,00 t
- odległość jest poza zakresem pracy żurawia
722. W oparciu o przedstawiony diagram udźwigu wskaż maksymalną masę ładunku jaką można podać na odległość 35 m przy długości wysięgnika 30 m:
- 2,96 t
- 2,91 t
- 3,00 t
- odległość jest poza zakresem pracy żurawia
723. W oparciu o przedstawiony diagram udźwigu wskaż maksymalną masę ładunku jaką można podać na odległość 35 m przy długości wysięgnika 40 m:
- 3,00 t
- 2,29 t
- 2,36 t
- odległość jest poza zakresem pracy żurawia
724. W oparciu o przedstawiony diagram udźwigu wskaż maksymalną masę ładunku jaką można podać na odległość 35 m przy długości wysięgnika 40 m:
- 3,00 t
- 2,16 t
- 2,36 t
- odległość jest poza zakresem pracy żurawia
725. W oparciu o przedstawiony diagram udźwigu wskaż maksymalną masę ładunku jaką można podać na odległość 35 m przy długości wysięgnika 45 m:
- 3,00 t
- 2,26 t
- 2,19 t
- odległość jest poza zakresem pracy żurawia
726. W oparciu o przedstawiony diagram udźwigu wskaż maksymalną masę ładunku jaką można podać na odległość 40 m przy długości wysięgnika 50 m i olinowaniu 2-pasmowym:
- 1,70 t
- 1,77 t
- 1,99 t
- 1,92 t
727. W oparciu o przedstawiony diagram udźwigu wskaż maksymalną masę ładunku jaką można podać na odległość 40 m przy długości wysięgnika 50 m:
- 1,70 t
- 1,77 t
- 1,99 t
- 1,92 t
728. W oparciu o przedstawiony diagram udźwigu wskaż maksymalną masę ładunku jaką można podać na odległość 45 m przy długości wysięgnika 55 m:
- 3,00 t
- 1,17 t
- 1,26 t
- odległość jest poza zakresem pracy żurawia
729. W oparciu o przedstawiony diagram udźwigu wskaż maksymalny udźwig żurawia dla przy długości wysięgnika 40 m:
- 3,00 t
- 6,00 t
- 4,57 t
- 1,99 t
730. W oparciu o przedstawiony diagram udźwigu wskaż maksymalny udźwig żurawia przy długości wysięgnika 55 m i dwóch pasmach lin zblocza hakowego:
- 3,00 t
- 3,77 t
- 6,00 t
- 0,93 t
731. W oparciu o przedstawiony diagram udźwigu wskaż maksymalny udźwig żurawia:
- 3,00 t
- 5,00 t
- 6,00 t
- 12,00 t
732. W oparciu o przedstawiony diagram udźwigu wskaż maksymalny wysięg żurawia z ładunkiem nominalnym o masie 8 t. przy długości wysięgnika 55 m:
- 15,0 m
- 14,5 m
- 16,6 m
- 17,4 m
733. W oparciu o przedstawiony diagram udźwigu wskaż maksymalny wysięg żurawia z ładunkiem o masie 1,34 t (zblocze hakowe z 2-pasmowym olinowaniem):
- 22 m
- 24 m
- 28 m
- 30 m
734. W oparciu o przedstawiony diagram udźwigu wskaż maksymalny wysięg żurawia z ładunkiem o masie 2,5 t przy długości wysięgnika 42 m (zblocze hakowe z 2-pasmowym olinowaniem):
- 22 m
- 24 m
- 28 m
- 17 m
735. W oparciu o przedstawiony diagram udźwigu wskaż maksymalny wysięg żurawia z ładunkiem o masie 2500 kg (zblocze hakowe z 2-pasmowym olinowanie):
- 14 m
- 20 m
- 24 m
- wskazana wartość jest większe niż dopuszczalna wartość udźwigu żurawia
736. W oparciu o przedstawiony diagram udźwigu wskaż maksymalny wysięg żurawia z ładunkiem o masie 2790 kg przy długości wysięgnika 40 m (zblocze hakowe z 2-pasmowym olinowaniem):
- 20 m
- 25 m
- 30 m
- 35 m
737. W oparciu o przedstawiony diagram udźwigu wskaż maksymalny wysięg żurawia z ładunkiem o masie 3000 kg przy długości wysięgnika 45 m (zblocze hakowe z 2-pasmowym olinowaniem):
- 20 m
- 27,85 m
- 25 m
- ładunek o masie 3000 jest większy niż dopuszczalna wartość udźwigu żurawia
738. W oparciu o przedstawiony diagram udźwigu wskaż maksymalny wysięg żurawia z ładunkiem o masie 3490 kg przy długości wysięgnika 45 m:
- 43 m
- 33 m
- 40 m
- 35 m
739. W oparciu o przedstawiony diagram udźwigu wskaż maksymalny wysięg żurawia z ładunkiem o masie 3700 kg przy długości wysięgnika 42 m (zblocze hakowe z 2-pasmowym olinowanie):
- 17 m
- 22 m
- 27 m
- ładunek o masie 3700 jest większy niż dopuszczalna wartość udźwigu żurawia
740. W oparciu o przedstawiony diagram udźwigu wskaż maksymalny wysięg żurawia z ładunkiem o masie 4 000 kg:
- 12,42 m
- 8,26m
- 10,96 m
- 20,00 m
741. W oparciu o przedstawiony diagram udźwigu wskaż maksymalny wysięg żurawia z ładunkiem o masie 5,40 t przy długości wysięgnika 50 m (zblocze hakowe z 3-pasmowym olinowaniem):
- 30,0 m
- 35,0 m
- 40,0 m
- 45,0 m
742. W oparciu o przedstawiony diagram udźwigu wskaż maksymalny wysięg żurawia z ładunkiem o masie 6,18 t przy długości wysięgnika 40 m (zblocze hakowe z 4-pasmowym olinowanie):
- 43 m
- 35 m
- 40 m
- 33 m
743. W oparciu o przedstawiony diagram udźwigu wskaż do jakiej wartości wysięgu można uzyskać udźwig maksymalny. Konfiguracja żurawia: olinowanie czteropasmowe, wysięgnik 60m:
- 60m
- 30m
- 20m
- 19,51m
744. W oparciu o przedstawiony diagram udźwigu wskaż jaką maksymalną masę ładunku można podnieść przy poczwórnym olinowaniu zblocza hakowego:
- 8 t
- 12 t
- 16 t
- 15 t
745. W oparciu o przedstawiony diagram udźwigu wskaż jaką maksymalną masę ładunku można podnieść przy podwójnym olinowaniu zblocza hakowego:
- 8 t
- 12 t
- 16 t
- 15 t
746. W oparciu o przedstawiony diagram udźwigu wskaż jaką maksymalną masę ładunku można podnieść przy podwójnym olinowaniu zblocza hakowego:
- 3,5 t
- 3 t
- 4 t
- 2,5 t
747. W oparciu o przedstawiony diagram udźwigu wskaż jaką maksymalną masę ładunku można podnieść przy podwójnym olinowaniu zblocza hakowego:
- 3,5 t
- 3 t
- 4 t
- 2,0
748. W oparciu o przedstawiony diagram udźwigu wskaż jaką maksymalną masę ładunku można podnieść przy potrójnym olinowaniu zblocza hakowego:
- 8 t
- 12 t
- 16 t
- 15 t
749. W oparciu o przedstawiony diagram udźwigu wskaż jaką maksymalną masę ładunku jaką można podnieść przy poczwórnym olinowaniu zblocza hakowego:
- 3,5 t
- 4 t
- 3 t
- 2,5 t
750. W oparciu o przedstawiony diagram udźwigu wskaż maksymalną masę ładunku jaką można podać na odległość 19 m przy długości wysięgnika 45 m:
- 5,93 t
- 6,91 t
- 7,1 t
- 8,0 t
751. W oparciu o przedstawiony diagram udźwigu wskaż maksymalną masę ładunku jaką można podać na odległość 25 m przy długości wysięgnika 50 m:
- 8,0 t
- 5,06 t
- 4,5 t
- 5,2 t
752. W oparciu o przedstawiony diagram udźwigu wskaż maksymalną masę ładunku jaką można podać na odległość 27 m przy długości wysięgnika 55 m:
- 4,76 t
- 3,94 t
- 3,33 t
- 2,67 t
753. W oparciu o przedstawiony diagram udźwigu wskaż maksymalną masę ładunku jaką można podać na odległość 31 m przy długości wysięgnika 45 m:
- 3,33 t
- 3,93 t
- 4,04 t
- 4,16 t
754. W oparciu o przedstawiony diagram udźwigu wskaż maksymalną masę ładunku jaką można podać na odległość 31 m przy długości wysięgnika 50 m:
- 3,93 t
- 3,33 t
- 3,08 t
- 3,39 t
755. W oparciu o przedstawiony diagram udźwigu wskaż maksymalną masę ładunku jaką można podać na odległość 35 m przy długości wysięgnika 55 m:
- 3,61 t
- 3,08 t
- 2,86 t
- 2,41 t
756. W oparciu o przedstawiony diagram udźwigu wskaż maksymalną masę ładunku jaką można podać na odległość 37 m przy długości wysięgnika 40 m:
- 2,67 t
- 3,17 t
- 3,26 t
- 3,36 t
757. W oparciu o przedstawiony diagram udźwigu wskaż maksymalną masę ładunku jaką można podnieść na maksymalnym wysięgu:
- 970 kg
- 1100 kg
- 790 kg
- 620 kg
758. W oparciu o przedstawiony diagram udźwigu wskaż maksymalną masę ładunku jaką można podnieść przy poczwórnym olinowaniu zblocza hakowego:
- 3,5 t
- 3 t
- 4 t
- 2,5 t
759. W oparciu o przedstawiony diagram udźwigu wskaż maksymalną masę ładunku jaką można przetransportować na odległość 10 m, przy długości wysięgnika L6. Transport ładunku odbywa się przy użyciu trawersy belkowej zawieszonej na haku żurawia (DOR trawersy – 4500kg, masa trawersy – 500 kg):
- transport ładunku w tym zakresie nie jest możliwy
- 4772 kg
- 4500 kg
- 4272 kg
760. W oparciu o przedstawiony diagram udźwigu wskaż maksymalną masę ładunku jaką można przetransportować na odległość 15 m, przy długości wysięgnika L4. Transport ładunku odbywa się przy użyciu trawersy belkowej zawieszonej na haku żurawia (DOR trawersy – 4500kg, masa trawersy – 500 kg):
- 5000 kg
- 4500 kg
- 4772 kg
- żadna z odpowiedzi nie jest właściwa
761. W oparciu o przedstawiony diagram udźwigu wskaż maksymalną masę ładunku jaką można przetransportować na odległość 18 m, przy długości wysięgnika L4. Transport ładunku odbywa się przy użyciu trawersy belkowej zawieszonej na haku żurawia (DOR trawersy – 4500kg, masa trawersy – 500 kg):
- 5000 kg
- 4000 kg
- 4500 kg
- 4202 kg
762. W oparciu o przedstawiony diagram udźwigu wskaż maksymalną masę ładunku jaką można przetransportować na odległość 18 m, przy długości wysięgnika L6. Transport ładunku odbywa się przy użyciu trawersy belkowej zawieszonej na haku żurawia (DOR trawersy – 3000 kg, masa trawersy – 400 kg):
- 4772 kg
- 4372 kg
- 3000 kg
- 2600 kg
763. W oparciu o przedstawiony diagram udźwigu wskaż maksymalną masę ładunku jaką można przetransportować na odległość 18 m, przy długości wysięgnika L6. Transport ładunku odbywa się przy użyciu trawersy belkowej zawieszonej na haku żurawia (DOR trawersy – 4500kg, masa trawersy – 500 kg):
- 4500 kg
- 4000 kg
- 4272 kg
- 4772 kg
764. W oparciu o przedstawiony diagram udźwigu wskaż maksymalną masę ładunku jaką można przetransportować na odległość 19 m, przy długości wysięgnika L1. Transport ładunku odbywa się przy użyciu trawersy belkowej zawieszonej na haku żurawia (DOR trawersy – 4500kg, masa trawersy – 500 kg):
- 5000 kg
- 4000 kg
- 4500 kg
- transport ładunku na tę odległość nie jest możliwy
765. W oparciu o przedstawiony diagram udźwigu wskaż maksymalną masę ładunku jaką można przetransportować na odległość 19 m, przy długości wysięgnika L4. Transport ładunku odbywa się przy użyciu trawersy belkowej zawieszonej na haku żurawia (DOR trawersy – 4500kg, masa trawersy – 500 kg):
- 4925 kg
- 4425 kg
- 5000 kg
- 4500 kg
766. W oparciu o przedstawiony diagram udźwigu wskaż maksymalną masę ładunku jaką można przetransportować na odległość 20 m, przy długości wysięgnika L5. Transport ładunku odbywa się przy użyciu trawersy belkowej zawieszonej na haku żurawia (DOR trawersy – 3000 kg, masa trawersy – 400 kg):
- 3400 kg
- 4167 kg
- 4567 kg
- 3000 kg
767. W oparciu o przedstawiony diagram udźwigu wskaż maksymalną masę ładunku jaką można przetransportować na odległość 20 m, przy długości wysięgnika L6. Transport ładunku odbywa się przy użyciu trawersy belkowej zawieszonej na haku żurawia (DOR trawersy – 4500kg, masa trawersy – 500 kg):
- 4230 kg
- 3730 kg
- 4000 kg
- 3500 kg
768. W oparciu o przedstawiony diagram udźwigu wskaż maksymalną masę ładunku jaką można przetransportować na odległość 21 m, przy długości wysięgnika L1. Transport ładunku odbywa się przy użyciu trawersy belkowej zawieszonej na haku żurawia (DOR trawersy – 4500kg, masa trawersy – 500 kg):
- 5000 kg
- 4500 kg
- 4111 kg
- 4611 kg
769. W oparciu o przedstawiony diagram udźwigu wskaż maksymalną masę ładunku jaką można przetransportować na odległość 23 m, przy długości wysięgnika L4. Transport ładunku odbywa się przy użyciu trawersy belkowej zawieszonej na haku żurawia (DOR trawersy – 3000 kg, masa trawersy – 400 kg):
- 3000 kg
- 3802 kg
- 3400 kg
- 4202 kg
770. W oparciu o przedstawiony diagram udźwigu wskaż maksymalną masę ładunku jaką można przetransportować na odległość 23 m, przy długości wysięgnika L4. Transport ładunku odbywa się przy użyciu trawersy belkowej zawieszonej na haku żurawia (DOR trawersy – 4500kg, masa trawersy – 500 kg):
- 4500 kg
- 4000 kg
- 4202 kg
- 3702 kg
771. W oparciu o przedstawiony diagram udźwigu wskaż maksymalną masę ładunku jaką można przetransportować na odległość 23,5 m, przy długości wysięgnika L1. Transport ładunku odbywa się przy użyciu trawersy belkowej zawieszonej na haku żurawia (DOR trawersy – 3000 kg, masa trawersy – 400 kg):
- 4100 kg
- 3000 kg
- 4500 kg
- 2600 kg
772. W oparciu o przedstawiony diagram udźwigu wskaż maksymalną masę ładunku jaką można przetransportować na odległość 23,5 m, przy długości wysięgnika L1. Transport ładunku odbywa się przy użyciu trawersy belkowej zawieszonej na haku żurawia (DOR trawersy – 4500kg, masa trawersy – 500 kg):
- 4000 kg
- 4500 kg
- 4611 kg
- 4111 kg
773. W oparciu o przedstawiony diagram udźwigu wskaż maksymalną masę ładunku jaką można przetransportować na odległość 25 m, przy długości wysięgnika L2. Transport ładunku odbywa się przy użyciu trawersy belkowej zawieszonej na haku żurawia (DOR trawersy – 3000 kg, masa trawersy – 400 kg):
- 3668 kg
- 4068 kg
- 3400 kg
- 3000 kg
774. W oparciu o przedstawiony diagram udźwigu wskaż maksymalną masę ładunku jaką można przetransportować na odległość 28 m, przy długości wysięgnika L2. Transport ładunku odbywa się przy użyciu trawersy belkowej zawieszonej na haku żurawia (DOR trawersy – 3000 kg, masa trawersy – 400 kg):
- 3173 kg
- 3000 kg
- 2600 kg
- 3573 kg
775. W oparciu o przedstawiony diagram udźwigu wskaż maksymalną masę ładunku jaką można przetransportować na odległość 28 m, przy długości wysięgnika L3. Transport ładunku odbywa się przy użyciu trawersy belkowej zawieszonej na haku żurawia (DOR trawersy – 3000 kg, masa trawersy – 400 kg):
- 3101 kg
- 3000 kg
- 2600 kg
- 3501 kg
776. W oparciu o przedstawiony diagram udźwigu wskaż maksymalną masę ładunku jaką można przetransportować na odległość 28 m, przy długości wysięgnika L4. Transport ładunku odbywa się przy użyciu trawersy belkowej zawieszonej na haku żurawia (DOR trawersy – 3000 kg, masa trawersy – 400 kg):
- 3352 kg
- 2952 kg
- 3000 kg
- 2600 kg
777. W oparciu o przedstawiony diagram udźwigu wskaż maksymalną masę ładunku jaką można przetransportować na odległość 28 m, przy długości wysięgnika L5. Transport ładunku odbywa się przy użyciu trawersy belkowej zawieszonej na haku żurawia (DOR trawersy – 3000 kg, masa trawersy – 400 kg):
- 3100 kg
- 3000 kg
- 2600 kg
- 2700 kg
778. W oparciu o przedstawiony diagram udźwigu wskaż maksymalną masę ładunku jaką można przetransportować na odległość 28 m, przy długości wysięgnika L6. Transport ładunku odbywa się przy użyciu trawersy belkowej zawieszonej na haku żurawia (DOR trawersy – 3000 kg, masa trawersy – 400 kg):
- 2462 kg
- 2862 kg
- 3000 kg
- 2600 kg
779. W oparciu o przedstawiony diagram udźwigu wskaż maksymalną masę ładunku jaką można przetransportować na odległość 30 m, przy długości wysięgnika L2. Transport ładunku odbywa się przy użyciu trawersy belkowej zawieszonej na haku żurawia (DOR trawersy – 3000 kg, masa trawersy – 400 kg):
- 3300 kg
- 3000 kg
- 2900 kg
- 2600 kg
780. W oparciu o przedstawiony diagram udźwigu wskaż maksymalną masę ładunku jaką można przetransportować na odległość 33 m, przy długości wysięgnika L3. Transport ładunku odbywa się przy użyciu trawersy belkowej zawieszonej na haku żurawia (DOR trawersy – 3000 kg, masa trawersy – 400 kg):
- 2700 kg
- 2893 kg
- 2493 kg
- 3000 kg
781. W oparciu o przedstawiony diagram udźwigu wskaż maksymalną masę ładunku jaką można przetransportować na odległość 35 m, przy długości wysięgnika L4. Transport ładunku odbywa się przy użyciu trawersy belkowej zawieszonej na haku żurawia (DOR trawersy – 3000 kg, masa trawersy – 400 kg):
- 2200 kg
- 2581 kg
- 2181 kg
- 1800 kg
782. W oparciu o przedstawiony diagram udźwigu wskaż maksymalną masę ładunku jaką można przetransportować na odległość 40 m, przy długości wysięgnika L5. Transport ładunku odbywa się przy użyciu trawersy belkowej zawieszonej na haku żurawia (DOR trawersy – 3000 kg, masa trawersy – 400 kg):
- 2025 kg
- 1625 kg
- 1750 kg
- 3000 kg
783. W oparciu o przedstawiony diagram udźwigu wskaż maksymalną masę ładunku jaką można przetransportować na odległość 45 m, przy długości wysięgnika L6. Transport ładunku odbywa się przy użyciu trawersy belkowej zawieszonej na haku żurawia (DOR trawersy – 3000 kg, masa trawersy – 400 kg):
- 1604 kg
- 3000 kg
- 1204 kg
- 1400 kg
784. W oparciu o przedstawiony diagram udźwigu wskaż maksymalną masę ładunku jaki można podać na odległość (wysięg) 15 m. Konfiguracja żurawia: wysięgnik 30m:
- 10t
- 5,5t
- 3t
- 1,6t
785. W oparciu o przedstawiony diagram udźwigu wskaż maksymalną masę ładunku jaki można podać na odległość (wysięg) 15 m. Konfiguracja żurawia: wysięgnik 40m:
- 10t
- 5,5t
- 3t
- 1,6t
786. W oparciu o przedstawiony diagram udźwigu wskaż maksymalną masę ładunku jaki można podać na odległość (wysięg) 15 m. Konfiguracja żurawia: wysięgnik 45m, olinowanie czteropasmowe:
- 8t
- 5t
- 3,45t
- 0 - nie ma możliwości pracy z jakimkolwiek ładunkiem
787. W oparciu o przedstawiony diagram udźwigu wskaż maksymalną masę ładunku jaki można podać na odległość (wysięg) 20 m. Konfiguracja żurawia: wysięgnik 55m, olinowanie czteropasmowe:
- 8t
- 7,02t
- 4t
- 2,4t
788. W oparciu o przedstawiony diagram udźwigu wskaż maksymalną masę ładunku jaki można podać na odległość (wysięg) 20 m. Konfiguracja żurawia: wysięgnik 55m, olinowanie dwupasmowe:
- 8t
- 7,02t
- 4t
- 2,4t
789. W oparciu o przedstawiony diagram udźwigu wskaż maksymalną masę ładunku jaki można podać na odległość (wysięg) 20 m. Konfiguracja żurawia: wysięgnik 65m, olinowanie czteropasmowe:
- 6t
- 5,15t
- 4,70t
- 3t
790. W oparciu o przedstawiony diagram udźwigu wskaż maksymalną masę ładunku jaki można podać na odległość (wysięg) 25 m. Konfiguracja żurawia: wysięgnik 40m:
- 10t
- 5,5t
- 3t
- 1,6t
791. W oparciu o przedstawiony diagram udźwigu wskaż maksymalną masę ładunku jaki można podać na odległość (wysięg) 25 m. Konfiguracja żurawia: wysięgnik 55m:
- 10t
- 5,8t
- 5t
- 1,6t
792. W oparciu o przedstawiony diagram udźwigu wskaż maksymalną masę ładunku jaki można podać na odległość (wysięg) 25 m. Konfiguracja żurawia: wysięgnik 60m, olinowanie czteropasmowe:
- 16t
- 11,45t
- 8t
- 3,78t
793. W oparciu o przedstawiony diagram udźwigu wskaż maksymalną masę ładunku jaki można podać na odległość (wysięg) 25 m. Konfiguracja żurawia: wysięgnik 60m, olinowanie czteropasmowe:
- 16t
- 11,45t
- 8t
- 3,78t
794. W oparciu o przedstawiony diagram udźwigu wskaż maksymalną masę ładunku jaki można podać na odległość (wysięg) 25 m. Konfiguracja żurawia: wysięgnik 60m, olinowanie dwupasmowe:
- 16t
- 11,45t
- 8t
- 3,78t
795. W oparciu o przedstawiony diagram udźwigu wskaż maksymalną masę ładunku jaki można podać na odległość (wysięg) 25 m. Konfiguracja żurawia: wysięgnik 65m, olinowanie czteropasmowe:
- 6t
- 4,70t
- 3,61t
- 2,89t
796. W oparciu o przedstawiony diagram udźwigu wskaż maksymalną masę ładunku jaki można podać na odległość (wysięg) 26 m. Konfiguracja żurawia: wysięgnik 35m, olinowanie czteropasmowe:
- 6t
- 5,14t
- 4,3t
- 3t
797. W oparciu o przedstawiony diagram udźwigu wskaż maksymalną masę ładunku jaki można podać na odległość (wysięg) 26 m. Konfiguracja żurawia: wysięgnik 35m, olinowanie dwupasmowe:
- 6t
- 5,14t
- 4,3t
- 3t
798. W oparciu o przedstawiony diagram udźwigu wskaż maksymalną masę ładunku jaki można podać na odległość (wysięg) 28 m. Konfiguracja żurawia: wysięgnik 60m, olinowanie czteropasmowe:
- 8t
- 4,38t
- 4t
- 2t
799. W oparciu o przedstawiony diagram udźwigu wskaż maksymalną masę ładunku jaki można podać na odległość (wysięg) 30 m. Konfiguracja żurawia: wysięgnik 45m, olinowanie czteropasmowe:
- 8t
- 4,97t
- 4t
- 3,45t
800. W oparciu o przedstawiony diagram udźwigu wskaż maksymalną masę ładunku jaki można podać na odległość (wysięg) 30 m. Konfiguracja żurawia: wysięgnik 50m, olinowanie czteropasmowe:
- 8t
- 4,71t
- 4t
- 2,90t
801. W oparciu o przedstawiony diagram udźwigu wskaż maksymalną masę ładunku jaki można podać na odległość (wysięg) 30 m. Konfiguracja żurawia: wysięgnik 60m, olinowanie czteropasmowe:
- 8t
- 4t
- 2t
- 0 - nie ma możliwości pracy z jakimkolwiek ładunkiem
802. W oparciu o przedstawiony diagram udźwigu wskaż maksymalną masę ładunku jaki można podać na odległość (wysięg) 35 m. Konfiguracja żurawia: wysięgnik 50m, olinowanie czteropasmowe:
- 16t
- 8,41t
- 8t
- 5,50t
803. W oparciu o przedstawiony diagram udźwigu wskaż maksymalną masę ładunku jaki można podać na odległość (wysięg) 35 m. Konfiguracja żurawia: wysięgnik 50m, olinowanie dwupasmowe:
- 8t
- 4t
- 3,46t
- 2,90t
804. W oparciu o przedstawiony diagram udźwigu wskaż maksymalną masę ładunku jaki można podać na odległość (wysięg) 35 m. Konfiguracja żurawia: wysięgnik 50m, olinowanie dwupasmowe:
- 16t
- 8,41t
- 8t
- 5,50t
805. W oparciu o przedstawiony diagram udźwigu wskaż maksymalną masę ładunku jaki można podać na odległość (wysięg) 40 m. Konfiguracja żurawia: wysięgnik 55m, olinowanie dwupasmowe:
- 8t
- 4t
- 3,46t
- 2,40t
806. W oparciu o przedstawiony diagram udźwigu wskaż maksymalną masę ładunku jaki można podać na odległość (wysięg) 50 m. Konfiguracja żurawia: wysięgnik 55m, olinowanie dwupasmowe:
- 8t
- 4t
- 3,46t
- 2,68t
807. W oparciu o przedstawiony diagram udźwigu wskaż maksymalną masę ładunku, jaką można przemieścić na odległość 35 m przy długości wysięgnika 40 m:
- 3050 kg
- 1750 kg
- 1590 kg
- 1350 kg
808. W oparciu o przedstawiony diagram udźwigu wskaż maksymalny udźwig żurawia przy olinowaniu dwupasmowym:
- 6t
- 5,15t
- 3t
- 1,15t
809. W oparciu o przedstawiony diagram udźwigu wskaż maksymalny wysięg żurawia z ładunkiem o masie 1,6 t:
- 18 m
- 20 m
- 25 m
- 28 m
810. W oparciu o przedstawiony diagram udźwigu wskaż maksymalny wysięg żurawia z ładunkiem o masie 2 t:
- 21 m
- 25 m
- 24 m
- 18 m
811. W oparciu o przedstawiony diagram udźwigu wskaż maksymalny wysięg żurawia z ładunkiem o masie 2190 kg przy długości wysięgnika 55 m:
- 40 m
- 43 m
- 45 m
- 47 m
812. W oparciu o przedstawiony diagram udźwigu wskaż maksymalny wysięg żurawia z ładunkiem o masie 3260 kg przy długości wysięgnika 45 m:
- 33 m
- 35 m
- 37 m
- 40 m
813. W oparciu o przedstawiony diagram udźwigu wskaż maksymalny wysięg żurawia z ładunkiem o masie 3330 kg przy długości wysięgnika 55 m:
- 25 m
- 29 m
- 31 m
- 33 m
814. W oparciu o przedstawiony diagram udźwigu wskaż maksymalny wysięg żurawia z ładunkiem o masie 4500 kg przy długości wysięgnika 40 m:
- 27 m
- 29 m
- 31 m
- 33 m
815. W oparciu o przedstawiony diagram udźwigu wskaż maksymalny wysięg żurawia z ładunkiem o masie 5060 kg przy długości wysięgnika 50 m:
- 23 m
- 25 m
- 29 m
- 31 m
816. W oparciu o przedstawiony diagram udźwigu wskaż maksymalny wysięg żurawia z ładunkiem o masie 6340 kg przy długości wysięgnika 45 m:
- 21 m
- 19 m
- 23 m
- 27 m
817. W oparciu o przedstawiony diagram udźwigu wskaż maksymalny wysięg żurawia z ładunkiem o masie 6510 kg przy długości wysięgnika 40 m:
- 17 m
- 19 m
- 21 m
- 23 m
818. W oparciu o przedstawiony diagram udźwigu wskaż poprawne parametry pracy żurawia:
- udźwig nominalny 10t i wysięg minimalny 2,5m
- udźwig nominalny 10t i wysięg minimalny 14,3
- udźwig nominalny 5t i wysięg maksymalny 15,9m
- udźwig nominalny 5t i wysięg maksymalny 55m
819. W oparciu o przedstawiony diagram udźwigu wskaż poprawne parametry pracy żurawia:
- odpowiedzi B i C są prawidłowe
- maksymalny wysięg 70m
- maksymalny udźwig 6 t
- minimalny wysięg 12m
820. W oparciu o przedstawiony diagram udźwigu wskaż poprawne parametry pracy żurawia:
- maksymalny wysięg żurawia 45 m
- maksymalny udźwig 5600 kg
- praca w pełnym zakresie obrotu
- wszystkie odpowiedzi są poprawne
821. W oparciu o przedstawiony diagram udźwigu wskaż poprawne parametry pracy żurawia:
- maksymalny do uzyskania wysięg montażowy 55 m
- maksymalny udźwig 3 t
- maksymalny udźwig przy podwójnym olinowaniu zblocza hakowego
- wszystkie odpowiedzi są poprawne
822. W oparciu o przedstawiony diagram udźwigu wskaż poprawne parametry pracy żurawia:
- maksymalny do uzyskania wysięg montażowy 40 m
- maksymalny udźwig 8 t
- praca w zakresie obrotu r = 56,4°
- wszystkie odpowiedzi są poprawne
823. W oparciu o przedstawiony diagram udźwigu wskaż poprawne parametry pracy żurawia:
- maksymalny do uzyskania wysięg montażowy 55 m
- maksymalny udźwig 8 t
- maksymalny udźwig przy poczwórny olinowaniu zblocza hakowego
- wszystkie odpowiedzi są poprawne
824. W oparciu o przedstawiony diagram udźwigu wskaż poprawne parametry pracy żurawia:
- maksymalny udźwig 8 t
- maksymalna wysokość podnoszenia 23,4 m
- maksymalny do uzyskania wysięg montażowy 55 m
- wszystkie odpowiedzi są poprawne
825. W oparciu o przedstawiony diagram udźwigu wskaż poprawne parametry pracy żurawia:
- maksymalny do uzyskania wysięg montażowy 50 m
- maksymalny udźwig 16 t
- maksymalny udźwig przy podwójnym olinowaniu zblocza hakowego
- wszystkie odpowiedzi są poprawne
826. W oparciu o przedstawiony diagram udźwigu wskaż poprawne parametry pracy żurawia:
- maksymalny do uzyskania wysięg montażowy 55 m
- maksymalny udźwig 4 t
- maksymalny udźwig przy poczwórnym olinowaniu zblocza hakowego
- wszystkie odpowiedzi są poprawne
827. W oparciu o przedstawiony diagram udźwigu wskaż poprawne parametry pracy żurawia:
- maksymalny udźwig 4 t
- maksymalny udźwig z poczwórnym olinowaniem zblocza
- maksymalny do uzyskania wysięg montażowy 42 m
- wszystkie odpowiedzi są poprawne
828. W oparciu o przedstawiony diagram udźwigu wskaż poprawne parametry pracy żurawia:
- maksymalny wysięg 45 m
- maksymalny udźwig żurawia 4000 kg
- maksymalny udźwig przy podwójnym olinowaniu zblocza hakowego
- wszystkie odpowiedzi są poprawne
829. W oparciu o przedstawiony diagram udźwigu wskaż poprawne parametry pracy żurawia:
- maksymalny wysięg 47 m
- maksymalny udźwig 4 t
- maksymalny udźwig z poczwórnym olinowaniem zblocza
- wszystkie odpowiedzi są poprawne
830. W oparciu o przedstawiony diagram udźwigu wskaż poprawne parametry pracy żurawia:
- maksymalny wysięg 50 m
- maksymalny udźwig 2 t
- maksymalny udźwig z podwójnym olinowaniem zblocza
- wszystkie odpowiedzi są niepoprawne
831. W oparciu o przedstawiony diagram udźwigu wskaż poprawne parametry pracy żurawia:
- maksymalny wysięg 45 m
- maksymalny udźwig żurawia do wysięgu 10,96 m
- maksymalny udźwig przy podwójnym olinowaniu zblocza hakowego
- wszystkie odpowiedzi są poprawne
832. W oparciu o przedstawiony diagram udźwigu żurawia, wskaż poprawną odpowiedź:
- dla wysięgnika 65m, na odległości 60 m, możemy podnieść 3500kg
- dla wysięgnika 75m, na odległości 75 m nie można podnieść 1700kg
- dla wysięgnika 55m, na odległości 25m, można podnieść 12000kg
- dla wysięgnika 50m, na odległości 24,5m, można podnieść 12000kg
833. W oparciu o przedstawiony diagram udźwigu, wskaż poprawne parametry pracy żurawia:
- maksymalny wysięg żurawia 30 m
- maksymalny udźwig osiągany jest przy podwójnym olinowaniu zblocza hakowego
- maksymalny udźwig 4 t
- wszystkie odpowiedzi są poprawne
834. W oparciu o przedstawiony diagram udźwigu, wskaż poprawne parametry żurawia:
- dla wysięgnika 55m, maksymalny udźwig wynosi 8000 kg,
- dla wysięgnika 50m, na odległości 17m, maksymalny udźwig wynosi 8000 kg
- dla wysięgnika 55m, maksymalny udźwig wynosi 7730 kg
- dla wysięgnika 40m, maksymalny udźwig na 45m wynosi 2550 kg,
835. W oparciu o przedstawiony diagram wskaż maksymalną masę ładunku jaką można podać na odległości 10 m:
- 2,8 t
- 4 t
- 1,6 t
- 1 t
836. W oparciu o przedstawiony diagram wskaż maksymalną masę ładunku jaką można podać na odległości 15 m:
- 1,4 t
- 4 t
- 2,8 t
- 1,2 t
837. W oparciu o przedstawiony diagram wskaż maksymalną masę ładunku jaką można podać na odległości 45 m:
- 0,8 t
- 1,4 t
- 2 t
- 3 t
838. W oparciu o przedstawiony diagram wskaż maksymalną masę ładunku jaką można podać na odległość 27 metrów przy długości wysięgnika 30 metrów:
- 23130 kg
- 23580 kg
- 24000 kg
- brak danych do określenia
839. W oparciu o przedstawiony diagram wskaż maksymalną masę ładunku jaką można podać na odległość 30 metrów przy długości wysięgnika 55 metrów:
- 4800 kg
- 3800 kg
- 4200 kg
- 4000 kg
840. W oparciu o przedstawiony diagram wskaż maksymalną masę ładunku jaką można podać na odległość 40 metrów przy długości wysięgnika 52,5 metra:
- 2800 kg
- 3200 kg
- 3400 kg
- 3700 kg
841. W oparciu o przedstawiony diagram wskaż maksymalny udźwig dla wersji wysięgnika L=39,2 m i liczby pasm liny n=2 na wysięgu 29 m:
- 1900 kg
- 2720 kg
- 3000 kg
- 1770 kg
842. W oparciu o przedstawiony diagram wskaż na jaką odległość można podać ładunek o maksymalnym udźwigu dla żurawia wyposażonego w wysięgnik o długości 35 metrów:
- 25 m
- 26,7 m
- 27,2 m
- 27,5 m
843. W oparciu o przedstawiony diagram wskaż na jaką odległość można podać ładunek o maksymalnym udźwigu dla żurawia wyposażonego w wysięgnik o długości 55 metrów:
- 17 m
- 18 m
- 20 m
- brak danych do określenia
844. W oparciu o przedstawiony diagram wskaż na jaką odległość można podać ładunek o masie 3800 kg, gdy żuraw jest wyposażony w 45 metrowy wysięgnik:
- 34 m
- 36 m
- 40 m
- 38 m
845. W oparciu o przedstawiony diagram wskaż na jaką odległość można podać ładunek o masie 4400 kg, gdy żuraw jest wyposażony w 50 metrowy wysięgnik:
- 32,5 m
- 35 m
- 37,5 m
- 47,5 m
846. W oparciu o przedstawiony rysunek podaj na jakim wysięgu prawidłowo działający ogranicznik udźwigu żurawia w Wariant II z ładunkiem 4000kg wyłączy tzw. ruchy niebezpieczne:
- 16,5m
- 30m
- 25m
- 20m
847. W oparciu o przedstawiony wykres pracy, określ maksymalną masę ładunku jaką można podnieść na odległości 15,0 m od wieży żurawia:
- 7,84 t
- 1,9 t
- 8,0 t
- 3,4 t
848. W oparciu o przedstawiony wykres pracy, określ maksymalną masę ładunku, jaką można podać na odległość 40m, przy długości wysięgnika 60m:
- 4,33 t
- 6,310 t
- 7,60 t
- 6,79 t
849. W oparciu o przedstawiony wykres pracy, określ maksymalną odległość na jaką można podać ładunek o masie 3,0t w wersji żurawia promieniu wysięgu 46,4m:
- 40,0 m
- 32,0 m
- 37,0 m
- 43,0 m
850. W oparciu o przedstawiony wykres udźwigów podaj na jakim wysięgu prawidłowo działający ogranicznik udźwigu żurawia z ładunkiem o masie 1200kg wyłączy tzw. ruchy niebezpieczne:
- 11,8m
- 27m
- 30m
- 33m
851. W oparciu o przedstawiony wykres udźwigów podaj na jakim wysięgu prawidłowo działający ogranicznik udźwigu żurawia z ładunkiem o masie 1450kg wyłączy tzw. ruchy niebezpieczne:
- 11,8m
- 27m
- 30m
- 33m
852. Wg pokazanego diagramu określ udźwig żurawia na max. wysięgu, dla żurawia zmontowanego w wersji: olinowanie 4-pasmowe, wysokość podnoszenia 33,3 m, dłg wysięgnika 40 m:
- 16000 kg
- 8,20 t
- 15,4 t
- 27,44 t
853. Wskazany w przedstawionym diagramie maksymalny udźwig żurawia jest możliwy przy konfiguracji żurawia w wysięgnik o długości:
- 45 m
- 50 m
- 55 m
- wszystkie odpowiedzi są poprawne
854. Wskazany w przedstawionym diagramie maksymalny udźwig żurawia jest możliwy przy konfiguracji żurawia w wysięgnik o długości:
- 45 m
- 50 m
- 40 m
- wszystkie odpowiedzi są poprawne
855. Wskazany w przedstawionym diagramie maksymalny udźwig żurawia jest możliwy przy konfiguracji żurawia w wysięgnik o długości:
- 45 m
- 50 m
- 42 m
- wszystkie odpowiedzi są poprawne
856. Zgodnie z poniższym diagramem udźwig żurawia w wersji montażowej z wysięgnikiem o długości 33,4m, na wysięgu 17m, przy dwóch pasmach liny wynosi:
- 5390 kg
- 5600 kg
- 2800 kg
- 2300 kg
857. Zgodnie z poniższym diagramem udźwigu proszę określić na jaki maksymalny wysięg możemy bezpiecznie przetransportować ładunek o masie Q= 1,5 t:
- 15m
- 20m
- 21m
- 30m
858. Żuraw wieżowy z wysięgnikiem wychylnym zmontowany w II wersji montażowej, według poniższego diagramu ma następujące parametry:
- udźwig 2,5 t przy wysięgu 25m
- udźwig 5,0 t przy wysięgu 20m
- udźwig 6,5 t przy wysięgu 10m
- udźwig 5,5 t przy wysięgu 11m
859. Żuraw wieżowy został zmontowany w wersji stacjonarnej o wysokości 40 metrów, z wysięgnikiem 32,1 metra oraz olinowaniu podwójnym. Określ jaki maksymalny ciężar może unieść ten żuraw na promieniu 22 m:
- 1940 kg
- 1,27 t
- 2000 kg
- 2330 kg
860. Żuraw wieżowy został zmontowany w wersji stacjonarnej o wysokości 40 metrów, z wysięgnikiem 32,1 metra oraz olinowaniu podwójnym. Określ maksymalny udźwig żurawia w takiej wersji:
- 2 t
- 4 t
- 3500 kg
- 3820 kg
861. Żuraw wieżowy został zmontowany w wersji stacjonarnej o wysokości 40 metrów, z wysięgnikiem 37,5 metra oraz olinowaniu poczwórnym. Określ maksymalny udźwig żurawia w takiej wersji:
- 2 t
- 3750 t
- 3500 kg
- 4000 kg
862. Dopuszczalna prędkość mechanizmów żurawia podczas przemieszczania na jego pojemnika na beton z podestem dla operatora lub kosza do przemieszczania osób, nie może przekraczać:
- 36 m/min (0,6 m/s)
- 30 m/min (0,5 m/s)
- 42 m/min (0,7 m/s)
- 48 m/min (0,8 m/s)
863. Dopuszczalna prędkość wiatru w przypadku przemieszczania na haku żurawia pojemnika na beton z podestem dla operatora lub kosza do przemieszczania osób, nie może przekraczać:
- 7 m/s (25 km/h)
- 8 m/s (29 km/h)
- 9 m/s (32 km/h)
- 12 m/s (43 km/h)
864. Dopuszczalne obciążenie robocze DOR określa:
- maksymalną masę ładunku transportowaną lub podtrzymywaną przez zawiesie podczas pracy
- maksymalny udźwig żurawia w danej wersji montażowej określony przez producenta
- stopień wykorzystania resursu żurawia
- dopuszczalną liczbę cykli pracy określoną przez producenta żurawia
865. Dopuszczalne obciążenie robocze DOR zawiesia linowego dwucięgnowego:
- zwiększa się wraz z kątem rozwarcia zawiesia
- nie jest zależne od kąta rozwarcia zawiesia
- zmniejsza się wraz z kątem rozwarcia zawiesia
- zależy od ciężaru właściwego materiału jaki jest podnoszony przy użyciu zawiesia
866. Dopuszczalne obciążenie robocze DOR zawiesia linowego dwucięgnowego:
- zwiększa się wraz z kątem rozwarcia zawiesia
- nie jest zależne od kąta rozwarcia zawiesia
- zmniejsza się wraz z kątem rozwarcia zawiesia
- zależy od ciężaru właściwego materiału jaki jest podnoszony przy użyciu zawiesia
867. DOR zawiesia pasowego można określić:
- testując wytrzymałość ciężarem próbnym
- mierząc grubość pasa
- sprawdzając informację na identyfikatorze/etykiecie
- wszystkie odpowiedzi są poprawne
868. Instrukcja eksploatacji dotycząca przemieszczania na haku żurawia pojemnika na beton z podestem dla operatora lub kosza do przemieszczania osób, jest uzgadniana:
- dla dowolnego żurawia i kosza
- dla dowolnych warunków w których zachodzi konieczność pracy na wysokości
- żadna z odpowiedzi nie jest prawidłowa
- tylko dla terenu budowy
869. Jak nazywa się przedstawiona na rysunku deformacja liny nośnej, dyskwalifikująca ją z dalszej pracy?
- zniekształcenie w kształcie korkociągu
- zniekształcenie w kształcie koszyka
- zniekształcenie na skutek spłaszczenia
- rozwarstwienie się rdzenia wewnętrznego
870. Jaki maksymalny dopuszczalny ładunek można podnieść za pomocą układu żuraw-zawiesie, przy następujących danych: udźwig żurawia 10 t, trawersa transportowa o DOR 10 t, masa własna trawersy 1 t?
- 20 t
- 9 t
- 10 t
- 15 t
871. Ile wynosi maksymalny dopuszczalny kąt rozwarcia cięgien zawiesia łańcuchowego dwucięgnowego podczas podnoszenia nim ciężaru?
- 60°
- brak jakiegokolwiek ograniczenia kątowego
- 90°
- 120°
872. Jaki maksymalny dopuszczalny ładunek można podnieść za pomocą układu żuraw-zawiesie, przy następujących danych: udźwig żurawia 15 t, trawersa transportowa o DOR 10 t, masa własna trawersy 1 t?
- 20 t
- 15 t
- 10 t
- 1 t
873. Jaki maksymalny dopuszczalny ładunek można podnieść za pomocą układu żuraw-zawiesie, przy następujących danych: udźwig żurawia 20 t, zawiesie łańcuchowe dwucięgnowe o DOR 11,2/8 t pracujące przy kącie odchylenia cięgien od pionu (β) wynoszącym 60˚?
- 20 t
- 11,2 t
- 8 t
- 4 t
874. Jaki maksymalny dopuszczalny ładunek można podnieść za pomocą układu żuraw-zawiesie, przy następujących danych: udźwig żurawia 20 t, zawiesie łańcuchowe dwucięgnowe o DOR 21,2/15 t pracujące przy kącie odchylenia cięgien od pionu (β) wynoszącym 50˚?
- 20 t
- 11,1 t
- 5 t
- 15 t
875. Jaki maksymalny dopuszczalny ładunek można podnieść za pomocą układu żuraw-zawiesie, przy następujących danych: udźwig żurawia 25 t, zawiesie łańcuchowe dwucięgnowe o DOR 14/10 t pracujące przy kącie odchylenia cięgien od pionu (β) wynoszącym 65˚?
- 14 t
- 10 t
- 25 t
- każda z powyższych odpowiedzi jest nieprawidłowa
876. Jaki maksymalny dopuszczalny ładunek można podnieść za pomocą układu żuraw-zawiesie, przy następujących danych: udźwig żurawia 5 t, trawersa transportowa o DOR 8 t, masa własna trawersy 2 t?
- 3 t
- 8 t
- 5 t
- 6 t
877. Kąty a i β w odniesieniu do zawiesi:
- są sobie zawsze równe
- kąt α stanowi połowę kąta β
- kąt β stanowi połowę kąta α
- wszystkie odpowedzi są niepoprawne
878. Które z poniższych uszkodzeń dyskwalifikują zawiesie linowe z dalszej eksploatacji?
- pęknięcie splotki w linie
- miejscowe zmniejszenie średnicy na skutek przerwania rdzenia liny
- deformacja w kształcie koszyka
- wszystkie odpowiedzi są poprawne
879. Które z poniższych warunków musi bezwzględnie spełniać zawiesie do przemieszczania ładunku:
- udźwig zawiesia nie może być mniejszy od masy podnoszonego ładunku
- długość zawiesia musi zapewnić aby kąt rozwarcia zawiesia nie był większy niż 120°
- zawiesie musi posiadać czytelną cechę znamionową
- wszystkie odpowiedzi są prawidłowe
880. Które z przedstawionego osprzętu do podnoszenia można wykorzystać do podnoszenia arkusza blachy w pozycji poziomej:
- RYS. 1 i RYS. 2
- RYS. 2 i RYS. 3
- RYS. 3 i RYS 4
- RYS. 4 i RYS 1
881. Które z przedstawionego osprzętu do podnoszenia można wykorzystać do podnoszenia blach w pozycji poziomej:
- RYS. 1
- RYS. 2
- RYS. 3
- RYS. 4
882. Które z przedstawionego osprzętu do podnoszenia można wykorzystać do podnoszenia dwuteowych dźwigarów stalowych:
- RYS. 1
- RYS. 2
- RYS. 3
- RYS. 4
883. Które z przedstawionego osprzętu do podnoszenia można wykorzystać do podnoszenia ładunków składowanych na paletach transportowych:
- RYS. 1
- RYS. 2
- RYS. 3
- RYS. 4
884. Które z przedstawionego osprzętu do podnoszenia można wykorzystać do podnoszenia prętów stalowych o znacznej długości:
- RYS. 1
- RYS. 2
- RYS. 3
- RYS. 4
885. Które z przedstawionych zawiesi specjalnych można wykorzystać do podnoszenia blach w pozycji pionowej:
- RYS. 1
- RYS. 2
- RYS. 3
- RYS. 4
886. Ładunek na haku dwurożnym należy zawiesić:
- tak, aby oba rogi były jednakowo obciążone
- tak, aby różnica w obciążeniu poszczególnych rogów haka nie była większa niż 30 %
- wyłącznie przy użyciu specjalnego zawiesia do haka dwurożnego
- tylko przy użyciu zawiesi łańcuchowych
887. Maksymalna masa podnoszonego ładunku przy kącie β wynoszącym 40˚ nie może przekraczać:
- 12000 kg
- 9000 kg
- 6000 kg
- wszystkie odpowiedzi są niepoprawne
888. Maksymalna masa podnoszonego ładunku przy kącie β wynoszącym 50˚ nie może przekraczać:
- 12000 kg
- 9000 kg
- 6000 kg
- wszystkie odpowiedzi są niepoprawne
889. Maksymalna masa podnoszonego ładunku przy kącie β wynoszącym 55˚ nie może przekraczać:
- 12000 kg
- 9000 kg
- 6000 kg
- wszystkie odpowiedzi są niepoprawne
890. Maksymalny ciężar jaki możemy podnieść urządzeniem dźwignicowym o udźwigu 24 t przy użyciu przedstawionej trawersy wynosi:
- 24,0 t
- 23,8 t
- 22,8 t
- 25,2 t
891. Maksymalny dopuszczalny kąt pomiędzy zawiesiami wielocięgnowymi wynosi:
- 60˚
- 90˚
- 120˚
- 150˚
892. Maksymalna masa podnoszonego ładunku przy kącie β wynoszącym 65˚ nie może przekraczać:
- 12000 kg
- 9000 kg
- 6000 kg
- nie wolno podnosić
893. Maksymalny dopuszczalny kąt wierzchołkowy a stosowany w zawiesiu może wynieść:
- 120°
- 100°
- nie ma ograniczeń, ponieważ wystarczy zmniejszać dopuszczalne obciążenie robocze zawiesia
- 90°
894. Maksymalny DOR przedstawionego zawiesia przy kącie wierzchołkowym β 45˚ wynosi:
- 8,4 t
- 8,0 t
- 6,0 t
- 4,0 t
895. Maksymalny DOR przedstawionego zawiesia przy kącie wierzchołkowym β 60˚ wynosi:
- 10,0 t
- 8,4 t
- 6,0 t
- 4,0 t
896. Maksymalny DOR przedstawionego zawiesia wynosi:
- 8,4 t
- 6,0 t
- 10,0 t
- 8,0 t
897. Maksymalny kąt β w zawiesiu może wynieść:
- 120°
- 60°
- uwzględnia się wyłącznie kąt α
- nie ma ograniczeń, ponieważ wystarczy zmniejszać dopuszczalne obciążenie robocze zawiesia
898. Minimalny udźwig urządzenia dźwignicowego podnoszącego ładunek o masie 24 t przy użyciu przedstawionej trawersy wynosi:
- 20,0 t
- 25,2 t
- 30,0 t
- wszystkie odpowiedzi są niepoprawne
899. Na redukcję DOR zawiesia wielocięgnowego wpływa:
- Ilość wykorzystanych cięgien
- dodatkowe obostrzenia eksploatacyjne zawarte w instrukcji zawiesia
- kąt rozwarcia cięgien
- wszystkie odpowiedzi są poprawne
900. Na rysunku pokazana jest:
- tabliczka znamionowa zawiesia łańcuchowego dwucięgnowego
- tabliczka znamionowa zawiesia łańcuchowego, o udźwigu maksymalnym 2 500 kg
- tabliczka znamionowa zawiesia łańcuchowego, o udźwigu maksymalnym 3 550 kg
- odpowiedź a i c jest prawidłowa
901. Na zdjęciu poniżej symbol a oznacza:
- kąt rozwarcia cięgien zawiesia
- maksymalny kąt wierzchołkowy
- wartość określającą udźwig zawiesia
- DOR zawiesia
902. Na zdjęciu poniżej symbol β oznacza:
- długość zawiesia
- kąt odchylenia cięgien od pionu
- zawiesie łańcuchowe dwucięgnowe
- wszystkie odpowiedzi są nieprawidłowe
903. O ile wytwórca nie określi inaczej dopuszczalna ilość pęknięć drutów w zawiesiu linowym wynosi:
- 1% drutów w splotce na długości 6 średnic i 10% na długości 30 średnic
- 5 drutów w splotce na długości 6 średnic i 10 na długości 30 średnic
- 10 % splotek
- wszystkie odpowiedzi są niepoprawne
904. O ile wytwórca nie określi inaczej dopuszczalne kryteria zużycia haków przy zawiesiach to:
- rozwarcie o 5% i wytarcie gardzieli o 10%
- rozwarcie o 20% i wytarcie gardzieli o 10%
- rozwarcie i wytarcie gardzieli o 1%
- wymiary haka nie zmieniają się w trakcie eksploatacji
905. Podaj DOR zawiesia koniecznego do podniesienia ładunku o masie 10 ton, jeżeli kąt rozwarcia cięgien zawiesia wynosi 110 stopni?
- 5 ton
- 10 ton
- 20 ton
- 15 ton
906. Podnosząc elementy posiadające ostre krawędzie za pomocą zawiesia pasowego należy:
- stosować specjalne przekładki zabezpieczające zawiesie przez ostrymi krawędziami
- nie wolno stosować zawiesi pasowych
- należy podwójnie opasać ładunek, aby nie doszło do przetarcia pasa
- stosować tylko zawiesia pasowe poliestrowe
907. Poniższy rysunek przedstawia cechę:
- zawiesia łańcuchowego
- zawiesia linowego
- zawiesia pasowego
- trawersy specjalistycznej
908. Poniższy rysunek przedstawia cechę:
- zawiesia łańcuchowego
- zawiesia linowego
- zawiesia pasowego
- trawersy specjalistycznej
909. Poniższy rysunek przedstawia cechę:
- zawiesia łańcuchowego
- zawiesia linowego
- zawiesia pasowego
- trawersy specjalistycznej
910. Poniższy rysunek przedstawia:
- osprzęt wymienny montowany do głowic urządzeń dźwignicowych
- element układu podnoszenia wózków jezdniowych podnośnikowych
- zawiesie specjalistyczne do transportu ładunków umieszczonych na paletach transportowych
- wszystkie odpowiedzi są niepoprawne
911. Poniższy rysunek przedstawia:
- zawiesie specjalistyczne do transportu rur stalowych i betonowych
- chwytak kleszczowy do przeładunku złomu
- zawiesie specjalistyczne do transportu ładunków umieszczonych na paletach transportowych
- element kleszczy szynowych
912. Poniższy rysunek przedstawia:
- cechę zawiesia łańcuchowego czterocięgnowego
- cechę zawiesia linowego o długości cięgien 10 m
- cechę zawiesia specjalnego
- wszystkie odpowiedzi są poprawne
913. Praca z zawiesiem bez tabliczki znamionowej:
- jest zabroniona
- jest dopuszczalna pod warunkiem zachowania szczególnej ostrożności
- jest dopuszczalna pod warunkiem określenia udźwigu zawiesi na podstawie nr haka
- jest dopuszczalna za zgodą konserwatora
914. Przed rozpoczęciem pracy obsługujący ma obowiązek:
- w oparciu o masę podnoszonych ładunków dobrać zawiesie z odpowiednim DOR
- w oparciu o rodzaj podnoszonych ładunków dobrać zawiesie o właściwej budowie
- dokonać oceny stanu technicznego zawiesia pod kątem jego zużycia
- wszystkie odpowiedzi są prawidłowe
915. Przedstawione na rysunku zawiesie specjalistyczne służy do:
- podnoszenia arkuszy blach stalowych
- podnoszenia prętów stalowych
- podnoszenia elementów betonowych
- podnoszenia elementów z tworzywa sztucznego
916. Przedstawione na rysunku zawiesie specjalistyczne służy do:
- podnoszenia elementów betonowych
- podnoszenia elementów z tworzywa sztucznego
- podnoszenia arkuszy blach stalowych
- podnoszenia prętów stalowych
917. Skrót DOR oznacza:
- dopuszczalne obciążenie robocze
- dopuszczalne obciążenie robocze cięgna przy kącie wierzchołkowym alfa 120°
- dozwolona obsługa ręczna
- dokumentacja techniczno-ruchowa
918. Trawersa służy do:
- podnoszenia ładunków specjalnych np. arkuszy blachy
- podnoszenia długich ładunków, przy których użycie zwykłych zawiesi jest niemożliwe lub utrudnione
- podnoszenia ładunków przekraczających udźwig nominalny urządzenia
- wszystkie odpowiedzi są poprawne
919. Udźwig maksymalny żurawia przy zalinowaniu zblocza na cztery pasma liny wynosi 8t. Po zalinowaniu zblocza na dwa pasma liny udźwig maksymalny będzie wynosił:
- 16 t
- nie zmieni się
- 4 t
- żadna odpowiedź nie jest prawidłowa
920. Używanie zawiesi w temperaturze powyżej 100˚C jest:
- dopuszczalne ale w krótkim czasie
- jest dopuszczalne o ile zezwala na to instrukcja zawiesia
- zabronione
- dopuszczalne tylko przy stosowaniu zawiesi łańcuchowych
921. W oparciu o przedstawiony obraz wskaż właściwą odpowiedź: Drut splotki jest oznaczona nr
- 1
- 2
- 4
- 5
922. W oparciu o przedstawiony obraz wskaż właściwą odpowiedź: Rdzeń liny jest oznaczona nr
- 1
- 2
- 3
- 4
923. W oparciu o przedstawiony obraz wskaż właściwą odpowiedź: Splotka liny jest oznaczona nr
- 1
- 2
- 3
- 4
924. W oparciu o przedstawiony rysunek określ maksymalną masę ładunku jaką można podnieść przy pomocy zawiesia 4 cięgnowego:
- 6 t
- 8,4 t
- 12 t
- wszystkie odpowiedzi są niepoprawne
925. W oparciu o przedstawiony rysunek określ maksymalną masę ładunku jaką można podnieść przy pomocy zawiesia 4 cięgnowego:
- 6 t
- 8,4 t
- 12 t
- odpowiedź a i b jest prawidłowa.
926. W oparciu o przedstawiony rysunek określ maksymalną masę ładunku jaką można podnieść przy pomocy zawiesia 4 cięgnowego:
- 7 t
- 8,4 t
- 12 t
- wszystkie odpowiedzi są niepoprawne
927. W oparciu o przedstawiony rysunek wskaż poprawny sposób zamocowania haka:
- A
- B
- C
- D
928. W oparciu o przedstawiony rysunek wskaż wartość A (DOR w oparciu o sposób zawieszenia ) dla zawiesia pasowego:
- 1
- 1,4
- 0,8
- 2
929. W oparciu o przedstawiony rysunek wskaż wartość A (kat a) dla zawiesia dwu cięgnowego:
- 100°
- 90°
- 70°
- 50°
930. W oparciu o przedstawiony rysunek wskaż wartość A dla zawiesia dwucięgnowego:
- 120%
- 90%
- 70%
- 10%
931. W oparciu o przedstawiony rysunek wskaż wartość A dla zawiesia dwucięgnowego:
- 120%
- 90%
- 70%
- 50%
932. W oparciu o przedstawiony rysunek wskaż wartość A dla zawiesia linowego:
- 6,0 t
- 5,0 t
- 7.0 t
- 3,5 t
933. W oparciu o przedstawiony rysunek wskaż wartość A dla zawiesia linowego:
- 2,0 t
- 5,0 t
- 7,0 t
- 10,0 t
934. W przypadku podnoszenia przez żuraw kosza do przemieszczania osób, całkowita masa podnoszonego ładunku (z uwzględnieniem masy kosza, jego udźwigu nominalnego, zawiesi) nie powinna przekraczać:
- 1/3 udźwigu żurawia przy planowanych warunkach pracy
- 1/2 udźwigu żurawia przy planowanych warunkach pracy
- 2/5 udźwigu żurawia przy planowanych warunkach pracy
- 2/3 udźwigu żurawia przy planowanych warunkach pracy
935. W przypadku przemieszczania na haku żurawia pojemnika na beton z podestem dla operatora, całkowita masa podnoszonego ładunku (z uwzględnieniem masy kosza, jego udźwigu nominalnego, zawiesi) nie powinna przekraczać:
- 1/3 udźwigu żurawia przy planowanych warunkach pracy
- 1/2 udźwigu żurawia przy planowanych warunkach pracy
- 2/5 udźwigu żurawia przy planowanych warunkach pracy
- 2/3 udźwigu żurawia przy planowanych warunkach pracy
936. Wartość DOR zawiesia wielocięgnowego jest:
- wartością zależną od udźwigu dźwignicy
- wartością zmienną i zależy od kąta pomiędzy cięgnami zawiesia
- zależna od masy transportowanego ładunku
- wartością stałą
937. Wraz ze wzrostem kąta wierzchołkowego a:
- dopuszczalne obciążenie robocze rośnie
- dopuszczalne obciążenie robocze maleje
- dopuszczalne obciążenie robocze pozostaje bez zmian, ponieważ kąt wpływa tylko na udźwig dźwignicy
- kąt wierzchołkowy ma tylko znaczenie przy wartości alfa=120 stopni
938. Wskaż brakującą wartość współczynnika korekcyjnego dla zawiesia wielocięgnowego w tabeli poniżej:
- 0,75
- 0,8
- 0,85
- 0,7
939. Wskaż, który ze sposobów podwieszenia ładunku przy pomocy zawiesia linowego jest prawidłowy:
- Rys A
- Rys B
- Obydwa sposoby są poprawne
- Obydwa sposoby są niepoprawne
940. Wskaż, który ze sposobów podwieszenia ładunku jest prawidłowy:
- Rys A
- Rys B
- Obydwa sposoby są poprawne
- Obydwa sposoby są niepoprawne
941. Wskaż, który ze sposobów podwieszenia ładunku przy pomocy zawiesia linowego jest nieprawidłowy:
- Rys A
- Rys B
- Rys C
- Rys D
942. Wskaż, który ze sposobów zamocowania haka jest nieprawidłowy:
- Rys A, B, C
- Rys A, B, D
- Rys A, C, D
- Rys A, B, C, D
943. Wskaż, który ze sposobów zamocowania haka jest prawidłowy:
- Rys A
- Rys B
- Rys C
- Rys D
944. Wybór rodzaju zastosowanego zawiesia zależy od:
- rodzaju przenoszonego materiału
- dostępności zawiesia i odległości pomiędzy miejscem pracy, a miejscem jego składowania
- warunków środowiskowych miejsca pracy zawiesia np. temperatury, promieniowania UV, wilgotności powietrza
- odpowiedź a i c jest prawidłowa
945. Za prawidłowy dobór zawiesia odpowiada:
- hakowy
- obsługujący (dotyczy sytuacji, gdy obsługujący jest odpowiedzialny za podchaczenie ładunku)
- zakładowe służby BHP
- odpowiedź a i b jest prawidłowa
946. Zawiesia łańcuchowe:
- mogą być zakończone wyłącznie hakiem
- mogą mieć inne zakończenia niż hak, np. szeklę
- mogą być stosowane w każdej temperaturze otoczenia
- nie wymagają konserwacji
947. Zawiesia możemy podzielić:
- ze względu na materiał, z którego zostały wykonane
- ze względu na ilość cięgien nośnych
- ze względu na rodzaj cięgien
- wszystkie odpowiedzi są poprawne
948. Zawiesia podlegają przeglądom okresowym w terminach:
- co 30 dni
- co 2 miesiące
- nie podlegają przeglądom okresowym
- zgodnych z zapisami instrukcji eksploatacji zawiesi
949. Zawiesie to:
- element umożliwiający transportowanie ładunku
- element umieszczony pomiędzy dźwignicą a ładunkiem
- element, którego masę należy uwzględnić przy podnoszeniu ładunku
- wszystkie odpowiedzi są poprawne
