Pytania egzaminacyjne UDT w formie testów z odpowiedziami dla wózków jezdniowych podnośnikowych ze zmiennym wysięgiem tzw. ładowarek teleskopowych manitou oraz wózków, w których operator jest podnoszony wraz z ładunkiem (276 pytań). Uzyskane kwalifikacje UDT będa również uprawniały do obsługi zwykłych wózków widłowych oraz wózków unoszących sterowanych z poziomu roboczego.
Jeśli chcesz samodzielnie przygotować się do egzaminu UDT, to posiadamy w sprzedaży autorską platformę szkoleniową, w której lektor omawia wszystkie pytania egzaminacyjne oraz uzasadnia prawidłową odpowiedź. Platforma dostępna jest 24H, a lektora można przesłuchiwać wielokrotnie. Sprawdź nasze szkolenia udt online!
1. Urządzenie techniczne objęte dozorem technicznym może być eksploatowane na podstawie:
- zezwolenia ustnego lub pisemnego wydanego przez upoważnionego konserwatora
- ważnej decyzji zezwalającej na eksploatację wydanej przez organ właściwej jednostki dozoru technicznego
- oznaczenia CE zamieszczonego na urządzeniu
- deklaracji zgodności wystawionej przez wytwórcę
2. Które z wymienionych czynności nie należą do zakresu obowiązków obsługującego UTB:
- wykonywanie niewielkich napraw urządzenia w ramach posiadanego wykształcenia i umiejętności
- przestrzeganie instrukcji eksploatacji w zakresie obsługi UTB
- zapoznanie się z planem pracy i wielkością przenoszonych ładunków
- wszystkie odpowiedzi są poprawne
3. Terminy przeglądów konserwacyjnych urządzeń technicznych:
- są zawarte w instrukcji eksploatacji urządzenia
- określa konserwator urządzenia
- określa w protokole inspektor wykonujący badanie
- wszystkie odpowiedzi są poprawne
4. Dozorem technicznym nazywamy:
- określone ustawą działania zmierzające do zapewnienia bezpiecznego funkcjonowania urządzeń technicznych i urządzeń do odzyskiwania par paliwa oraz działania zmierzające do zapewnienia bezpieczeństwa publicznego w tych obszarach
- instytucje kontrolujące stan techniczny urządzeń
- Urząd Dozoru Technicznego
- UDT, WDT, TDT
5. Dozór techniczny nad urządzeniami technicznymi wykonuje:
- Urząd Dozoru Technicznego oraz specjalistyczne jednostki dozoru technicznego
- Urząd Dozoru Technicznego oraz upoważnione przez UDT organizacje
- Urząd Dozoru Technicznego i zagraniczne jednostki dozoru technicznego
- wszystkie odpowiedzi są poprawne
6. Zmiana parametrów technicznych lub zmiana konstrukcji urządzenia technicznego traktowana jest jako:
- modernizacja urządzenia technicznego
- naprawa urządzenia technicznego
- usuwanie usterek i innych nieprawidłowości urządzenia technicznego
- wytworzenie nowego urządzenia
7. Uzgodnioną naprawę lub modernizację urządzeń technicznych może wykonać:
- naprawiający lub modernizujący, który posiada uprawnienie wydane przez organ właściwej jednostki dozoru technicznego
- eksploatujący urządzenie techniczne posiadający odpowiednie doświadczenie w zakresie napraw lub modernizacji
- konserwator posiadający odpowiednie doświadczenie w zakresie napraw lub modernizacji
- w niewielkim zakresie kompetentny operator
8. Ustawa o dozorze technicznym określa następujące formy dozoru technicznego:
- całkowita, częściowa, ograniczona
- pełna, ograniczona, uproszczona
- pełna, cykliczna, sporadyczna
- UDT, WDT, TDT
9. Decyzję zezwalającą na eksploatację urządzenia technicznego wydaje:
- konserwator po wykonaniu przeglądu z wynikiem pozytywnym
- organ właściwej jednostki dozoru technicznego lub eksploatujący urządzenie techniczne z upoważnienia organu właściwej jednostki dozoru technicznego
- organ właściwej jednostki dozoru technicznego lub organ administracji publicznej z upoważnienia organu właściwej jednostki dozoru technicznego
- organ właściwej jednostki dozoru technicznego
10. Obsługujący urządzenie techniczne może podjąć pracę gdy:
- urządzenie posiada ważną decyzję zezwalającą na eksploatację jeżeli wymagają tego odpowiednie przepisy
- posiada zaświadczenie kwalifikacyjne odpowiedniej kategorii
- urządzenie posiada aktualny pozytywny wynik przeglądu konserwacyjnego
- wszystkie powyższe warunki muszą być spełnione jednocześnie
11. Obsługujący urządzenie techniczne może podjąć pracę gdy:
- urządzenie posiada aktualny wpis w dzienniku konserwacji potwierdzający sprawność urządzenia
- przeszedł odpowiednie szkolenie stanowiskowe
- urządzenie posiada ważną decyzję zezwalającą na eksploatację
- wszystkie powyższe warunki muszą być spełnione jednocześnie
12. W przypadku nieprzestrzegania przez eksploatującego przepisów o dozorze technicznym eksploatujący:
- otrzymuje pisemne upomnienie
- otrzymuje zalecenia pokontrolne
- podlega grzywnie lub karze ograniczenia wolności
- odpowiedź a i b jest prawidłowa
13. W przypadku stwierdzenia zagrożenia dla życia lub zdrowia ludzkiego oraz mienia i środowiska inspektor:
- wydaje decyzję wstrzymującą eksploatację urządzenia technicznego
- wystawia mandat karny
- pisemnie poucza eksploatującego
- wszystkie odpowiedzi są poprawne
14. W przypadku niebezpiecznego uszkodzenia urządzenia technicznego lub nieszczęśliwego wypadku eksploatujący:
- niezwłocznie powiadamia UDT o zaistniałym zdarzeniu
- powiadamia producenta urządzenia o przyczynach powstałego zdarzenia
- niezwłocznie dokonuje naprawy urządzenia i przekazuje do dalszej eksploatacji
- zgłasza urządzenie do wykonania naprawy
15. Zaświadczenie kwalifikacyjne do obsługi może zostać cofnięte przez:
- organ właściwej jednostki dozoru technicznego
- eksploatującego urządzenie techniczne
- inspektora bhp
- Państwową Inspekcję Pracy
16. Urządzenia techniczne nieobjęte dozorem technicznym to:
- żurawie o udźwigu do 3,2 t
- wciągniki i wciągarki oraz suwnice
- wózki jezdniowe podnośnikowe oraz podesty ruchome
- zawiesia transportowe
17. Urządzenia techniczne objęte dozorem technicznym to:
- przenośniki kabinowe i krzesełkowe
- układnice magazynowe oraz urządzenia dla osób niepełnosprawnych
- wyciągi towarowe i wyciągi statków
- wszystkie odpowiedzi są poprawne
18. Niebezpieczne uszkodzenie urządzenia technicznego to:
- każda usterka UTB
- nieprzewidziane uszkodzenie, w wyniku którego urządzenie nadaje się do częściowej eksploatacji
- nieprzewidziane uszkodzenie, w wyniku którego nadaje się do eksploatacji tylko przy obniżonych parametrach
- nieprzewidziane uszkodzenie, w wyniku którego urządzenie nie nadaje się do eksploatacji lub jego dalsza eksploatacja stanowi zagrożenie
19. Nieszczęśliwy wypadek to:
- nagłe zdarzenie, które spowodowało obrażenia ciała lub śmierć
- nagłe zdarzenie, które spowodowało przerwę w pracy
- nagłe zdarzenie, które skutkuje wyłączeniem urządzenia technicznego z eksploatacji
- każda usterka UTB spowodowana przyczyną losową
20. Podnoszenie i przenoszenie osób przez urządzenie techniczne przeznaczone wyłącznie do transportu ładunków wymaga:
- uzgodnienia z organem właściwej jednostki dozoru technicznego
- uzgodnienia z przełożonym
- uzgodnienia ze służbą BHP
- jest możliwe przy zachowaniu szczególnej ostrożności i pod nadzorem inspektora
21. Odpowiedzialnym za zapewnienie właściwej obsługi i konserwacji urządzenia technicznego jest:
- eksploatujący urządzenie techniczne
- organ właściwej jednostki dozoru technicznego
- Państwowa Inspekcja Pracy
- inspektor UDT
22. Wymagane przepisami prawa przeglądy konserwacyjne wykonuje:
- osoba posiadająca zaświadczenie kwalifikacyjne do konserwacji
- pracownik autoryzowanego serwisu producenta urządzenia (pod warunkiem posiadania zaświadczeń kwalifikacyjnych do konserwacji)
- zakładowe służby utrzymania ruchu
- odpowiedź a i b jest prawidłowa
23. Dziennik konserwacji urządzenia technicznego prowadzi:
- inspektor UDT w księdze rewizyjnej urządzenia
- uprawniony operator
- wyznaczony pracownik eksploatującego
- konserwator urządzenia technicznego
24. Badania odbiorcze przeprowadza się dla urządzeń technicznych:
- w terminach zgodnych z zapisami rozporządzenia w sprawie warunków technicznych dozoru technicznego
- przed wydaniem pierwszej decyzji zezwalającej na eksploatacje
- po naprawie urządzenia technicznego
- po każdej zmianie eksploatującego
25. Badania okresowe przeprowadza się dla urządzeń technicznych objętych dozorem:
- ograniczonym
- pełnym
- uproszczonym
- wszystkie odpowiedzi są poprawne
26. Nieobecność konserwującego na badaniu urządzenia technicznego wymaga min.:
- wcześniejszego uzgodnienia tego faktu z organem właściwej jednostki dozoru technicznego
- przedstawienia pisemnego usprawiedliwienia nieobecności konserwatora
- przedstawienia zwolnienia lekarskiego potwierdzającego niezdolność konserwatora do pracy
- wszystkie odpowiedzi są prawidłowe
27. Kandydat na obsługującego urządzenie techniczne musi:
- mieć ukończone 18 lat
- posiadać przynajmniej wykształcenie zawodowe
- posiadać przynajmniej 1 rok stażu pracy
- wszystkie odpowiedzi są prawidłowe
28. Obsługujący urządzenie techniczne ma obowiązek przerwać pracę gdy:
- jego stan fizyczny i psychiczny w dniu pracy jest nieodpowiedni
- stwierdzi, że dalsza praca urządzeniem stwarza zagrożenie
- urządzenie jest niesprawne
- wszystkie odpowiedzi są prawidłowe
29. Terminy przeglądów konserwacyjnych urządzenia mogą być określone:
- w instrukcji eksploatacji urządzenia
- w ustawie o dozorze technicznym
- w rozporządzeniu określającym warunki techniczne dozoru technicznego
- odpowiedź a i c jest prawidłowa
30. Terminy badań okresowych i doraźnych kontrolnych UTB określone są:
- w ustawie o dozorze technicznym
- w rozporządzeniu określającym warunki techniczne dozoru technicznego
- w dokumentacji konstrukcyjnej urządzenia
- w dzienniku konserwacji
31. Obowiązkiem obsługującego urządzenie techniczne jest:
- przestrzeganie instrukcji eksploatacji w zakresie obsługi urządzenia
- przestrzeganie instrukcji eksploatacji w zakresie konserwacji urządzenia
- wykonywanie napraw urządzenia
- wszystkie odpowiedzi są poprawne
32. Urządzenie techniczne można eksploatować na podstawie:
- aktualnej naklejki organu właściwej jednostki dozoru technicznego określającej termin kolejnego badania
- aktualnego wpisu konserwatora urządzenia w dzienniku konserwacji
- ważnej decyzji zezwalającej na eksploatację wydanej przez organ właściwej jednostki dozoru technicznego
- pozytywnego protokołu z badania okresowego lub odbiorczego
33. Po wykonanych czynnościach przy urządzeniu technicznym inspektor sporządza:
- instrukcję eksploatacji urządzenia
- decyzję i protokół z wykonanych czynności
- deklarację zgodności CE
- wszystkie odpowiedzi są poprawne
34. Naprawę i modernizację urządzenia technicznego wykonuje:
- operator w ramach posiadanych umiejętności
- konserwator
- zakład uprawniony
- eksploatujący
35. Bezpośrednio odpowiedzialnym za bezpieczną eksploatacje urządzenia technicznego jest:
- obsługujący urządzenie
- producent urządzenia
- zakładowy inspektor BHP
- inspektor UDT
36. Informacje dotyczące zasad bezpiecznej obsługi urządzenia są zawarte w:
- instrukcji eksploatacji urządzenia
- ustawie o dozorze technicznym
- dzienniku konserwacji
- protokole z badania wykonanego przez inspektora UDT
37. W ramach czynności przed rozpoczęciem pracy obsługujący:
- sprawdza stan techniczny urządzenia poprzez oględziny
- wykonuje próbę statyczną i dynamiczną
- wykonuje próby ruchowe urządzenia
- odpowiedź a i c jest prawidłowa
38. Zaświadczenia kwalifikacyjne do obsługi urządzeń technicznych podlegających dozorowi technicznemu wydaje:
- firma szkoleniową po pozytywnym wyniku egzaminu sprawdzającego
- inspektor BHP na podstawie zaświadczenia o ukończeniu kursu
- pracodawca na podstawie zdanego egzaminu
- organ właściwej jednostki dozoru technicznego
39. Przeciążanie UTB w trakcie pracy:
- jest zabronione
- jest dopuszczalne
- jest dopuszczalne ale tylko do 125% udźwigu nominalnego
- jest dopuszczalne ale tylko do 110% udźwigu nominalnego
40. Badania doraźne eksploatacyjne wykonuje się m.in.:
- po każdym usunięciu usterki przez konserwatora
- po wymianie cięgien nośnych
- raz na rok
- po wypadku na urządzeniu
41. Obowiązki obsługującego określone są:
- w instrukcji eksploatacji urządzenia
- w dzienniku konserwacji
- w ustawie o dozorze technicznym
- wszystkie odpowiedzi są poprawne
42. Badania okresowe urządzenia technicznego są wykonywane przez:
- konserwatora posiadającego odpowiednie zaświadczenie kwalifikacyjne
- inspektora organu właściwej jednostki dozoru technicznego
- pracownika serwisu producenta
- operatora
43. Jednostką dozoru technicznego jest:
- Urząd Dozoru Technicznego
- Wojskowy Dozór techniczny
- Transportowy dozór Techniczny
- wszystkie odpowiedzi są prawidłowe
44. Zaświadczenia kwalifikacyjne uprawniające do obsługi urządzeń technicznych ważne są na terenie:
- Rzeczypospolitej Polskiej
- Unii Europejskiej
- nie mają określonego obszaru ważności
- krajów strefy Schengen
45. Obowiązek stosowania środków ochrony indywidualnej przez operatorów urządzeń technicznych wynika z:
- instrukcji eksploatacji producenta
- przepisów BHP
- przepisów wewnątrz zakładowych
- wszystkie odpowiedzi są poprawne
46. Zgodnie z rozporządzeniem Rady Ministrów w sprawie rodzajów urządzeń technicznych podlegających dozorowi technicznemu przepisom dozoru technicznego podlegają:
- dźwigi, żurawie, suwnice, wciągarki i wciągniki
- wózki jezdniowe podnośnikowe z mechanicznym napędem podnoszenia, podesty ruchome
- dźwignicę linotorowe, przenośniki kabinowe i krzesełkowe
- wszystkie odpowiedzi są poprawne
47. Instrukcja eksploatacji może nie zawierać:
- informacji o terminach i zakresie przeglądów konserwacyjnych UTB
- podstawowych parametrów i przeznaczenia UTB
- terminów badań technicznych wykonywanych przez jednostkę inspekcyjną
- informacji o sposobie obsługi urządzenia
48. Księga rewizyjna urządzenia musi zawierać:
- zbiór protokołów z badań wykonywanych przez jednostkę inspekcyjną
- dokument, w którym odnotowywane są przeglądy konserwacyjne
- treść aktualnych aktów prawnych
- wykaz uprawnionych operatorów
49. Decyzja wydana przez UDT:
- nie podlega odwołaniu
- może zostać zmieniona przez inspektora PIP
- podlega możliwości odwołania się przez eksploatującego
- każdą odpowiedź jest niepoprawna
50. Do egzaminu sprawdzającego kwalifikacje może przystąpić osobą, która:
- złożyła wniosek o sprawdzenie kwalifikacji
- ukończyła 18 lat
- nie ma przeciwwskazań zdrowotnych do obsługi urządzeń technicznych
- wszystkie odpowiedzi są poprawne
51. Po zakończonym badaniu technicznym z wynikiem pozytywnym inspektor UDT:
- przedłuża ważność świadectwa kwalifikacji operatora
- oznakowuję urządzenie naklejka, która jest zezwoleniem na użytkowanie urządzenia
- informuje użytkownika pisemnie w dzienniku konserwacji, że wyraża zgodę na eksploatację urządzenia
- sporządza protokół z wykonanych czynności i wydaje decyzję administracyjną zezwalającą na eksploatację
52. Zaświadczenia kwalifikacyjne:
- są ważne bezterminowo
- są terminowe z okresem ważności uzależnionym od ilości uzyskanych punktów na egzaminie
- są terminowe z okresem ważności zgodnym z zapisami rozporządzenia w sprawie trybu sprawdzenia kwalifikacji
- są ważne przez okres 15 lat
53. Dokonujący przeróbek urządzenia technicznego bez uzgodnienia z organem właściwej jednostki dozoru technicznego:
- podlega karze grzywny lub ograniczenia wolności
- podlega ukaraniu mandatem karnym
- nie podlega karze
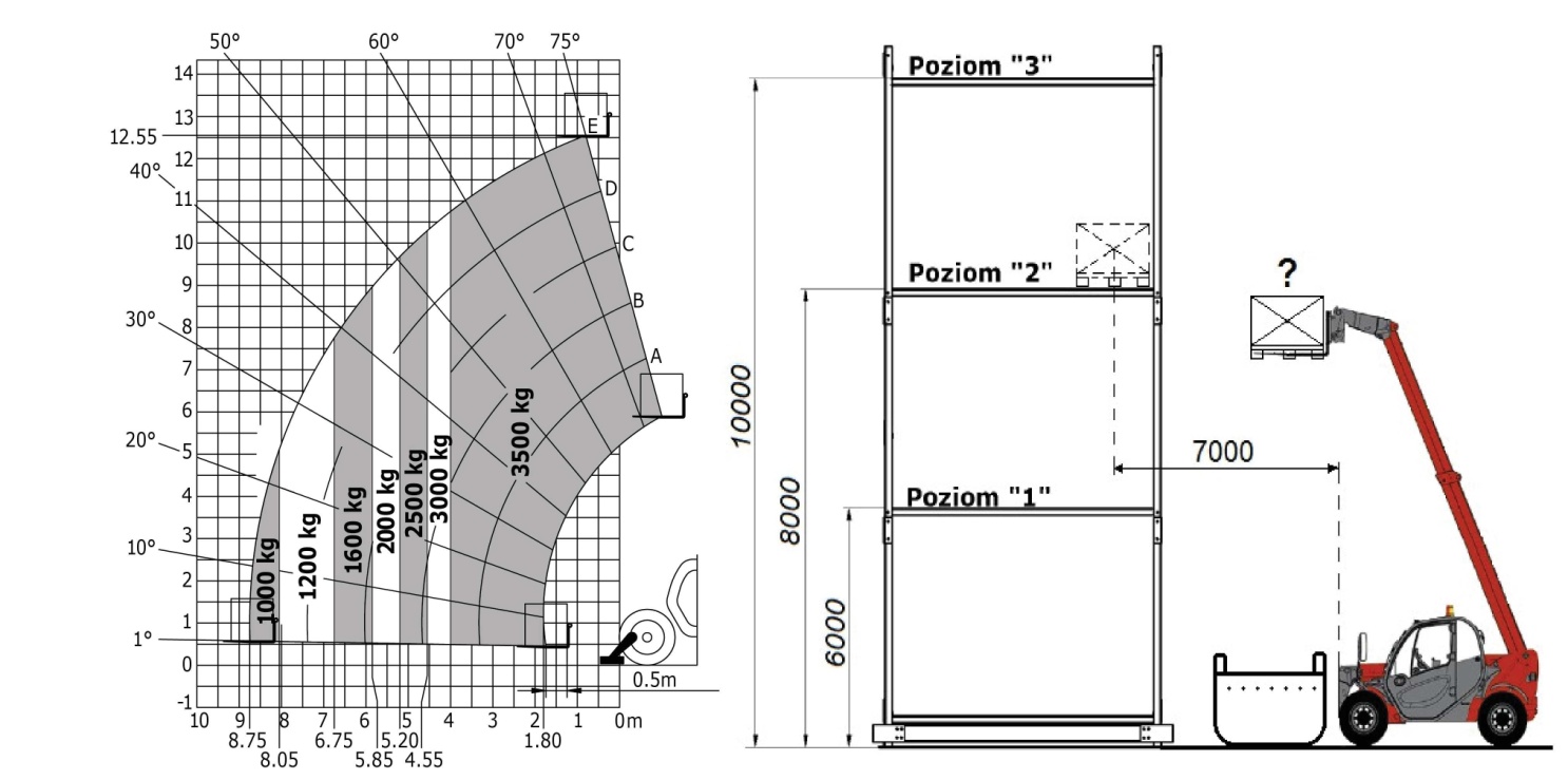
- wszystkie odpowiedzi są niepoprawne
54. Kto dopuszcza do eksploatacji urządzenie techniczne bez ważnej decyzji zezwalającej na eksploatację:
- podlega karze grzywny lub ograniczenia wolności
- nie podlega karze, jeżeli nie dojdzie do wypadku
- podlega wyłącznie karze grzywny
- podlega karze więzienia
55. Instrukcja eksploatacji to:
- zbiór informacji niezbędnych do bezpiecznej eksploatacji urządzenia udostępniany przez producenta
- zbiór zaleceń wydawanych przez Urząd Dozoru Technicznego
- instrukcja, która musi stworzyć użytkownik urządzenia
- wszystkie odpowiedzi są poprawne
56. Zaświadczeń kwalifikacyjnych do obsługi nie wymaga się:
- jeżeli urządzenie jest obsługiwane przez jego właściciela
- jeżeli wszystkie mechanizmy urządzenia mają napęd ręczny
- jeśli urządzenie jest wykorzystywane do celów prywatnych, nie zarobkowych
- od osób po 60 roku życia
57. Osoba posiadająca zaświadczenia kwalifikacyjne może obsługiwać:
- tylko urządzenia wymienione w zakresie uprawnienia
- wszystkie urządzenia podlegające dozorowi technicznemu
- inne urządzenia podlegające dozorowi technicznemu za zgoda pracodawcy
- wszystkie UTB o udźwigu do 3,2 t
58. Obowiązkiem obsługującego urządzenie techniczne jest:
- odmówić obsługi urządzenia, jeżeli wygasła decyzja zezwalającą na eksploatację tego urządzenia
- zawsze stosować się do poleceń przełożonego nakazujących eksploatację urządzenia
- stosować się do zapisów zawartych w instrukcji eksploatacji
- odpowiedź a i c jest prawidłowa
59. Zaświadczenia kwalifikacyjne do obsługi urządzeń technicznych są:
- ważne na terenie Unii Europejskiej
- ważne z dowodem tożsamości
- bezterminowe
- wszystkie odpowiedzi są poprawne
60. Obsługujący który jest świadkiem wypadku ma obowiązek:
- udzielić pomocy ofierze (lub ofiarom) wypadku
- zabezpieczyć miejsce zdarzenia
- powiadomić przełożonego
- wszystkie odpowiedzi są poprawne
61. Obsługującemu nie wolno:
- podnosić ładunków, których masy nie potrafi określić
- kontrolować stanu technicznego urządzenia
- stosować się do zapisów zawartych w instrukcji eksploatacji
- dokonywać oględzin zewnętrznych urządzenia
62. Formami dozoru technicznego są:
- dozór pełny, dozór uproszczony, dozór ograniczony
- badanie odbiorcze, badanie okresowe i badanie doraźne
- UDT, TDT, WDT
- wszystkie odpowiedzi są poprawne
63. Podnoszenie osób urządzeniami, które zostały zaprojektowane i wykonane wyłącznie do podnoszenia ładunków:
- jest dopuszczalne, po zapewnieniu odpowiedniego poziomu bezpieczeństwa
- jest zabronione
- jest dopuszczalne, po uzgodnieniu z organem właściwej jednostki dozoru technicznego szczegółowych warunków eksploatacji
- jest dopuszczalne jednorazowo na pisemne polecenie przełożonego
64. Podnoszenie ładunków za pomocą dwóch lub więcej UTB:
- jest dopuszczalne, pod warunkiem opracowania przez eksploatującego szczegółowych warunków eksploatacji, opisujących czynności organizacyjno-techniczne minimalizujące ryzyko
- jest zawsze dopuszczalne jeżeli masa ładunku nie przekracza sumy udźwigów wykorzystywanych urządzeń
- jest dopuszczalne jeżeli masa ładunku nie przekracza połowy udźwigu każdego z wykorzystanych urządzeń
- nie jest nigdy dopuszczalna
65. Przebywanie osób pod ładunkiem przenoszonym jest:
- zawsze niedozwolone
- dozwolone dla osób kontrolującej spód ładunku;
- dozwolone jeżeli współczynnik bezpieczeństwa cięgien wynosi nie mniej niż 5
- dozwolone jeżeli współczynnik bezpieczeństwa cięgien wynosi nie mniej niż 7
66. Przenoszenie ładunków nad osobami jest:
- dozwolone pod warunkiem uzyskania pisemnego zezwolenia od osoby kierującej transportem
- dozwolone, po zapewnieniu współczynników bezpieczeństwa dla cięgien i urządzeń chwytnych większych niż 10
- dozwolone pod warunkiem powiadomienia osób i wyposażeniu ich w środki ochrony indywidualnej
- wszystkie odpowiedzi są niepoprawne
67. Zaświadczenia kwalifikacyjne do obsługi urządzeń technicznych podlegających dozorowi technicznemu wydaje:
- właściciel urządzenia
- UDT, TDT, WDT
- PIP
- wszystkie odpowiedzi są niepoprawne
68. Komisja egzaminacyjna powiadamia osobę zainteresowaną o wyniku egzaminu:
- w ciągu 7 dni po egzaminie w formie pisemnej
- bezpośrednio po egzaminie
- w ciągu 14 dni po egzaminie w formie elektronicznej
- listem poleconym lub pocztą elektroniczną po upływie 30 dni roboczych od daty egzaminu
69. Dziennik konserwacji powinien być prowadzony:
- tylko w formie papierowej
- w formie elektronicznej lub papierowej
- tylko w formie elektronicznej
- przez obsługującego
70. Instrukcja stanowiskowa:
- jest zawsze dostarczana wraz z instrukcją obsługi przez producenta urządzenia
- stanowi niepisany zbiór zwyczajów przyjętych w zakładzie pracy
- jest wydawana przez pracodawcę i zawiera szczegółowe wskazówki dotyczące bhp na stanowisku prac
- nie dotyczy operatorów urządzeń mobilnych
71. Po upływie terminu ważności zaświadczenia kwalifikacyjnego do obsługi urządzenia obsługujący:
- może obsługiwać UTB o ile kontynuuje pracę u tego samego pracodawcy
- może obsługiwać UTB o ile złoży wniosek o wydanie kolejnego zaświadczenia
- może obsługiwać UTB dopiero po uzyskaniu nowego zaświadczenia kwalifikacyjnego
- składa wniosek o przedłużenie terminu ważności zaświadczenia kwalifikacyjnego
72. Przedłużenie ważności zaświadczenie kwalifikacyjnego następuje:
- na pisemny wniosek obsługującego
- automatycznie po upływie terminu ważności zaświadczenia
- na pisemne zgłoszenie pracodawcy obsługującego
- po wcześniejszym zgłoszeniu telefonicznym
73. Udźwig UTB to parametr urządzenia bezpośrednio związany z:
- maksymalną wysokością podnoszonego ładunku
- maksymalną objętością podnoszonego ładunku
- maksymalną masą podnoszonego ładunku
- iloczynem masy i objętości podnoszonego ładunku
74. Masa netto 1000 l wody wynosi ok:
- 800 kg
- 900 kg
- 1000 kg
- 1100 kg
75. Masa ładunku składającego się z 40 opakowań po 25 kg każdy wynosi:
- 800 kg
- 1000 kg
- 1100 kg
- 900 kg
76. Masa 60 kartonów po 20 kg każdy wynosi:
- 800 kg
- 1000 kg
- 1100 kg
- 1200 kg
77. Masę podnoszonego ładunku można określić na podstawie:
- zawieszki zbiorczej znajdującej się na transportowanym ładunku
- przeliczając uwzględniając ciężar właściwy i objętość
- dokumentacji przewozowej i magazynowej
- wszystkie odpowiedzi są prawidłowe
78. Informacja dotycząca udźwigu urządzenia może być zawarta:
- w instrukcji eksploatacji
- na tabliczce znamionowej
- na urządzeniu technicznym
- wszystkie odpowiedzi są prawidłowe
79. Prawidłowe określenie jednostki udźwigu to:
- kg
- Pa
- mth
- mm
80. Które z elementów nie wchodzą w skład układu hydraulicznego wózka jezdniowego podnośnikowego?
- pompa, zamek hydrauliczny, filtr oleju
- rozrusznik, potencjometr, silnik elektryczny
- manometr, zawór zwrotny, odpowietrznik
- wszystkie odpowiedzi są nieprawidłowe
81. Zamek hydrauliczny zapewnia ochronę przed:
- nadmiernym wzrostem ciśnienia w układzie hydraulicznym
- skutkami pęknięcia przewodu hydraulicznego
- nieautoryzowanym uruchomieniem urządzenia
- dzieleniem strumienia na poszczególne obwody układu hydraulicznego
82. Elementem przekształcającym ciśnienie oleju hydraulicznego w ruch mechaniczny jest:
- pompa tłoczkowa
- siłownik hydrauliczny
- rozdzielacz hydrauliczny
- zawór przelewowy
83. Elementem wytwarzającym ciśnienie w układzie hydraulicznym wózka jezdniowego podnośnikowego jest:
- silnik hydrauliczny
- pompa hydrauliczna
- kompresor
- sprężarka
84. Zawór przelewowy instalowany w układzie hydraulicznym wózków jezdniowych podnośnikowych ma za zadanie:
- utrzymanie stałego ciśnienia w układzie hydraulicznym
- utrzymanie siłownika w stałej pozycji
- zabezpieczenie układu podnoszenia przed opadaniem
- zasilanie układ hydraulicznego
85. Bezpieczny sposób sprawdzenia działania zaworu przelewowego przeprowadza się:
- z ładunkiem nominalnym na wysokości ok 1/3 wysokości podnoszenia
- z włączonym silnikiem bez ładunku
- wychylając i przytrzymując dźwignię mechanizmu aż do momentu uzyskania przez układ skrajnego położenia
- odpowiedz b i c jest prawidłowa
86. Rozdzielacz hydrauliczny instalowany jest w układzie w celu:
- dławienia ciśnienia w poszczególnych obwodach
- zabezpieczenia układ przed nadmiernym wzrostem ciśnienia
- kierowania przepływem oleju hydraulicznego do poszczególnych obwodów
- wszystkie odpowiedzi są nieprawidłowe
87. Elementem wykonawczym w układzie hydraulicznym wózka jezdniowego podnośnikowego jest:
- siłownik mechanizmu podnoszenia
- silnik hydrauliczny
- siłownik mechanizmu przechyłu
- wszystkie odpowiedzi są poprawne
88. Elementem chroniącym układ hydrauliczny przed nadmiernym wzrostem ciśnienia jest:
- zamek hydrauliczny
- zawór dławiący
- rozdzielacz hydrauliczny
- zawór bezpieczeństwa
89. Zawór zwrotno-dławiący montowany w układzie podnoszenia wózka jezdniowego podnośnikowego ma na celu:
- zmniejszenie ciśnienia oleju
- zabezpieczenie pompy hydraulicznej przed uszkodzeniem
- spowolnienie prędkości opuszczania podniesionego ładunku, podczas pęknięcia przewodu hydraulicznego
- zablokowanie opuszczania siłownika podczas pęknięcia przewodu hydraulicznego
90. Zawór bezpieczeństwa w układzie hydraulicznym wózka jezdniowego podnośnikowego:
- utrzymuje nurnik siłownika podnoszenia w stałym położeniu
- jest elementem ograniczającym udźwig
- zabezpiecza pompę hydrauliczną przed uszkodzeniem
- ogranicza prędkość opuszczania podniesionego ładunku, w przypadku pęknięcia węża hydraulicznego
91. W przypadku wzrostu ciśnienia nadmiar oleju odprowadzany jest:
- z powrotem do zbiornika oleju
- na zewnątrz wózka
- do innej sekcji rozdzielacza
- do siłownika
92. Akumulatory w elektrycznym wózku podnośnikowym:
- są źródłem zasilania układów
- zapewniają stateczność wózka
- decydują o prędkości ruchów roboczych
- odpowiedź a i b jest prawidłowa
93. Parametry podane przez producenta na tabliczce znamionowej akumulatorów to:
- napięcie znamionowe [V]
- pojemność [Ah]
- masa własna [kg]
- wszystkie odpowiedzi są poprawne
94. Kryteria i warunki poprawnego wykonania prób układu hydraulicznego określa:
- wytwórca urządzenia
- konserwator
- operator
- inspektor UDT
95. Wyłącznik bezpieczeństwa STOP jest:
- zabezpieczony przed przypadkowym zadziałaniem
- umieszczony blisko operatora
- koloru czerwonego
- odpowiedź b i c jest prawidłowa
96. Wyłącznik bezpieczeństwa STOP:
- wyłącza działanie mechanizmów jazdy
- wyłącza działanie mechanizmów podnoszenia
- uruchamia sygnalizację ostrzegawczą
- odpowiedź a i b jest prawidłowa
97. Jakiego rodzaju ogumienie stosowane jest w wózkach jezdniowych podnośnikowych:
- pełne
- super elastyczne
- pneumatyczne
- wszystkie odpowiedzi są prawidłowe
98. Graniczne zużycie opon super elastycznych (w przypadku braku innych wytycznych) to:
- minimalna wartość bieżnika 1,6 mm
- zmniejszenie grubości opony o 25% lub do wskaźnika wyznaczającego graniczne zużycie
- brak bieżnika
- minimalna wartość bieżnika 2 mm
99. Jaki rodzaj zużycia wyklucza opony pełne z dalszej eksploatacji:
- wszelkie przecięcia i rozwarstwienia gumy, uszkodzenia mechaniczne
- brak bieżnika
- zmniejszenie grubości opony poniżej wskaźnika wyznaczającego graniczne zużycie
- odpowiedź a i c jest prawidłowa
100. Kto decyduje o rodzaju i wielkość opon zastosowanych w wózkach:
- producent opon
- konserwator
- producent wózka
- inspektor UDT
101. Świecąca się kontrolka ciśnienia oleju może świadczyć o:
- niskim poziomie oleju
- podwyższonej temperaturze silnika
- zbyt niskim ciśnieniu oleju
- odpowiedź a i c jest prawidłowa
102. Oznaczenie przedstawione na rysunku znajduje się na dźwigni:
- mechanizmu podnoszenia
- mechanizmu przechyłu masztu
- mechanizmu przesuwu wideł
- mechanizmu przesuwu karetki
103. Widząc świecącą się kontrolkę operator:
- powinien sprawdzić, czy pasy są prawidłowo zapięte
- może kontynuować pracę
- może kontynuować pracę ze zmniejszoną prędkością jazdy
- wszystkie odpowiedzi są prawidłowe
104. Dźwignia oznaczona poniższym piktogramem po wychyleniu przez operatora do przodu spowoduje:
- ruch wideł w dół
- ruch wideł w górę
- przechył masztu "na siebie„
- przechył masztu "od siebie"
105. Dźwignia oznaczona poniższym piktogramem po wychyleniu przez operatora spowoduje:
- ruch wideł w dół
- ruch wideł w górę
- ruch mechanizmu przechyłu masztu
- ruch mechanizmu przesuwu karetki
106. Wózki jezdniowe podnośnikowe czołowe z fotelem dla operatora muszą być wyposażone w:
- hamulec zasadniczy
- hamulec postojowy
- mechanizm ryglujący koła jezdne
- odpowiedź a i b jest prawidłowa
107. Hamowanie jazdy wózka prowadzonego może być realizowane przez:
- pedał hamulca nożnego
- zwolnienie nacisku na dźwignię sterującą jazdę wózka
- wychylenie dyszla prowadzącego w skrajne górne i dolne położenie
- odpowiedź b i c jest prawidłowa
108. W skład układu mechanizmu podnoszenia wchodzi:
- siłowniki układu podnoszenia
- łańcuchy nośne
- karetka
- wszystkie odpowiedzi są prawidłowe
109. Wózki jezdniowe podnośnikowe czołowe z fotelem dla operatora mogą być wyposażone w maszt typu:
- duplex
- triplex
- maszt z wolnym skokiem
- wszystkie odpowiedzi są prawidłowe
110. Jakie elementy bezpieczeństwa chronią operatora w przypadku utraty stateczności wózka podnośnikowego czołowego?
- łącznik STOP
- kabina wózka, pas bezpieczeństwa
- podpory
- przeciwwaga
111. Jakie elementy maja wpływ na stateczność wózka podnośnikowego czołowego?
- kabina wózka, pas bezpieczeństwa
- łącznik STOP
- stan zużycia opon
- wszystkie odpowiedzi są prawidłowe
112. Do zasilania wózków podnośnikowych spalinowych stosowane są butle gazowe:
- z kołnierzem
- koloru czerwonego
- wykorzystywane do zasilania kuchenek gazowych
- odpowiedź a i b jest prawidłowa
113. W wózkach podnośnikowych, łańcuch mechanizmu podnoszenia, jest:
- cięgnem nośnym
- cięgnem przeciwślizgowym
- cięgnem napędowym
- żadnym z powyższych
114. Oznaczenie na poniższym rysunku przedstawia:
- lampkę kontrolną świec żarowych
- lampkę kontrolną ładowania
- lampkę kontrolną ciśnienia oleju hydraulicznego
- lampkę kontrolną oświetlenia
115. Oznaczenie na poniższym rysunku przedstawia:
- ampkę sygnalizującą błędne podłączenie biegunów akumulatora (dotyczy tylko wózków akumulatorowych)
- lampkę sprawności akumulatora, która dotyczy tylko wózków akumulatorowych
- lampkę kontrolną ładowania akumulatora
- odpowiedź a i b jest prawidłowa
116. Oznaczenie na poniższym rysunku przedstawia:
- wskazania ogranicznika udźwigu wózka
- lampkę kontrolną temperatury cieczy chłodzącej
- lampkę kontrolną poziomu paliwa
- lampkę kontrolna stopnia naładowania akumulatora
117. Oznaczenie na poniższym rysunku przedstawia:
- lampkę kontrolną - włączenia hamulca postojowego
- lampkę kontrolną - awaria silnika
- lampkę kontrolną - przeciążenie
- lampkę kontrolną - nadmierna prędkość obrotowa silnika
118. Zapalona lub migająca lampka kontrolna:
- oznacza przekroczenie okresu serwisowego lub awarię urządzenia
- oznacza konieczność regulacji naciągu cięgien nośnych
- powinna być zapalona podczas pracy silnika
- wszystkie odpowiedzi są nieprawidłowe
119. Pracując wózkiem z osprzętem wymiennym operator powinien:
- przestrzegać zapisów instrukcji eksploatacji wózka oraz instrukcji osprzętu wymiennego
- przestrzegać przepisów zakładowych
- stosować się do właściwego diagramu udźwigu
- wszystkie odpowiedzi są prawidłowe
120. Osprzęt wymienny może być zainstalowany do wózka przez:
- konserwatora wózków jezdniowych
- operatora wózków jezdniowych
- producenta osprzętu wymiennego
- wszystkie odpowiedzi są prawidłowe
121. Jaki wpływ na udźwig wózka ma zamontowany dodatkowy osprzęt wymienny:
- zwiększa udźwig wózka
- zmniejsza udźwig wózka
- nie ma wpływu
- wszystkie odpowiedzi są niepoprawne
122. Po montażu osprzętu wymiennego przewidzianego przez wytwórcę wózka:
- urządzenie należy zgłosić do badania w UDT
- urządzenie można eksploatować bez dodatkowych badań w UDT
- operator wykonuje próby z przeciążeniem
- operator dokonuje wpisu w dzienniku konserwacji
123. Dźwignia oznaczona poniższym piktogramem, po wychyleniu przez operatora powoduje:
- uruchomienie mechanizmu podnoszenia
- uruchomienie mechanizmu przechyłu
- uruchomienie mechanizmu przesuwu bocznego
- wszystkie odpowiedzi są nieprawidłowe
124. Praca wózkiem z zamontowanymi przedłużkami do wideł jest dozwolona w przypadku gdy:
- wytwórca nie zabronił takiej pracy
- urządzenie jest wyposażone w stosowny diagram udźwigu
- montaż przedłużek został wykonany zgodnie z zaleceniami wytwórcy
- wszystkie odpowiedzi są prawidłowe
125. Zabezpieczenie elektryczne montowane na zakończeniu dyszla wózka jezdniowego prowadzonego to:
- łącznik STOP
- łącznik brzuszny
- kontakt zluzowania łańcucha nośnego
- wszystkie odpowiedzi są prawidłowe
126. Który z elementów wyposażenia zabezpiecza przed uruchomieniem urządzenia przez osoby niepowołane?
- łącznik STOP
- stacyjka
- klawiatura kodów dostępu
- odpowiedź b i c jest prawidłowa
127. Cecha 1500 x 500 znajdująca się na widle nośnej oznacza:
- maksymalny udźwig jednej widły wynoszący 1,5 t w odległości 500 mm od czoła widły
- maksymalny udźwig pary wideł wynoszący 1,5 t w odległości 500 mm od czoła wideł
- wymiary zewnętrzne widły nośnej
- symbol kontroli jakości
128. Maksymalny ładunek jaki można podnieść na parze wideł oznaczonych 2500 x 500 każda wynosi:
- 0,5 t
- 2,5 t
- 5,0 t
- 12,0 t
129. Praca wózkiem jezdniowym podnośnikowym ze zbyt niskim poziomem oleju w układzie hydraulicznym może objawiać się:
- „skokowym", przerywanym ruchem siłownika do góry
- brakiem realizacji wykonania zadanych ruchów mechanizmu podnoszenia
- głośną pracą pompy hydraulicznej
- wszystkie odpowiedzi są prawidłowe
130. „Skokowy” ruch mechanizmu podnoszenia do góry może być spowodowany:
- zbyt niskim poziomem oleju w układzie hydraulicznym
- nadmierną korozja łańcucha układu podnoszenia
- uszkodzoną rolka prowadzącą masztu
- uszkodzonym przewodem hydraulicznym zasilającym siłownik podnoszenia
131. Nieszczelność w układzie hydraulicznym wózka jezdniowego podnośnikowego może się objawiać:
- wyciekiem zewnętrznym
- niekontrolowanym opadaniem ładunku
- „skokowym", przerywanym ruchem siłownika do góry
- odpowiedz a i b jest prawidłowa
132. Gęstość oleju hydraulicznego w temperaturze ujemnej:
- maleje
- wzrasta
- temperatura nie ma wpływu na gęstość oleju
- pozostaje bez zmian
133. Stan poziomu oleju w układzie hydraulicznym operator sprawdza:
- zawsze przed rozpoczęciem i po zakończeniu pracy
- zawsze 1 raz w miesiącu
- zgodnie z zaleceniami zawartymi w instrukcji eksploatacji
- zgodnie z zaleceniami zawartymi w protokole z badań okresowych
134. O ile wytwórca nie określi inaczej, maksymalne odchylenie od pionowego położenia masztu obciążonego ciężarem nominalnym, spowodowane wewnętrznym przeciekiem w układzie wychyłu nie powinno przekroczyć:
- 5% w czasie 10 min
- 5° w czasie 10 min
- 10° w czasie 10 min
- brak ustalonych wytycznych
135. O ile wytwórca nie określi inaczej, składowa opadania mechanizmu podnoszenia wózka o udźwigu do 10 t obciążonego ciężarem nominalnym nie powinna przekroczyć:
- 100 mm w ciągu pierwszych 10 min
- 50% długości siłownika w ciągu pierwszych 10 min
- 200 mm w ciągu pierwszych 10 min
- wszystkie odpowiedzi są niepoprawne
136. O ile wytwórca nie określi inaczej, składowa opadania mechanizmu podnoszenia wózka o udźwigu powyżej 10 t obciążonego ciężarem nominalnym nie powinna przekroczyć:
- 100 mm w ciągu pierwszych 10 min
- 50% długości siłownika w ciągu pierwszych 10 min
- 200 mm w ciągu pierwszych 10 min
- wszystkie odpowiedzi są niepoprawne
137. Optymalne obciążenie potrzebne do przeprowadzenia próby szczelności wewnętrznej układu hydraulicznego wynosi:
- 50% obciążenia nominalnego
- 100% obciążenia nominalnego
- 110% obciążenia nominalnego
- 125% obciążenia nominalnego
138. O ile wytyczne producenta nie stanowią inaczej, minimalna wysokość na jaką należy podnieść ładunek podczas próby szczelności wewnętrznej układu wychyłu masztu wynosi:
- 100 mm
- 500 mm
- 2500 mm
- próby nie wykonuje się
139. Sprawdzenie w bezpieczny sposób działania zaworu przelewowego należy wykonać:
- z obciążeniem nominalnym
- z obciążeniem 50% nominalnego
- bez obciążenia
- z obciążeniem 125% nominalnego
140. Sprawdzenie układu hydraulicznego w wózkach podnośnikowych obejmuje:
- próbę szczelności wewnętrznej
- próbę zaworu przelewowego
- ocenę szczelności zewnętrznej
- wszystkie odpowiedzi są poprawne
141. Sprawdzenie poprawności działania dźwigni sterowniczych należy wykonać:
- sprawdzając zgodność realizowanych ruchów z oznaczeniami
- bez obciążenia
- wychylając dźwignie sterownicze we wszystkie przewidziane przez wytwórcę kierunki
- wszystkie odpowiedzi są prawidłowe
142. Zakres przeprowadzonych prób wózków jezdniowych podnośnikowych wyposażonych w hydrauliczny osprzęt dodatkowy obejmuje:
- całe wyposażenia hydrauliczne wózka wraz z osprzętem dodatkowym
- osprzęt nie stanowi wyposażenia wózka i nie podlega kontroli przez operatora
- próby sprawdzające poprawność działania wykonuje tylko konserwator
- próbę z obciążeniem 125%
143. Akumulatory kwasowe można ładować:
- w każdym pomieszczeniu niezależnie od przeznaczenia
- tylko w pomieszczeniu klimatyzowanym
- w miejscu specjalnie do tego przeznaczonym
- wyłącznie w pomieszczeniach ogrzewanych
144. Obowiązkiem operatora wózków jezdniowych podnośnikowych jest:
- sprawdzenie stopnia naładowania akumulatora
- sprawdzenie poziomu elektrolitu
- sprawdzenie poprawności zamocowania akumulatora
- wszystkie odpowiedzi są prawidłowe
145. Osoba dokonująca wymiany rozładowanych akumulatorów powinna:
- posiadać uprawnienia elektryczne SEP
- przestrzegać wytycznych zawartych w instrukcji
- posiadać zaświadczenie kwalifikacyjne do konserwacji wózków
- posiadać zaświadczenie kwalifikacyjne do obsługi wózków
146. Pomieszczenie, w którym odbywa się ładowanie akumulatorów wózka:
- nie musi posiadać wentylacji, ale musi być ogrzewane
- musi być ogrzewane i musi posiadać wentylację
- musi posiadać wentylację
- brak jednoznacznych wytycznych
147. Łącznik bezpieczeństwa „STOP” służy do:
- awaryjnego zatrzymania pracy wózka
- normalnego zatrzymania pracy silnika
- zabezpiecza przed uruchomieniem wózka przez osoby nieuprawnione
- wszystkie odpowiedzi są niepoprawne
148. W przypadku stwierdzenia sytuacji niebezpiecznej operator wózka ma obowiązek:
- zatrzymać wózek
- przerwać pracę
- opuścić ładunek (pod warunkiem nie zwiększenia zagrożenia)
- wszystkie odpowiedzi są prawidłowe
149. Sprawdzenie poprawności działania łącznika bezpieczeństwa STOP należy wykonać:
- tylko podczas przeglądów konserwacyjnych
- tylko w ramach przeglądów specjalnych
- zawsze przed rozpoczęciem pracy
- nie ma konieczności sprawdzania poprawności działania
150. Graniczne wartości zużycia ogumienia zawiera:
- deklaracja zgodności CE
- instrukcja eksploatacji wózka
- protokół z badań UDT
- dyrektywa maszynowa
151. Ciśnienie w oponach powinno być dostosowane do:
- zaleceń instrukcji eksploatacji wózka
- wyłącznie warunków panujących w miejscu eksploatacji
- preferencji operatora
- wymagań właściciela terenu
152. Nierówne ciśnienie w oponach na jednej osi może spowodować:
- poprawę właściwości jezdnych wózka
- zmniejszenie stateczności wózka podczas transportu ładunków
- nie ma żadnego wpływu na stateczność wózka
- wszystkie odpowiedzi są niepoprawne
153. Wpływ na przyspieszone zużycie opon pneumatycznych ma:
- gwałtowne hamowanie, najeżdżanie na przeszkody z dużą prędkością
- jazda ze zbyt niskim ciśnieniem
- manewrowanie wózkiem na małej przestrzeni
- wszystkie odpowiedzi są poprawne
154. Nierównomierne zużycie opon pełnych znajdujących się na wspólnej osi:
- poprawia właściwości jezdne wózka
- nie ma żadnego wpływu na bezpieczną eksploatację
- może spowodować utratę stateczności wózka
- wszystkie odpowiedzi są niepoprawne
155. Ocenę stanu technicznego ogumienia przeprowadza:
- konserwator podczas przeglądów konserwacyjnych
- operator w ramach czynności przed rozpoczęciem pracy
- inspektor UDT w trakcie wykonywanych czynności
- wszystkie odpowiedzi są prawidłowe
156. W przypadku stwierdzenia uszkodzeń mechanicznych ogumienia, mających wpływ na bezpieczną eksploatację, operator wózka:
- powiadamia przełożonego o stwierdzonej niezgodności, ale nie przerywa pracy
- wstrzymuje pracę urządzenia i powiadamia przełożonego o stwierdzonej niezgodności
- kontynuuje pracę zmniejszając prędkość jazdy
- kontynuuje pracę zmniejszając prędkości poruszania się
157. Operator po zauważeniu podczas jazdy palącej się lampki kontrolnej ciśnienia oleju silnika powinien:
- zjechać w bezpieczne miejsce, opuścić ładunek, wyłączyć silnik
- może kontynuować jazdę jeśli stan oleju jest prawidłowy
- nie musi podejmować żadnych działań
- odpowiedź b i c jest prawidłowa
158. Po zakończeniu pracy operator powinien:
- upewnić się, że widły są opuszczone, wózek jest w miejscu stałego postoju i nie stwarza zagrożenia
- uruchomić hamulec postojowy
- wcisnąć włącznik STOP
- odpowiedź a i b jest prawidłowa
159. Sprawne dźwignie sterujące:
- po zwolnieniu nacisku powinny samoczynnie wracać do pozycji neutralnych
- mogą nie mieć oznaczeń gdy operator wie do czego służą
- powinny realizować kierunki ruchów zgodne z oznaczeniami
- odpowiedź a i c jest prawidłowa
160. Opis próby sprawdzenia poprawności działania hamulca zasadniczego opisuje:
- instrukcja obsługi wózka
- ustawa o dozorze technicznym
- dyrektywa maszynowa
- wewnętrzne przepisy zakładowe
161. Informacje dotyczące sposobu sprawdzania poprawności działania hamulca pomocniczego są zawarte w:
- rozporządzeniu w sprawie eksploatacji urządzeń transportu bliskiego
- instrukcji obsługi wózka
- ustawie o dozorze technicznym
- wytycznych inspektora BHP
162. Podczas próby hamulca zasadniczego maszt powinien być w pozycji:
- pozycja masztu nie ma znaczenia
- przechylony „na siebie„
- przechylony „od siebie„
- pionowej
163. Próbę hamulca zasadniczego należy przeprowadzać:
- z ładunkiem 110% udźwigu urządzenia
- z ładunkiem 125% udźwigu urządzenia
- bez ładunku
- bez ładunku a następnie z ładunkiem nominalnym
164. Jeżeli w czasie próby hamulca pomocniczego operator uzna, że jego działanie jest nieprawidłowe, powinien:
- wstrzymać eksploatację urządzenia
- poinformować przełożonego
- kontynuować pracę ze zmniejszoną prędkością jazdy
- odpowiedź a i b jest prawidłowa
165. W przypadku stwierdzenia awarii układu hamulcowego, operator powinien:
- w ramach posiadanych kompetencji wykonać naprawę hamulca
- wstrzymać eksploatację urządzenia
- poinformować Urząd Dozoru Technicznego
- kontynuować pracę z zachowaniem szczególnej ostrożności
166. W przypadku stwierdzenia wycieku płynu hamulcowego, operator powinien:
- uzupełnić płyn hamulcowy i kontynuować jazdę do zakończenia pracy
- wstrzymać eksploatację urządzenia i powiadomić przełożonego
- wstrzymać eksploatację urządzenia i powiadomić inspektora UDT
- odpowiedź b i c jest prawidłowa
167. W przypadku stwierdzenia niewłaściwego działania hamulca pomocniczego, operator:
- na wyraźne polecenie przełożonego dokonuje jego naprawy
- zgłasza awarię do UDT
- wstrzymuje eksploatację urządzenia i powiadamia przełożonego
- wszystkie odpowiedzi są poprawne
168. Hamulec zasadniczy należy sprawdzać jadąc wózkiem podnośnikowym i hamując:
- do przodu
- do tyłu
- w obu kierunkach
- hamulec sprawdza tylko konserwator
169. Operator powinien przeprowadzić sprawdzenie hamulców:
- zgodnie z terminami zawartymi w instrukcji konserwacji
- raz na miesiąc
- raz na tydzień
- zawsze przed rozpoczęciem pracy
170. Schodząc z fotela operatora, obsługujący wózek powinien:
- zawsze załączyć hamulec postojowy
- załączyć hamulec postojowy tylko w przypadku postoju wózka na wzniesieniu
- unieść widły na maksymalną wysokość
- przechylić maszt w pozycję "na siebie"
171. Zakres czynności kontrolnych masztu wózka podnośnikowego obejmuje:
- sprawdzenie czy nie wystąpiły pęknięcia
- sprawdzenie stanu rolek prowadzących
- sprawdzenie ogranicznika krańcowego położenia karetki
- wszystkie odpowiedzi są poprawne
172. Podczas jazdy wózkiem podnośnikowym z ładunkiem na widłach należy:
- manipulować pochyłem masztu w zależności od ukształtowania terenu
- poruszać się z masztem przechylonym „na siebie„
- transportować ładunek w dowolny wybrany przez operatora sposób
- manipulować pochyłem masztu w zależności od prędkości poruszania się
173. Ładunek należy transportować:
- na wysokości powyżej linii wzroku operatora, jeżeli poprawia to widoczność
- na wysokości około 20-30 cm nad poziomem podłoża
- na dowolnej wysokości
- na wysokości ok 90 cm
174. Podczas zjazdu z pochyłej rampy wózkiem czołowym podnośnikowym wraz z ładunkiem, operator:
- porusza się przodem
- porusza się tyłem
- zachowuje szczególną ostrożność
- odpowiedź b i c jest prawidłowa
175. Podczas wjazdu na pochyłą rampę wózkiem jezdniowym podnośnikowym z ładunkiem ograniczającym widoczność, operator:
- korzysta z pomocy drugiej osoby
- porusza się przodem
- porusza się tyłem
- odpowiedź a i b jest prawidłowa
176. Poruszanie się wózkiem w poprzek pochyłej rampy jest:
- zabronione
- dozwolone
- dopuszczalne pod warunkiem zachowania szczególnej ostrożności
- dopuszczalne pod warunkiem obciążenia wózka ładunkiem uniesionym na minimalną wysokość
177. Poruszając się wózkiem z ładunkiem ograniczającym widoczność operator powinien:
- jechać tyłem
- jechać przodem, z pomocą osoby informującej o zagrożeniach
- poruszać się z bezpieczną prędkością
- wszystkie odpowiedzi są prawidłowe
178. Podczas jazdy wózkiem jezdniowym podnośnikowym z ładunkiem należy:
- unikać gwałtownych skrętów
- przewozić ładunek na wysokości transportowej
- dostosować prędkość jazdy do panujących warunków
- wszystkie odpowiedzi są prawidłowe
179. Wylot zaworu butli gazowej powinien być skierowany:
- w dół
- w górę
- poziomo
- pozycja nie ma znaczenia
180. Szczelność instalacji gazowej sprawdza się przy pomocy:
- detektora gazu
- specjalnego środka
- wody mydlanej
- wszystkie odpowiedzi są prawidłowe
181. Eksploatacja wózka jezdniowego w temperaturze poniżej -10˚C:
- jest dozwolona pod warunkiem wyposażenia wózka w ogrzewanie kabiny operatora
- jest dozwolona jeśli instrukcja eksploatacji na to zezwala
- jest zabroniona z uwagi na możliwości utraty przyczepności
- jest zabroniona z uwagi na zmianę parametrów technicznych oleju hydraulicznego
182. Eksploatacja wózka jezdniowego w temperaturze powyżej 30˚C:
- jest zabroniona z uwagi na pogorszenie warunków pracy operatora
- jest dozwolona pod warunkiem wyposażenia wózka w klimatyzowaną kabinę operatora
- jest zabroniona z uwagi na zmianę parametrów technicznych oleju hydraulicznego
- jest dozwolona jeśli instrukcja eksploatacji na to zezwala
183. W oparciu o tabelę określ jakie maksymalne obciążenie może przenieść gniazdo ładunkowe regału:
- 1320 kg
- 1100 kg
- 2700 kg
- 2200 kg
184. W oparciu o tabelę, określ na które najwyższe gniazdo ładunkowe podasz towar dysponując wózkiem o maksymalnej wysokości podnoszenia 2100 mm:
- gniazdo 1
- gniazdo 2
- gniazdo 3
- gniazdo 4
185. Odstawiając ładunek na regał magazynowy operator powinien znać:
- masę towaru i obciążenie maksymalne gniazda regału
- masę towaru i obciążenie minimalne ramy regału
- wymiary zewnętrzne transportowanego ładunku
- odpowiedź a i c jest prawidłowa
186. Podczas transportu ładunków wielkogabarytowych operator powinien:
- jechać tyłem
- jechać przodem wychylając się poza obrys wózka
- jechać przodem korzystając z pomocy drugiej osoby
- odpowiedź a i c jest prawidłowa
187. Na co powinien zwrócić uwagę operator podczas wymiany baterii trakcyjnych?
- na masę i wymiary baterii
- na pojemność baterii
- na dane adresowe producenta baterii
- odpowiedzi a i b są prawidłowe
188. Przyczyną utraty stateczności wózka może być:
- zbyt niskie ciśnienie w oponach
- szybka jazda w zakrętach
- gwałtowne hamowanie przy jeździe z ładunkiem
- wszystkie odpowiedzi są prawidłowe
189. Dopuszczalna prędkość jazdy wózka jest określona:
- w ustawie o dozorze technicznym
- w protokole badania wystawionym przez UDT
- w decyzji zezwalającej na eksploatację
- wszystkie odpowiedzi są niepoprawne
190. Przed rozpoczęciem pracy wózkiem należy sprawdzić funkcjonowanie:
- układu hydraulicznego
- układu hamulcowego
- układu kierowniczego
- wszystkie odpowiedzi są prawidłowe
191. Po zamontowaniu dodatkowego osprzętu wymiennego należy:
- zapoznać się z właściwym diagramem udźwigu
- zgłosić do UDT w celu wykonania badania technicznego
- sprawdzić, czy zakres posiadanych uprawnień do obsługi obejmuje zamontowany osprzęt
- wszystkie odpowiedzi są prawidłowe
192. Przed wjazdem wózkiem na rampę załadowczą operator powinien sprawdzić:
- kąt nachylenia rampy, oraz zdolność wózka do pokonywania wzniesień
- nośność rampy
- ciężar ładunku oraz masę własną wózka
- wszystkie odpowiedzi są prawidłowe
193. Podczas jazdy wózkiem podnośnikowym należy:
- przestrzegać przepisów BHP
- stosować się do znaków, oznaczeń i symboli umieszczonych w obszarze pracy wózka
- przestrzegać instrukcji obsługi wózka
- wszystkie odpowiedzi są prawidłowe
194. Gdzie znajduje się informacja dotycząca udźwigu wózka:
- w instrukcji eksploatacji wózka
- na tabliczce znamionowej wózka
- na diagramie udźwigu
- wszystkie odpowiedzi są prawidłowe
195. Przed rozpoczęciem pracy wózkiem należy:
- zapoznać się z zakresem pracy
- określić masę transportowanego ładunku
- sprawdzić, czy osprzęt wózka jest właściwie dobrany do ładunku
- wszystkie odpowiedzi są prawidłowe
196. Praca wózka z koszem do podnoszenia osób zakładanym na widły:
- jest dozwolona wyłącznie po uzgodnieniu szczegółowych warunków eksploatacji z UDT
- jest dozwolona bez dodatkowych wymagań
- jest zabroniona
- jest dozwolona za zgodą właściciela zakładu bez dodatkowych wymagań
197. W przypadku kiedy wózek traci stateczność, operator:
- stara się opuścić kabinę wózka (przed jego wywróceniem się)
- pozostaje w kabinie
- utrzymuje pozycję siedzącą trzymając się mocno kierownicy
- odpowiedź b i c jest prawidłowa
198. W chwili wywracania się wózka należy:
- niezwłocznie wyskoczyć z kabiny
- ostro zahamować
- skręcić gwałtownie koła w kierunku przechylenia, by spróbować zapobiec wywróceniu
- wszystkie odpowiedzi są niepoprawne
199. Wózek może stracić stateczność na skutek:
- podnoszenia ładunku o ciężarze większym niż udźwig wózka
- wykonywania gwałtownych skrętów kół podczas jazdy
- zawracania wózkiem na wzniesieniu
- wszystkie powyżej są prawidłowe
200. Jeżeli instrukcja wózka nie stanowi inaczej, następujące w toku eksploatacji maksymalne wydłużenie łańcucha nośnego może wynosić:
- 3 cm
- 3 mm
- 3%
- 10%
201. Jeżeli instrukcja wózka nie stanowi inaczej, dopuszczalna ilość pękniętych płytek łańcucha nośnego (konstrukcji Flyera) wynosi:
- 3% całkowitej ilości płytek
- 6 sztuk na długości 30 ogniw
- 1 sztuka na każdy metr łańcucha
- 0
202. Jeżeli instrukcja wózka nie stanowi inaczej, minimalna dopuszczalna grubość poziomej części wideł zmierzona w pobliżu ich naroża (pięty) wynosi:
- 25 mm przy grubości nominalnej 30 mm
- 57 mm przy grubości nominalnej 60 mm
- 36 mm przy grubości nominalnej 40 mm
- zawsze wynosi 50% grubości nominalnej wideł
203. Jeżeli instrukcja wózka nie stanowi inaczej, minimalna dopuszczalna grubość poziomej części wideł zmierzona w pobliżu ich naroża (pięty) wynosi:
- 27 mm przy grubości nominalnej 30 mm
- 57 mm przy grubości nominalnej 60 mm
- 25 mm przy grubości nominalnej 30 mm
- zawsze wynosi 50% grubości nominalnej wideł
204. Jeżeli instrukcja wózka nie stanowi inaczej, minimalna dopuszczalna grubość poziomej części wideł zmierzona w pobliżu ich naroża (pięty) wynosi:
- 25 mm przy grubości nominalnej 30 mm
- 55 mm przy grubości nominalnej 60 mm
- 40 mm przy grubości nominalnej 60 mm
- zawsze wynosi 50% grubości nominalnej wideł
205. Jeżeli instrukcja wózka nie stanowi inaczej, minimalna dopuszczalna grubość poziomej części wideł zmierzona w pobliżu ich naroża (pięty) wynosi:
- 25 mm przy grubości nominalnej 30 mm
- 45 mm przy grubości nominalnej 50 mm
- 50 mm przy grubości nominalnej 60 mm
- zawsze wynosi 50% grubości nominalnej wideł
206. Jeżeli instrukcja wózka nie stanowi inaczej, maksymalne dopuszczalne rozgięte widły względem wartości oryginalnej (zwykle 90 stopni), wynosi:
- 1 cm
- 3%
- 3 stopnie
- 0 stopni
207. Sprawdzenie poprawności działania układu hydraulicznego w wózkach ze zmiennym wysięgiem obejmuje min.:
- próbę szczelności wewnętrznej
- próbę zaworu przelewowego
- próbę zamka hydraulicznego
- wszystkie odpowiedzi są poprawne
208. Minimalna bezpieczna odległość pracy wózka przy wykopie uzależniona jest od:
- kategorii gruntu
- brak jednoznacznych wartości
- głębokości wykopu
- odpowiedź a i c jest prawidłowa
209. Przedstawiony rysunek oznacza:
- wskaźnik wysokości podnoszenia
- wskaźnik temperatury silnika
- wskaźnik ogranicznika obciążenia
- wskaźnik kąta nachylenia
210. Urządzeniem zabezpieczającym wózek ze zmiennym wysięgiem tzw. ładowarkę teleskopową manitou, jcb przed wywróceniem:
- ogranicznik obciążenia
- kabina operatora
- pasy opasające operatora
- wszystkie odpowiedzi są poprawne
211. Poprawnie działający ogranicznik obciążenia w wózkach ze zmiennym wysięgiem powoduje:
- załączenie sygnalizacji dźwiękowej
- w niektórych rozwiązaniach konstrukcyjnych wyłączenie mechanizmu teleskopowania w kierunku zwiększenia wysięgu
- w niektórych rozwiązaniach konstrukcyjnych wyłączenie mechanizmu podnoszenia w kierunku dół
- wszystkie odpowiedzi są poprawne
212. W przypadku awarii układu hydraulicznego przy podniesionej kabinie i braku możliwości awaryjnego opuszczenia kabiny operator powinien:
- opuścić kabinę schodząc po regale
- opuścić kabinę schodząc po konstrukcji wózka
- ewakuować się z kabiny wykorzystując zestaw ratowniczy dostępny w kabinie
- wezwać inspektora UDT
213. W przypadku awarii wózka, przy podniesionej kabinie operator powinien:
- powiadomić UDT
- zejść po konstrukcji regałów magazynowych zachowując szczególną ostrożność
- opuścić kabinę przy pomocy systemu awaryjnego opuszczania
- wezwać straż pożarną
214. Urządzeniem zabezpieczającym operatora przed przygnieceniem lub wypadnięciem instalowanym w wózkach z operatorem podnoszonym wraz z ładunkiem może być:
- czujnik fotela operatora
- czujnik zajętości obu rąk
- łącznik barier wejściowych
- wszystkie odpowiedzi są prawidłowe
215. Elementem mającym na celu zapewnienie prawidłowej pozycji obsługującego wózek z operatorem podnoszonym wraz z ładunkiem, może być:
- czujnik zajętości obu rąk
- czujnik zajętości fotela operatora
- szelki zabezpieczające operatora przed upadkiem z wysokości
- odpowiedzi a i b są prawidłowe
216. Zabezpieczenia elektryczne charakterystyczne dla wózka z operatorem podnoszonym wraz z ładunkiem
- łącznik brzuszny, ogranicznik przeciążenia
- czujnik zajętości obu rąk, kontakt zluzowania łańcucha, kontakty barier kabiny
- łącznik STOP, kontakt rozłożenia podpór
- wszystkie odpowiedzi są prawidłowe
217. W oparciu o przedstawiony diagram udźwigu i rysunek określ maksymalną bezpieczną wysokość podnoszenia ładunku pobranego od strony A:
- 4836 mm
- 4030 mm
- 3100 mm
- wszystkie odpowiedzi są niepoprawne
218. W oparciu o przedstawiony diagram udźwigu i rysunek określ maksymalną bezpieczną wysokość podnoszenia ładunku pobranego od strony B:
- 3100 mm
- 4836 mm
- 4030 mm
- wszystkie odpowiedzi są niepoprawne
219. W oparciu o przedstawiony diagram udźwigu i rysunek określ maksymalną bezpieczną wysokość podnoszenia ładunku pobranego od strony A:
- 3510 mm
- 4212 mm
- 2700 mm
- wszystkie odpowiedzi są niepoprawne
220. W oparciu o przedstawiony diagram udźwigu i rysunek określ maksymalną bezpieczną wysokość podnoszenia ładunku pobranego od strony B:
- 4212 mm
- 2700 mm
- 3520 mm
- wszystkie odpowiedzi są niepoprawne
221. W oparciu o przedstawiony diagram udźwigu i rysunek określ maksymalną bezpieczną wysokość podnoszenia ładunku pobranego od strony A:
- 2600 mm
- 3380 mm
- 4056 mm
- wszystkie odpowiedzi są niepoprawne
222. W oparciu o przedstawiony diagram udźwigu i rysunek określ maksymalną bezpieczną wysokość podnoszenia ładunku pobranego od strony B:
- 4056 mm
- 2600 mm
- 3380 mm
- wszystkie odpowiedzi są niepoprawne
223. W oparciu o przedstawiony diagram udźwigu i rysunek określ maksymalną bezpieczną wysokość podnoszenia ładunku pobranego od strony A:
- 3640 mm
- 4368 mm
- 2800 mm
- wszystkie odpowiedzi są niepoprawne
224. W oparciu o przedstawiony diagram udźwigu i rysunek określ maksymalną bezpieczną wysokość podnoszenia ładunku pobranego od strony B:
- 2800 mm
- 3640 mm
- 4368 mm
- wszystkie odpowiedzi są niepoprawne
225. W oparciu o przedstawiony diagram udźwigu określ maksymalny udźwig wózka na wysokości 6 m:
- 1300 kg
- 1500 kg
- 1700 kg
- 2000 kg
226. W oparciu o przedstawiony diagram udźwigu określ maksymalny udźwig wózka na wysokości 6,7 m:
- 1400 kg
- 1200 kg
- 1000 kg
- 1300 kg
227. W oparciu o przedstawiony diagram udźwigu określ maksymalną masę ładunku, o wymiarach podstawy 1,6 m x 1,6 m:
- 4,5 t
- 4,0 t
- 3,5 t
- 3,0 t
228. W oparciu o przedstawiony diagram udźwigu określ maksymalną masę ładunku, o wymiarach podstawy 2 m x 2 m:
- 2,5 t
- 3,5 t
- 4,5 t
- 3,0 t
229. W oparciu o przedstawiony diagram udźwigu oraz rysunek określ maksymalną bezpieczną wysokość podnoszenia ładunku pobranego z kierunku A:
- 2350 mm
- 3300 mm
- 1400 mm
- 1300 mm
230. W oparciu o przedstawiony diagram udźwigu oraz rysunek określ maksymalną masę ładunku pobranego od strony B:
- 1300 kg
- 1400 kg
- 1500 kg
- 2300 kg
231. W oparciu o przedstawiony diagram udźwigu oraz rysunek określ maksymalną masę ładunku pobranego od strony A:
- 1500 kg
- 2000 kg
- 2300 kg
- 2500 kg
232. W oparciu o przedstawiony diagram udźwigu oraz rysunek określ maksymalną masę ładunku pobranego od strony B:
- 1100 kg
- 1450 kg
- 1800 kg
- 2300 kg
233. W oparciu o przedstawiony diagram udźwigu oraz rysunek określ maksymalną masę ładunku, jaką można bezpiecznie podnieść pobierając ładunek od strony A:
- 1500 kg
- 2000 kg
- 2300 kg
- 1800 kg
234. W oparciu o przedstawiony diagram udźwigu oraz rysunek określ maksymalną masę ładunku, jaką można bezpiecznie podnieść pobierając ładunek od strony A:
- 2695 kg
- 3185 kg
- 3500 kg
- wszystkie odpowiedzi są niepoprawne
235. W oparciu o przedstawiony diagram udźwigu oraz rysunek określ maksymalną masę ładunku, jaką można bezpiecznie podnieść pobierając ładunek od strony B:
- 2695 kg
- 3500 kg
- 3185 kg
- wszystkie odpowiedzi są niepoprawne
236. W oparciu o przedstawiony diagram udźwigu oraz rysunek określ maksymalną bezpieczną wysokość podnoszenia, ładunku pobranego z kierunku A:
- 700 mm
- 1200 mm
- 4500 mm
- 1800 mm
237. W oparciu o przedstawiony diagram udźwigu określ maksymalny udźwig wózka, podnoszącego ładunek na wysokość 3000 mm:
- 2400 kg
- 3600 kg
- 3500 kg
- 1500 kg
238. W oparciu o przedstawiony diagram udźwigu określ maksymalny udźwig wózka, podnoszącego ładunek na wysokość 4000 mm:
- 3300 kg
- 4000 kg
- 3400 kg
- wszystkie odpowiedzi są niepoprawne
239. W oparciu o przedstawiony diagram udźwigu określ maksymalny udźwig wózka, podnoszącego ładunek na wysokość 5000 mm:
- 4000 kg
- 2700 kg
- 3400 kg
- wszystkie odpowiedzi są niepoprawne
240. W oparciu o przedstawiony diagram udźwigu oraz rysunek określ maksymalną masę ładunku jaką można bezpiecznie podnieść na wysokość 4000 mm, pobierając od strony B:
- 3400 kg
- 2900 kg
- 2700 kg
- 3600 kg
241. W oparciu o przedstawiony diagram udźwigu oraz rysunek określ maksymalną masę ładunku jaką można bezpiecznie podnieść na wysokość 4000 mm, pobierając od strony A:
- 2900 kg
- 3600 kg
- 3400 kg
- 3200 kg
242. W oparciu o przedstawiony diagram udźwigu oraz rysunek wskaż, na który regał lub regały można postawić ładunek:
- Regał 1
- Regał 2
- Regał 3
- wszystkie odpowiedzi są poprawne
243. W oparciu o przedstawiony diagram udźwigu oraz rysunek wskaż, na który regał lub regały można postawić ładunek:
- Regał 1
- Regał 2
- Regał 3
- wszystkie odpowiedzi są poprawne
244. W oparciu o przedstawiony diagram udźwigu oraz rysunek wskaż, na który regał lub regały można postawić ładunek:
- Regał 1
- Regał 2
- Regał 3
- odpowiedź a i b jest prawidłowa
245. W oparciu o przedstawiony diagram udźwigu oraz rysunek określ maksymalną masę ładunku, pobranego od strony B:
- 1000 kg
- 1200 kg
- 1500 kg
- 2300 kg
246. W oparciu o przedstawiony diagram udźwigu oraz rysunek określ maksymalną masę ładunku, pobranego od strony A:
- 1600 kg
- 1900 kg
- 2300 kg
- 2500 kg
247. W oparciu o przedstawiony diagram udźwigu oraz rysunek określ maksymalną bezpieczną wysokość podnoszenia, ładunku pobranego z kierunku A:
- 5940 mm
- 7890 mm
- 3600 mm
- 4500 mm
248. W oparciu o przedstawiony diagram udźwigu oraz rysunek określ maksymalną bezpieczną wysokość podnoszenia, ładunku pobranego z kierunku B:
- 5940 mm
- 7890 mm
- 3600 mm
- 4500 mm
249. W oparciu o przedstawiony diagram udźwigu oraz rysunek określ maksymalną bezpieczną wysokość podnoszenia, ładunku pobranego z kierunku A:
- 4860 mm
- 8820 mm
- 7070 mm
- 10820 mm
250. W oparciu o przedstawiony diagram udźwigu oraz rysunek określ maksymalną bezpieczną wysokość podnoszenia, ładunku pobranego z kierunku B:
- 4860 mm
- 5660 mm
- 7070 mm
- 10820 mm
251. W oparciu o przedstawiony diagram udźwigu oraz rysunek określ maksymalną masę ładunku, pobranego od strony A:
- 400 kg
- 600 kg
- 1500 kg
- 2000 kg
252. W oparciu o przedstawiony diagram udźwigu oraz rysunek określ maksymalną masę ładunku, pobranego od strony B:
- 400 kg
- 600 kg
- 1500 kg
- 2000 kg
253. W oparciu o przedstawiony diagram udźwigu oraz rysunek określ maksymalną masę ładunku, pobranego od strony A:
- 1400 kg
- 1255 kg
- 1040 kg
- 840 kg
254. W oparciu o przedstawiony diagram udźwigu oraz rysunek określ maksymalną masę ładunku, pobranego od strony B:
- 1400 kg
- 1255 kg
- 1040 kg
- 840 kg
255. Na podstawie diagramu określ na jaką maksymalną wysokość można podnieść ładunek o masie 4,0 t:
- 8,0 m
- 12,5 m
- 14,0 m
- 16,9 m
256. Na podstawie diagramu określ na jaką maksymalną wysokość można podnieść ładunek o masie 3,0 t:
- 9,0 m
- 12,5 m
- 17,55 m
- 15,0 m
257. Na podstawie diagramu określ na jaką maksymalną wysokość można podnieść ładunek o masie 3t:
- 8,0 m
- 9,0 m
- 10,5 m
- 12,55 m
258. Na podstawie diagramu określ maksymalny wysięg dla ładunku 1,6 t:
- 5,20 m
- 6,75 m
- 8,75 m
- 4,55 m
259. Na podstawie diagramu określ maksymalny wysięg dla ładunku 4,0 t:
- 3,2 m
- 4,0 m
- 2,6 m
- 5,0 m
260. Na podstawie diagramu określ jaki ładunek można podać na odległość 5 m:
- 5,0 t
- 4,2 t
- 3,2 t
- 1,4 t
261. Na podstawie diagramu, parametry wózka to:
- maksymalny udźwig 4,0 t
- maksymalna wysokość podnoszenia 16,9 m
- maksymalny udźwig 3,5 t
- odpowiedź a i b jest prawidłowa
262. Na podstawie diagramu określ na jaką maksymalną wysokość można podnieść ładunek o masie 3,0 t:
- 13 m
- 14,5 m
- 12 m
- 16 m
263. Na podstawie diagramu określ maksymalny wysięg dla ładunku 4,0 t:
- 1 m
- 3 m
- 5 m
- 4 m
264. Na podstawie diagramu określ na jaką maksymalną wysokość można podnieść ładunek o masie 1,5 t:
- 4,4 m
- 6,7 m
- 5,0 m
- 7,1 m
265. Na podstawie diagramu określ maksymalny wysięg dla ładunku 1,5 t:
- 2,5 m
- 3,6 m
- 1,8 m
- 3,0 m
266. Zgodnie z podanym diagramem udźwigu w sytuacji jak na rysunku operator może:
- odłożyć ładunek na poziom „3"
- odłożyć ładunek na poziom „2"
- odłożyć ładunek na poziom „1"
- wszystkie odpowiedzi są prawidłowe
267. Ile może wynosić masa podnoszonego ładunku w przypadku, gdy zgodnie z podanym diagramem udźwigu w sytuacji jak na rysunku operator ma za zadanie odłożyć ładunek na poziomie „2” ?
- 1500 kg
- 1800 kg
- 2000 kg
- 2200 kg
268. Maksymalna wysokość podnoszenia ładunku o masie 3,5 t wynosi:
- 13,5 m
- 12,55 m
- 11,50 m
- 10,0 m
269. Maksymalna wysokość podnoszenia ładunku o masie 2,5 t wynosi:
- 12,55 m
- 11,6 m
- 9,6 m
- 10,2 m
270. Zgodnie z podanym diagramem maksymalny wysięg ładunku o masie 1,2 t wynosi:
- 8,75 m
- 6,4 m
- 7,2 m
- 8,05 m
271. Ile może wynosić masa podnoszonego ładunku w przypadku, gdy zgodnie z podanym diagramem udźwigu w sytuacji jak na rysunku operator ma za zadanie odłożyć ładunek na poziomie „2” ?
- 1200 kg
- 1600 kg
- 2000 kg
- żadne z powyższych ze względu na przeszkodę
272. Na podstawie diagramu parametry wózka to:
- maksymalny wysięg 13,08 m
- maksymalna wysokość podnoszenia 17,55 m
- maksymalny udźwig 4,0 t
- wszystkie odpowiedzi są poprawne
273. Na podstawie diagramu określ maksymalny wysięg dla ładunku 2,0 t:
- 2,0 m
- 2,9 m
- 3,7 m
- 4,5 m
274. Na podstawie diagramu określ maksymalny wysięg dla ładunku 2,0 t:
- 5,0 m
- 8,4 m
- 6,3 m
- 7,2 m
275. Na podstawie diagramu określ maksymalny wysięg dla ładunku 2,5 t:
- 6,4 m
- 4,8 t
- 5,2 m
- 8,05 m
276. Świecąca się kontrolka ciśnienia oleju może świadczyć o:
- zbyt niskim poziomie płynu hamulcowego
- podwyższonej temperaturze silnika
- zbyt niskim ciśnieniu oleju
- wszystkie odpowiedzi są poprawne
